收藏本站
客户端
扫码下载客户端
官方微信
打开微信扫一扫
登录
|
注册
|
标题
标题
用户
全站首页
|
论坛导航
|
网络问政
|
招聘求职
|
买房租房
|
装修频道
|
生活服务
|
教育
|
相亲
|
亲子
|
美食
|
婚嫁
|
手机客户端
家有学子
|
母婴乐园
快捷导航
精彩推荐:
MY0511客户端下载
中信银行镇江分行
公益体彩 乐善人生
鹏龙鸿蒙
天然石材·人造石
»
梦溪论坛
»
家庭装修
»
金螳螂家镇江店
» 镇江金螳螂成功案例丨镇江悦都荟丨115平丨现代风格丨设计师赵靓
金螳螂家镇江店
>
[成功案例]
镇江金螳螂成功案例丨镇江悦都荟丨115平丨现代风格丨设计师赵靓
查看: 45850 回复: 2
快速回复
返回金螳螂家镇江店
[成功案例]
镇江金螳螂成功案例丨镇江悦都荟丨115平丨现代风格丨设计师赵靓
查看: 45850 回复: 2
上一主题
|
下一主题
金螳螂设计
专版版主
来自 江苏省
精华
90
注册 2022-9-29
行业 房产建筑
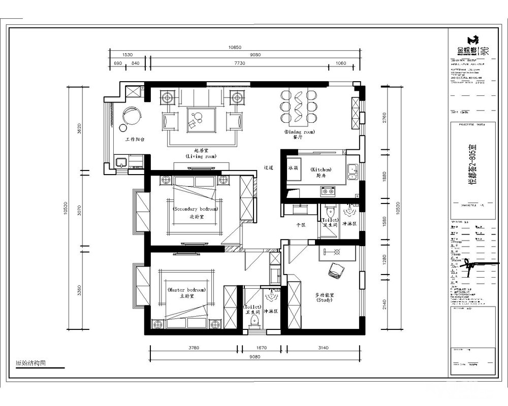
镇江金螳螂成功案例丨镇江悦都荟丨115平丨现代风格丨设计师赵靓
小区名称:
边城.悦都荟
设计风格:现代风格
房屋面积:115平米
设计师:赵靓
套餐包:舒适包
方案改造说明:
客厅是社交的中心,传达了契合主人疏朗的个性。格局大气自带温润感,留白与平静疏淡的布局,整体让渡于获得内心秩序与安宁的光。如同一位诗人,懂得欣赏黎明的来临
餐厅的设计上注重就餐仪式感,以优雅礼仪呈现男女主人待客的关照心境,这与主人文雅的气质不谋而合。
主卧室的设计以安逸舒适为念,希望如主人希望的那样,从获得内心秩序与安宁去建构这里独享的个人世界。
已有
0
人打赏
2022-10-16 13:32
1楼
[联宇电脑] 电脑组装\维修\升级\企业单位电脑维护!
只看该作者
分享本楼
江苏亚琪
来自 江苏省
精华 0
注册 2014-2-17
请问这里的套餐舒适包 具体包含哪些?价位多少?
2023-2-25 16:25
2楼
MY0511相亲,一分钟注册,享一辈子幸福!
只看该作者
分享本楼
金螳螂设计
专版版主
来自 江苏省
精华
90
注册 2022-9-29
行业 房产建筑
QUOTE:
原帖由
江苏亚琪
于 2023-2-25 16:25 发表
请问这里的套餐舒适包 具体包含哪些?价位多少?
您好 螳螂的套餐 需要根据您的需求 来给您做出报价,包含的东西 我可以给您V信发过去,比较详细。您可以联系我 18652820974
2023-3-11 10:37
3楼
0511家装频道:本地家居服务平台,数万业主共同选择
只看该作者
分享本楼
返回金螳螂家镇江店
快速回复主题
游客
您目前还是游客,请
登录
或
注册
您目前是游客,本帖已被系统设置了自动关闭,不可回复!
文明交流,理性发言
0/5000字
<
>
请在打开的新窗口中支付完成打赏
我已完成支付打赏
支付失败重新支付
其他金额
打赏金额:
元
确定
支付打赏
提 现
打赏人
打赏金额(元)
打赏时间
Powered by
Discuz! X 2
0.062224 s
清除 Cookies
-
镇江网友之家
-
手机版
论坛导航
关闭
吃喝玩乐
饮食男女
镇江钓友之家
菜菜鸟户外
镇江单车俱乐部
镜头里的镇江
畅游天下
猫狗总动员
视觉Coffeeshop摄影部落
花鸟鱼虫
婚姻.亲子.家庭
家有学子
谈婚论嫁
女性天地
母婴乐园
婚姻生活
梦溪佳缘
装修
家庭装修
装修招标
镇江室内设计师交流
装修商家直通车
你好,镇江!
百姓话题
我要买房
0511爱心家园
市场监管•12315热线
分类信息
生活服务
闲置转让
镇江二手房/镇江租房
镇江招聘求职
教育培训
镇江二手车
商铺厂房写字楼租售
宠物市场
运动健身
卡券交易
电脑维修升级
杂货铺
其他分类信息区
兴趣爱好
HiFi音响江城沙龙
镇江市美术家协会
我爱模型
车友俱乐部
车迷之家
汽车驾培中心
运动俱乐部
镇江市冬泳、铁人三项协会
聚焦足球
镇江羽毛球
镇江乒乓球协会
镇江网球协会
镇江市自行车运动协会
热爱篮球
动力机车
合作栏目
维权热线
天翼时代
色觉影像摄影工作室
站务区
疑问与建议
网络问政
市政府工作部门
垂直管理部门
党群工作部门
其他重点单位
辖市(区)