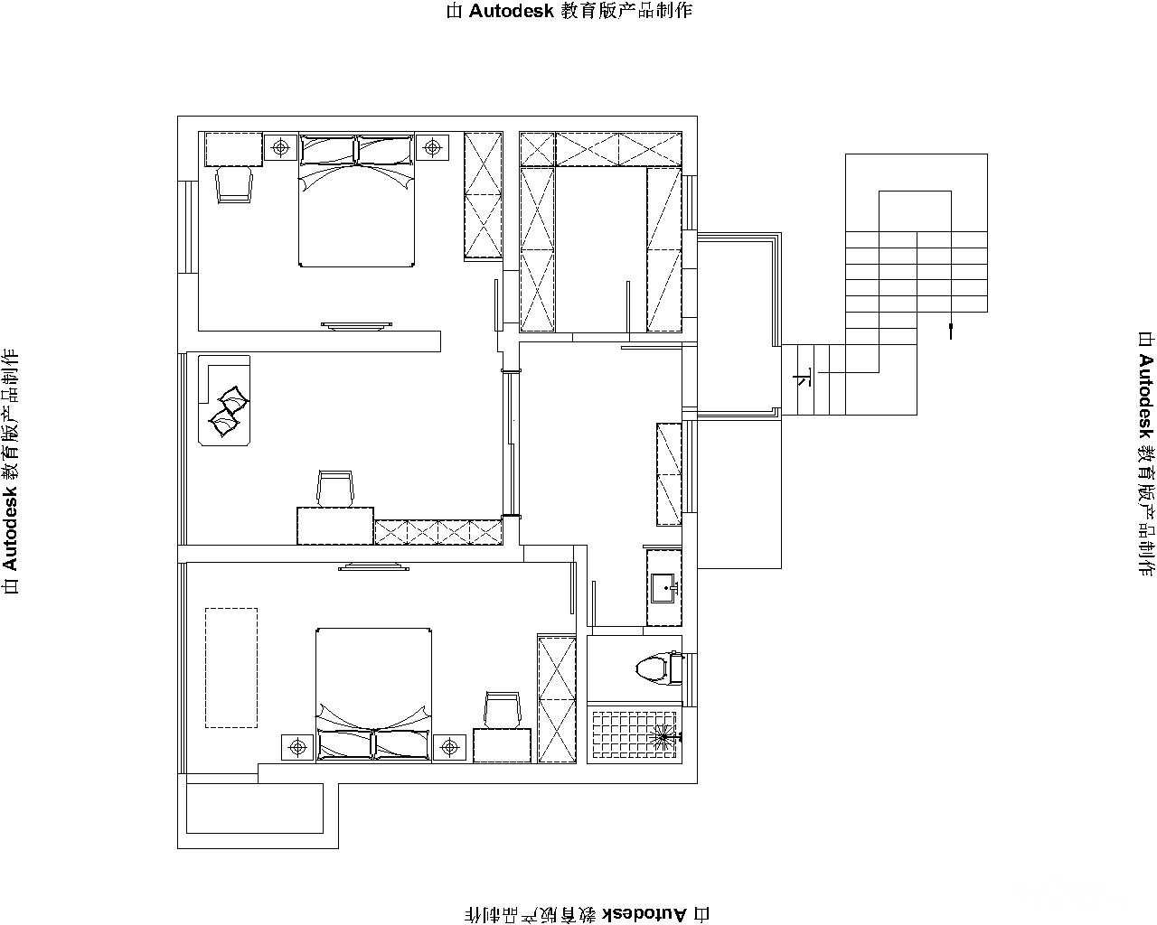
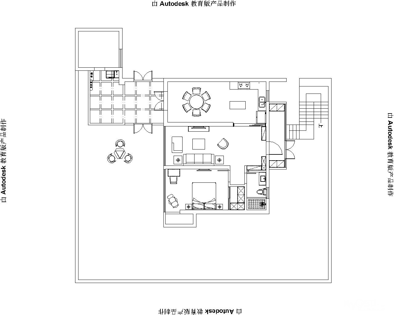
小区名称:镇江花山湾复式

设计风格:现代简约风格

房屋面积:200

房屋类型:复式楼

设计师:顾定军

套餐包:S