泽一 落地设计
Choose Only One

尊重自然,才能接近自然
HOME ·「 Spirited 飒 」
项目地址:江山府联排
户型面积:258㎡
设计风格:自然简约
服务模式:全案
项目费用:150w
本案的核心理念——“飒”,意为风声,如悠扬的琴音穿透时光,吹拂过每一寸自然的肌肤,与天地尽收眼底的大自然交谈。
全屋使用墙顶一色的肌理渲染出一种自然、宁静的氛围,造型上通过圆弧的过渡,让空间拥有了被风吹过的飘柔,飒的感觉迎面扑来,让人的情感在空间中找到共鸣,享受岁月静好的生活。

本案是位于「京口-江山府」258㎡的联排项目,这是业主给自己的一个放松身心的空间,静谧柔和是业主心之所向的氛围,希望我们可以保留自己的喜好以及生活习惯,为其打造出整个小区独一无二的家。
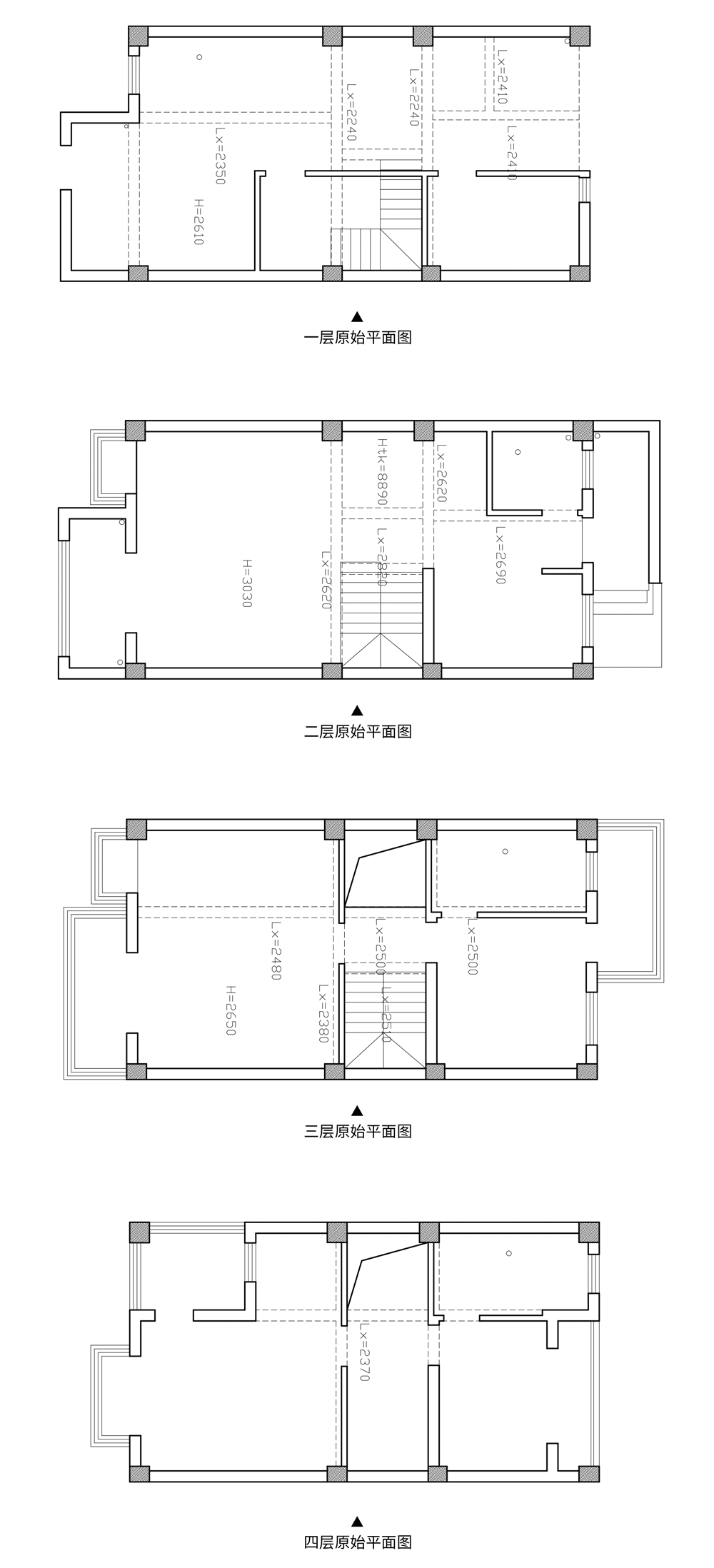
原始户型中楼梯位置处于空间中部,将整体分割成两个部分,室内采光同时也受到影响,设计师调整了楼梯位置,并自上而下地更改了空间布局,打开了活动空间,拥有了别墅该有的开阔尺度,同时私区的南北融合也会更加便捷,将原本一分为二的结构融合成一个完整空间。
#01
玄关
Foyer
外厅预留两盏门灯,满满的归家仪式感;墙体加开窗洞,增强室内与自然的联系。

玄关定制柜被木色包裹,圆润的墙角,让房子安静下来,灯光下显得温馨又整洁。

#02
客厅
LIVING ROOM
客厅以舒适的灰色沙发搭配黑色茶几、挂画、陶罐、干枝,满室的圆融,轻于形,魂于韵,以素雅营造生活的本真和古朴之美。



电视墙摒弃了传统的满墙柜体设计,而是选择将艺术漆延伸至整个墙面,营造出一种温柔舒适的包裹感,唤醒了无尽的愉悦与归属感。
目光所及之处皆是柔和的色调,肤色艺术漆贯穿于整个空间,呈现出大自然般干净纯粹的质感。

#03
餐厅
DINING ROOM
餐厅采用开放式布局,与厨房、吧台区域相互连通,减少阻断,打造流畅的空间感。


视线通过材质的过渡流转,流线型的墙面、温馨雅致的材质,人在其中,建立起“被包裹”的安全感。
随着光影与肌理的碰撞,坚硬的石材与温润的木材,恰到好处地与柔和、内敛、含蓄的东方底蕴取得平衡。


自然光透过落地窗洒入室内,与室外空间的边界早已变得模糊,开放式的设计让整个空间更加通透、宽敞,同时也为内部空间赋予了无限可能。

#04
卧室
BEDROOM
与公共区域的气质一致,私人休息空间温和恬静,同色系的立面空间和内敛朦胧的暖光吊灯,更好地营造出舒适温馨的氛围。

设计中注重细节处理,兼顾功能性和舒适性,选择具有质朴风格的元素,提升整体的质感,彰显主人的品味。


如果空间是源于人和自然的共生;那么设计则是为了建立联系,塑造人与自然的纽带。
旨在追求与自然的和谐共生,探索能够融入东方意境的设计方式,营造回归本源的生活空间。
泽一设计
-COO Design-

[ 本帖最后由 泽一设计 于 2024-6-9 15:19 编辑 ]







