| 标题
快捷导航

精彩推荐:MY0511客户端下载

    • 中信银行镇江分行

    • 公益体彩 乐善人生

    • 鹏龙鸿蒙

    • 天然石材·人造石

    » 梦溪论坛 » 家庭装修 » 全家福装饰 » 全家福装饰-----------清华园280平复式-----------刘总(开工大吉)
    全家福装饰  >  全家福装饰-----------清华园280平复式-----------刘总(开工大吉)     
    查看: 7226  回复: 3
    全家福装饰-----------清华园280平复式-----------刘总(开工大吉)      查看: 7226  回复: 3
    • 来自 江苏省
    • 精华 77
    • 注册 2011-4-20
    • 行业 房产建筑
    •  
    全家福装饰-----------清华园280平复式-----------刘总(开工大吉)

    【小区名称】:清华园


    【建筑面积】:280m2


    【设计师】:陈工


    装修公司】:全家福装饰


    前言

            恭喜清华园刘总于08:18分开工大吉!

    感谢刘总对我们全家福装饰的信任,这是和刘总的第二次合作了~记得第一次合作结束时,刘总来公司表示感谢很满意,说接下来有装修的事就放心的交给你们,对我们设计总监陈工非常的认可和赞许,然后这次装修第一时间打电话给我们,就这样愉快的签约啦~开启了接下来的装修之旅,在这里感谢刘总的大力支持与认可!我们将竭诚为您提供优质的服务!为您打造放心家装~         




    [ 本帖最后由 峰会天下 于 2019-1-26 09:53 编辑 ]





                      
    • 来自 江苏省
    • 精华 35
    • 注册 2016-9-27
    •  




    [ 本帖最后由 全家福装饰客服 于 2019-1-26 09:28 编辑 ]




    • 来自 江苏省
    • 精华 77
    • 注册 2011-4-20
    • 行业 房产建筑
    •  

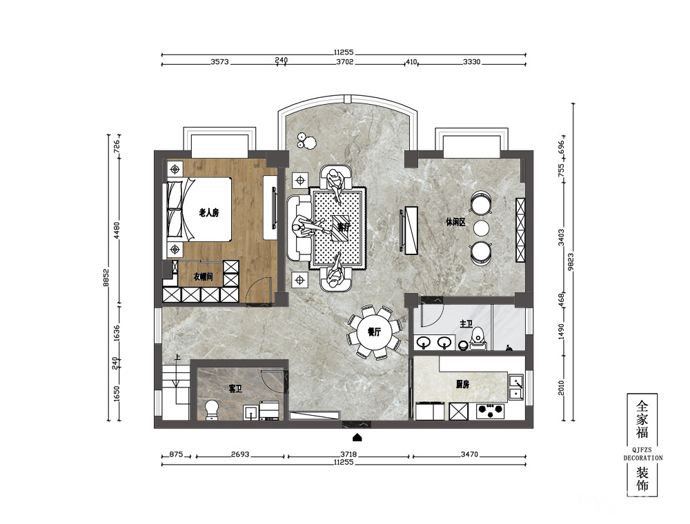
    平面布置图】:

    丨平面 layout









    [ 本帖最后由 峰会天下 于 2019-5-28 19:31 编辑 ]




    • 来自 江苏省
    • 精华 77
    • 注册 2011-4-20
    • 行业 房产建筑
    •  














    查看积分策略说明快速回复主题
    您目前还是游客,请 登录注册
    您目前是游客,本帖已被系统设置了自动关闭,不可回复!

    0/5000字

     
    < >
     

    Powered by Discuz! X 2 0.065051 s 清除 Cookies - 镇江网友之家 - 手机版
    论坛导航 关闭