【案例赏析|中南望江2层叠加】
生活总结起来不过是衣食住行四个字而已,有了属于自己的房子,生活才变得熠熠生辉。
Define |波涛装饰现代轻奢案例|叠加
【项目概况】
|项目地址:中南望江
|建筑面积:叠加
|主案设计:曾功庆
|建筑类型:叠加
|项目类型:私人住宅
|设计风格:现代轻奢风格
|设计施工软装:波涛装饰
本篇案例是公司设计总监的作品,小编觉得很好看,所以跟主管小姐姐要来了原图
<斗胆浅浅赏析一下>
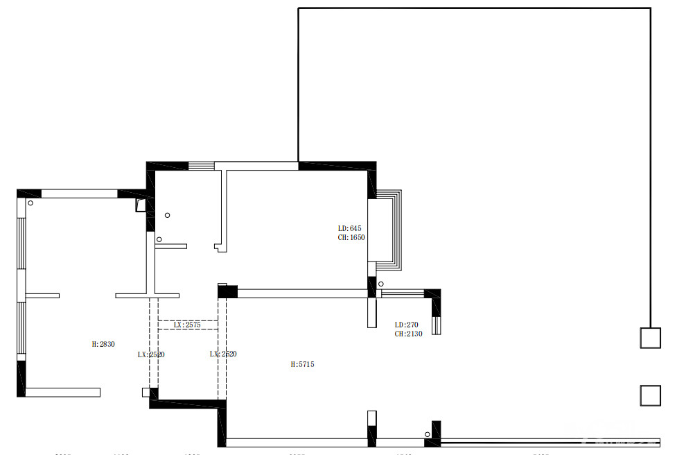
先来看看一楼


一楼原始结构图vs一楼平面布置图
①原始户型的厨房和客厅是互相独立的,显得有一点拥挤无趣。设计师把餐厅和厨房中间的半堵墙移除,扩大了餐厅的面积,空间变得更通透了!在餐桌旁边增加了一个岛台,做饭洗手更便捷,同时也增强了家人之间的互动和交流。
②把原来的阳台并入客厅,拆除了非承重墙的部分,扩大客厅面积,使整个客厅的长宽比例更和谐,接近黄金比例,同时把一部分院子纳入建筑面积,布局更合理。
下面我们来看看一楼的效果图






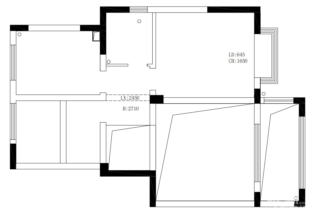
我们继续看二楼


二楼原始结构图vs二楼平面布置图
和一楼相比,二楼的改动就比较明显了
上了楼梯,首先注意到的是左手边的休闲娱乐室。没有了墙的阻隔,整个楼梯厅都明亮起来了!设计师用玻璃做隔断,一方面保留了一部分私密性,一方面整个空间也更加透亮了。
其次左边三个独立的空间合三为一,空间更大更亮了,如果我也有这么大的房子,我也不愿意把它分成好几个小房间,因为地方大一点就可以尽情玩耍放松
楼梯的右手边是一间比较大的卧室,保留了墙壁,保留了房间,但是没有保留阳台原本的格局。这里的阳台和一楼一样被设计师纳入了房间,冬天还是在房间里晒太阳比较舒服呀~
下面我们来看看二楼的效果图





正在装修的小伙伴,或者同户型的小伙伴
想要了解更多,欢迎评论私信

[ 本帖最后由 波涛装饰 于 2022-11-23 15:07 编辑 ]







