保持热爱,奔赴山河
鲜花盛开在四季,河流流向八方
只要热爱,山海皆可平
眉眼如初 岁月如故
就算公交上空无一人 司机也会把车开到终点站
我的意思是 你不要因为任何人的离开 而停止原本的生活
生活总会 不期而遇
迷途漫漫 终有一归

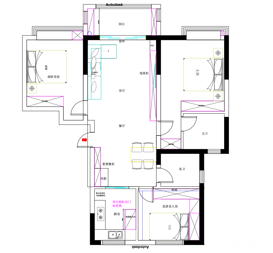
户型图
【工地名称】:绿地香颂苑
【建筑面积】 :115㎡
【设计风格】:现代简约
【设 计 师】 :郑其匀

有朋自远方来,玄关便是家的门面
入户的第一张柜子尤为重要


在阳台上,你可以享受阳光、呼吸新鲜空气、欣赏美景,让你的省心得到放松和恢复


简约是简单,足够就好,不是少,比如我们装修的厨房

忙碌了一天躺在沙发上看着电视岂不惬意

回廊




这是一个温馨淡雅的卧室,它是我快乐成长的小窝
~~~~~~~~~~~~~~~~~~~~~~~~~~~~~~~~~~~~~~~~~~~~~~~

欢迎扫码咨询
公司地址 :镇江市京口区东郡华庭16幢501-517室
咨询热线:400-0511-208
[ 本帖最后由 波涛装饰 于 2023-5-2 17:13 编辑 ]







