收藏本站
客户端
扫码下载客户端
官方微信
打开微信扫一扫
登录
|
注册
|
标题
标题
用户
全站首页
|
论坛导航
|
网络问政
|
招聘求职
|
买房租房
|
装修频道
|
生活服务
|
教育
|
相亲
|
亲子
|
美食
|
婚嫁
|
手机客户端
家有学子
|
母婴乐园
快捷导航
精彩推荐:
MY0511客户端下载
中信银行镇江分行
公益体彩 乐善人生
鹏龙鸿蒙
天然石材·人造石
»
梦溪论坛
»
家庭装修
»
华飞精品装饰
» [在建工地] ——— 绿源山庄520平方(美式风格)
华飞精品装饰
> [在建工地] ——— 绿源山庄520平方(美式风格)
查看: 7716 回复: 20
快速回复
返回华飞精品装饰
[在建工地] ——— 绿源山庄520平方(美式风格)
查看: 7716 回复: 20
上一主题
|
下一主题
华飞精品装饰
来自 江苏省
精华
36
注册 2015-11-4
行业 其它
[在建工地] ——— 绿源山庄520平方(美式风格)
小区:绿源山庄
建筑面积:520平方
作品风格:美式
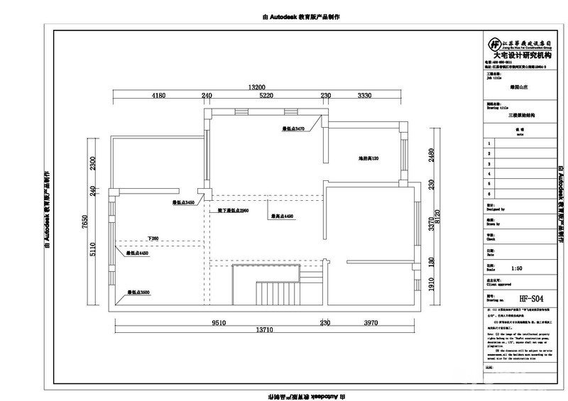
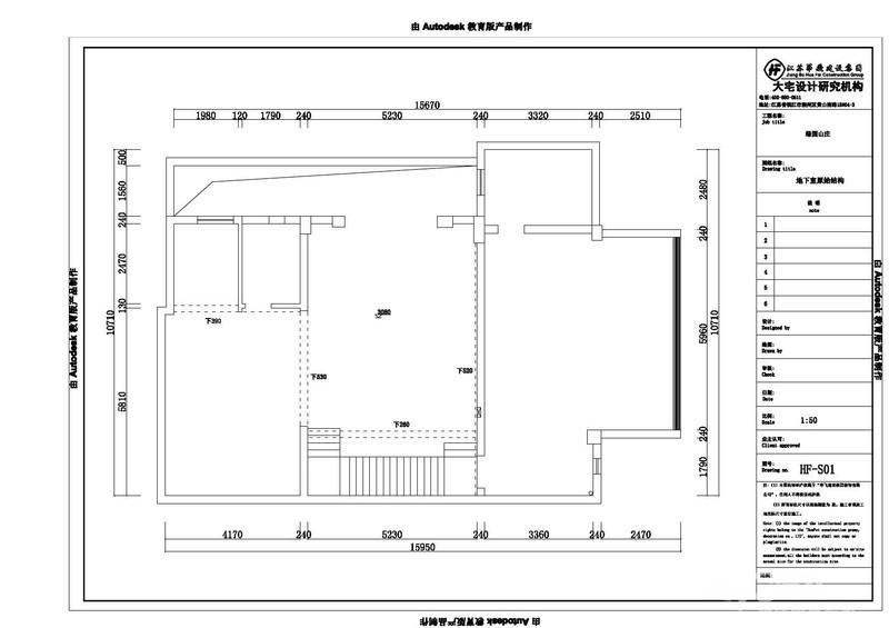
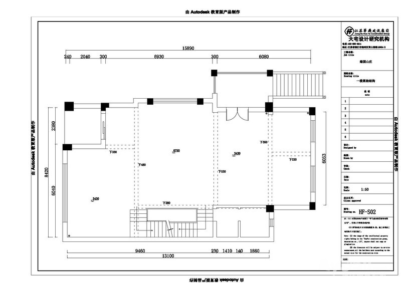
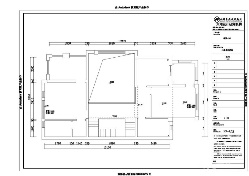
原始结构图:
地下室:
一楼:
二楼:
三楼:
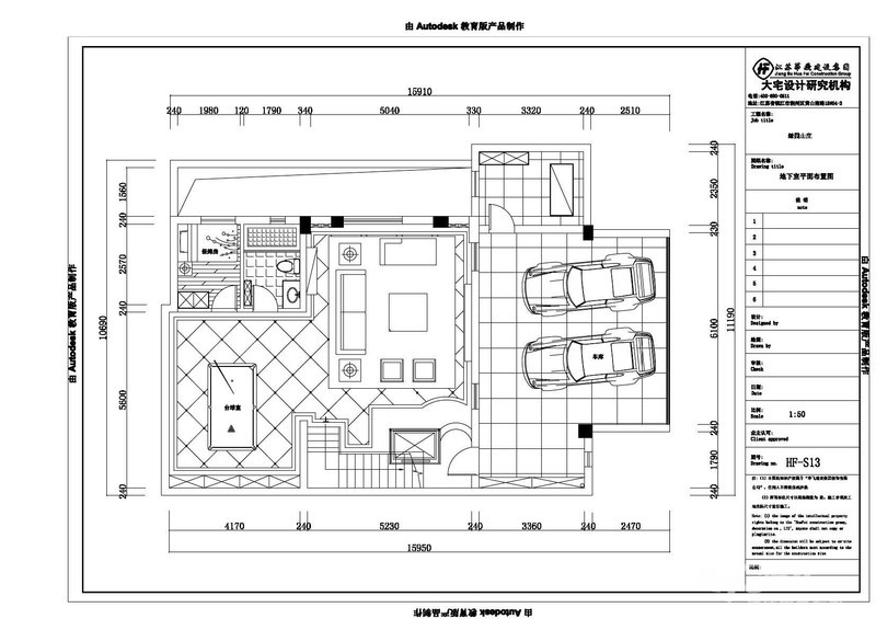
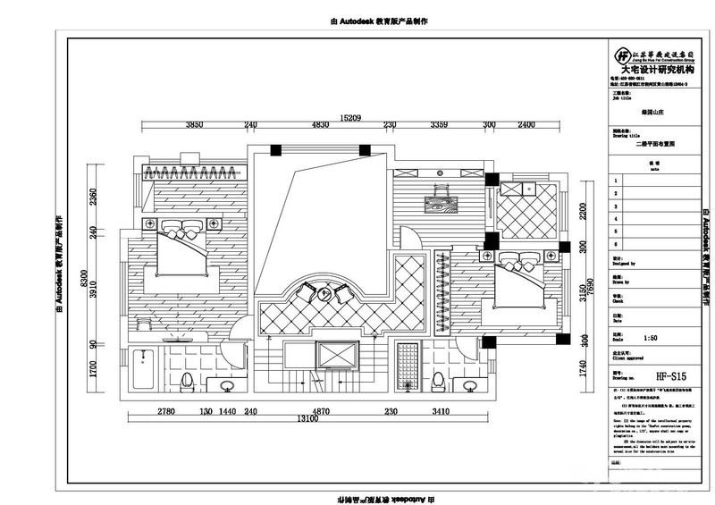
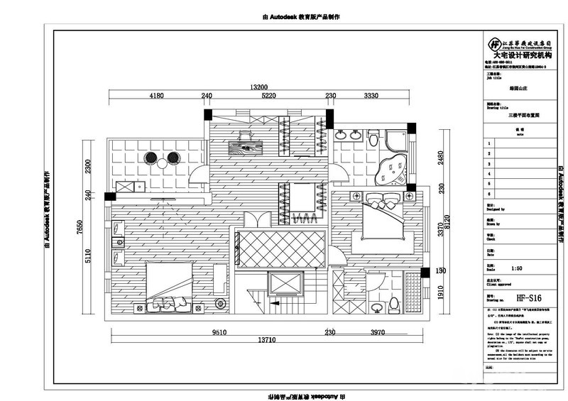
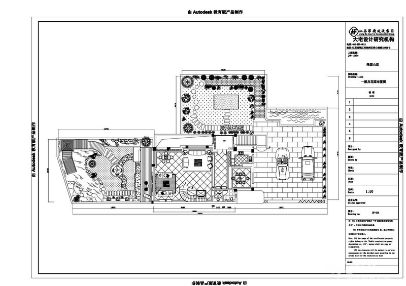
平面布置图:
地下室:
一楼:
二楼:
三楼:
效果图:
[
本帖最后由 华飞装饰客服 于 17-7-16 17:27 编辑
]
已有
0
人打赏
2016-3-26 10:07
1楼
0511家装频道:本地家居服务平台,数万业主共同选择
只看该作者
分享本楼
华飞精品装饰
来自 江苏省
精华
36
注册 2015-11-4
行业 其它
热烈祝贺绿源山庄别墅开工大吉,选择华飞成就豪宅典范,成就幸福生活!
祝贺绿源山庄8:56开工大吉
[
本帖最后由 华飞精品装饰 于 16-3-26 10:22 编辑
]
2016-3-26 10:20
2楼
MY0511相亲,一分钟注册,享一辈子幸福!
只看该作者
分享本楼
华飞装饰客服
家装认证商户
来自 江苏省
精华
108
注册 2015-11-2
经过这些天的高温辛苦工作,水电终于完工了。
[
本帖最后由 华飞装饰客服 于 17-7-9 17:36 编辑
]
2016-8-21 15:03
3楼
[联宇电脑] 电脑组装\维修\升级\企业单位电脑维护!
只看该作者
分享本楼
华飞装饰客服
家装认证商户
来自 江苏省
精华
108
注册 2015-11-2
水电验收,设计师现场画水电图
2016-9-8 10:53
4楼
MY0511相亲,一分钟注册,享一辈子幸福!
只看该作者
分享本楼
华飞装饰客服
家装认证商户
来自 江苏省
精华
108
注册 2015-11-2
现浇
2016-9-19 15:18
5楼
0511家装频道:本地家居服务平台,数万业主共同选择
只看该作者
分享本楼
华飞装饰客服
家装认证商户
来自 江苏省
精华
108
注册 2015-11-2
2016-9-30 16:58
6楼
0511家装频道:本地家居服务平台,数万业主共同选择
只看该作者
分享本楼
华飞装饰客服
家装认证商户
来自 江苏省
精华
108
注册 2015-11-2
木工开始吊顶啦!
2016-10-5 16:16
7楼
MY0511相亲,一分钟注册,享一辈子幸福!
只看该作者
分享本楼
华飞装饰客服
家装认证商户
来自 江苏省
精华
108
注册 2015-11-2
[
本帖最后由 华飞装饰客服 于 17-7-9 17:39 编辑
]
2016-10-10 10:32
8楼
0511家装频道:本地家居服务平台,数万业主共同选择
只看该作者
分享本楼
室内装璜
来自 江苏省
精华 0
注册 2016-11-23
华飞只装别墅吗?
2016-11-23 22:35
9楼
找工作,就上MY0511!
只看该作者
分享本楼
华飞装饰客服
家装认证商户
来自 江苏省
精华
108
注册 2015-11-2
[
本帖最后由 华飞装饰客服 于 17-9-16 17:37 编辑
]
2016-12-8 16:08
10楼
0511家装频道:本地家居服务平台,数万业主共同选择
只看该作者
分享本楼
华飞装饰客服
家装认证商户
来自 江苏省
精华
108
注册 2015-11-2
今天木工和瓦工同时施工
[
本帖最后由 华飞装饰客服 于 17-9-16 17:38 编辑
]
2016-12-9 17:22
11楼
[联宇电脑] 电脑组装\维修\升级\企业单位电脑维护!
只看该作者
分享本楼
华飞装饰客服
家装认证商户
来自 江苏省
精华
108
注册 2015-11-2
[
本帖最后由 华飞装饰客服 于 17-7-16 17:15 编辑
]
2017-1-11 17:06
12楼
0511家装频道:本地家居服务平台,数万业主共同选择
只看该作者
分享本楼
华飞装饰客服
家装认证商户
来自 江苏省
精华
108
注册 2015-11-2
[
本帖最后由 华飞装饰客服 于 2018-8-20 10:56 编辑
]
2017-2-16 14:52
13楼
MY0511相亲,一分钟注册,享一辈子幸福!
只看该作者
分享本楼
华飞装饰客服
家装认证商户
来自 江苏省
精华
108
注册 2015-11-2
[
本帖最后由 华飞装饰客服 于 17-2-17 09:16 编辑
]
2017-2-16 14:52
14楼
0511家装频道:本地家居服务平台,数万业主共同选择
只看该作者
分享本楼
华飞装饰客服
家装认证商户
来自 江苏省
精华
108
注册 2015-11-2
2017-2-22 15:04
15楼
MY0511相亲,一分钟注册,享一辈子幸福!
只看该作者
分享本楼
华飞装饰客服
家装认证商户
来自 江苏省
精华
108
注册 2015-11-2
2017-3-12 15:58
16楼
0511家装频道:本地家居服务平台,数万业主共同选择
只看该作者
分享本楼
华飞装饰客服
家装认证商户
来自 江苏省
精华
108
注册 2015-11-2
[
本帖最后由 华飞装饰客服 于 17-7-9 17:41 编辑
]
2017-3-27 11:22
17楼
[联宇电脑] 电脑组装\维修\升级\企业单位电脑维护!
只看该作者
分享本楼
华飞装饰张和花
来自 江苏省
精华
3
注册 2017-2-6
效果初现,后期安装了
---发自iPhone 6S---
2017-7-16 17:04
18楼
0511家装频道:本地家居服务平台,数万业主共同选择
只看该作者
分享本楼
华飞装饰张和花
来自 江苏省
精华
3
注册 2017-2-6
经过陆续的安装,实景效果杠杠的
[
本帖最后由 华飞装饰张和花 于 2019-8-27 10:11 编辑
]
---发自iPhone 6S---
2017-10-11 09:42
19楼
0511家装频道:本地家居服务平台,数万业主共同选择
只看该作者
分享本楼
华飞装饰客服
家装认证商户
来自 江苏省
精华
108
注册 2015-11-2
2017-11-13 14:35
20楼
MY0511相亲,一分钟注册,享一辈子幸福!
只看该作者
分享本楼
华飞装饰张和花
来自 江苏省
精华
3
注册 2017-2-6
再上一波美哒哒的实景照吧
---发自iPhone 6S---
2017-12-9 18:00
21楼
[联宇电脑] 电脑组装\维修\升级\企业单位电脑维护!
只看该作者
分享本楼
返回华飞精品装饰
快速回复主题
游客
您目前还是游客,请
登录
或
注册
您目前是游客,本帖已被系统设置了自动关闭,不可回复!
文明交流,理性发言
0/5000字
<
>
请在打开的新窗口中支付完成打赏
我已完成支付打赏
支付失败重新支付
其他金额
打赏金额:
元
确定
支付打赏
提 现
打赏人
打赏金额(元)
打赏时间
Powered by
Discuz! X 2
0.081309 s
清除 Cookies
-
镇江网友之家
-
手机版
论坛导航
关闭
吃喝玩乐
饮食男女
镇江钓友之家
菜菜鸟户外
镇江单车俱乐部
镜头里的镇江
畅游天下
猫狗总动员
视觉Coffeeshop摄影部落
花鸟鱼虫
婚姻.亲子.家庭
家有学子
谈婚论嫁
女性天地
母婴乐园
婚姻生活
梦溪佳缘
装修
家庭装修
装修招标
镇江室内设计师交流
装修商家直通车
你好,镇江!
百姓话题
我要买房
0511爱心家园
市场监管•12315热线
分类信息
生活服务
闲置转让
镇江二手房/镇江租房
镇江招聘求职
教育培训
镇江二手车
商铺厂房写字楼租售
宠物市场
运动健身
卡券交易
电脑维修升级
杂货铺
其他分类信息区
兴趣爱好
HiFi音响江城沙龙
镇江市美术家协会
我爱模型
车友俱乐部
车迷之家
汽车驾培中心
运动俱乐部
镇江市冬泳、铁人三项协会
聚焦足球
镇江羽毛球
镇江乒乓球协会
镇江网球协会
镇江市自行车运动协会
热爱篮球
动力机车
合作栏目
维权热线
天翼时代
色觉影像摄影工作室
站务区
疑问与建议
网络问政
市政府工作部门
垂直管理部门
党群工作部门
其他重点单位
辖市(区)