收藏本站
客户端
扫码下载客户端
官方微信
打开微信扫一扫
登录
|
注册
|
标题
标题
用户
全站首页
|
论坛导航
|
网络问政
|
招聘求职
|
买房租房
|
装修频道
|
生活服务
|
教育
|
相亲
|
亲子
|
美食
|
婚嫁
|
手机客户端
家有学子
|
母婴乐园
快捷导航
精彩推荐:
MY0511客户端下载
中信银行镇江分行
公益体彩 乐善人生
鹏龙鸿蒙
天然石材·人造石
»
梦溪论坛
»
家庭装修
»
华飞精品装饰
» [已竣工]------江山名洲163栋(美式完工实景)
华飞精品装饰
> [已竣工]------江山名洲163栋(美式完工实景)
查看: 7488 回复: 35
快速回复
返回华飞精品装饰
[已竣工]------江山名洲163栋(美式完工实景)
查看: 7488 回复: 35
上一主题
|
下一主题
华飞装饰客服
家装认证商户
来自 江苏省
精华
108
注册 2015-11-2
[已竣工]------江山名洲163栋(美式完工实景)
小区:江山名洲
建筑面积:280平方
作品风格:美式
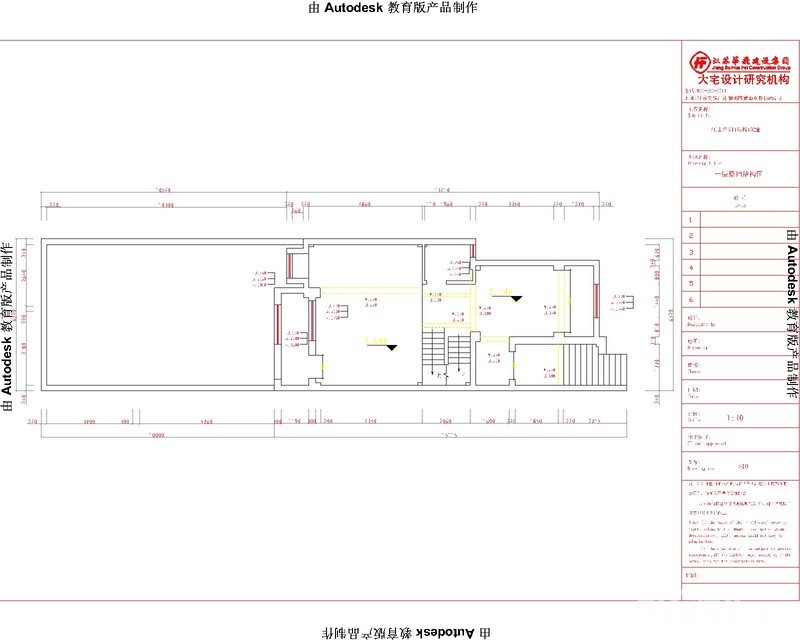
原始结构图:
平面布置图:
效果图:
餐厅:
客厅:
二楼主卧:
三楼主卧:
[
本帖最后由 华飞装饰客服 于 2018-9-10 11:20 编辑
]
已有 镇江德铭豪门.
1
人打赏
2016-11-14 17:33
1楼
[联宇电脑] 电脑组装\维修\升级\企业单位电脑维护!
只看该作者
分享本楼
华飞装饰客服
家装认证商户
来自 江苏省
精华
108
注册 2015-11-2
2016年11月14日是个好日子,上午9:58分,随着霹雳啪啦的鞭炮响,江山名洲准时开工了,在此祝贺王姐家开工大吉!
[
本帖最后由 华飞装饰客服 于 16-11-14 17:46 编辑
]
2016-11-14 17:44
2楼
MY0511相亲,一分钟注册,享一辈子幸福!
只看该作者
分享本楼
镇江德铭豪门.
来自 江苏省
精华 0
注册 2013-6-5
行业 房产建筑
开工大吉,
2016-11-20 12:46
3楼
[联宇电脑] 电脑组装\维修\升级\企业单位电脑维护!
只看该作者
分享本楼
华飞装饰客服
家装认证商户
来自 江苏省
精华
108
注册 2015-11-2
[
本帖最后由 华飞装饰客服 于 17-5-13 09:04 编辑
]
2016-11-28 16:30
4楼
找工作,就上MY0511!
只看该作者
分享本楼
华飞装饰客服
家装认证商户
来自 江苏省
精华
108
注册 2015-11-2
[
本帖最后由 华飞装饰客服 于 17-10-19 11:10 编辑
]
2016-11-28 16:31
5楼
买房、卖房、租房上镇江房产网!
只看该作者
分享本楼
华飞装饰客服
家装认证商户
来自 江苏省
精华
108
注册 2015-11-2
开槽布管
[
本帖最后由 华飞装饰客服 于 17-10-19 11:13 编辑
]
2016-12-8 16:48
6楼
MY0511相亲,一分钟注册,享一辈子幸福!
只看该作者
分享本楼
华飞装饰客服
家装认证商户
来自 江苏省
精华
108
注册 2015-11-2
[
本帖最后由 华飞装饰客服 于 17-10-19 11:14 编辑
]
2016-12-9 16:57
7楼
MY0511相亲,一分钟注册,享一辈子幸福!
只看该作者
分享本楼
华飞装饰客服
家装认证商户
来自 江苏省
精华
108
注册 2015-11-2
[
本帖最后由 华飞装饰客服 于 17-10-19 11:15 编辑
]
2016-12-15 15:41
8楼
0511家装频道:本地家居服务平台,数万业主共同选择
只看该作者
分享本楼
华飞装饰客服
家装认证商户
来自 江苏省
精华
108
注册 2015-11-2
[
本帖最后由 华飞装饰客服 于 17-7-21 11:30 编辑
]
2016-12-15 15:43
9楼
买房、卖房、租房上镇江房产网!
只看该作者
分享本楼
华飞装饰客服
家装认证商户
来自 江苏省
精华
108
注册 2015-11-2
2016-12-25 16:26
10楼
MY0511相亲,一分钟注册,享一辈子幸福!
只看该作者
分享本楼
华飞装饰客服
家装认证商户
来自 江苏省
精华
108
注册 2015-11-2
2016-12-25 16:29
11楼
0511家装频道:本地家居服务平台,数万业主共同选择
只看该作者
分享本楼
华飞装饰客服
家装认证商户
来自 江苏省
精华
108
注册 2015-11-2
[
本帖最后由 华飞装饰客服 于 17-10-19 11:16 编辑
]
2016-12-25 16:30
12楼
买房、卖房、租房上镇江房产网!
只看该作者
分享本楼
华飞装饰客服
家装认证商户
来自 江苏省
精华
108
注册 2015-11-2
[
本帖最后由 华飞装饰客服 于 17-10-19 11:17 编辑
]
2016-12-25 16:35
13楼
买房、卖房、租房上镇江房产网!
只看该作者
分享本楼
华飞装饰客服
家装认证商户
来自 江苏省
精华
108
注册 2015-11-2
水电验收结束啦
2017-1-7 17:41
14楼
找工作,就上MY0511!
只看该作者
分享本楼
华飞装饰客服
家装认证商户
来自 江苏省
精华
108
注册 2015-11-2
华飞装饰——大团队 大设计 装修您的房子就是大事情!
【公司地址】黄山南路18号54-3(即天和星城南山一号马路对面西北方向【华飞精品装饰】=润州花园南大门东侧20米处),
【短信报名】请发送小区名、面积、装修风格至13605281411报名,10分钟内回电(例如:江山名洲紫苑、200平、中式)
[
本帖最后由 华飞装饰客服 于 2019-8-27 14:55 编辑
]
2017-1-11 17:04
15楼
0511家装频道:本地家居服务平台,数万业主共同选择
只看该作者
分享本楼
华飞装饰客服
家装认证商户
来自 江苏省
精华
108
注册 2015-11-2
[
本帖最后由 华飞装饰客服 于 17-10-19 11:22 编辑
]
2017-1-11 17:12
16楼
找工作,就上MY0511!
只看该作者
分享本楼
华飞装饰客服
家装认证商户
来自 江苏省
精华
108
注册 2015-11-2
2017-3-12 15:55
17楼
[联宇电脑] 电脑组装\维修\升级\企业单位电脑维护!
只看该作者
分享本楼
华飞装饰客服
家装认证商户
来自 江苏省
精华
108
注册 2015-11-2
2017-3-12 15:57
18楼
买房、卖房、租房上镇江房产网!
只看该作者
分享本楼
华飞装饰客服
家装认证商户
来自 江苏省
精华
108
注册 2015-11-2
2017-3-12 16:13
19楼
MY0511相亲,一分钟注册,享一辈子幸福!
只看该作者
分享本楼
华飞装饰客服
家装认证商户
来自 江苏省
精华
108
注册 2015-11-2
严格的公司自检!展示华飞对工地及客户服务的精益求精!
[
本帖最后由 华飞装饰客服 于 17-7-21 11:33 编辑
]
2017-3-30 15:44
20楼
0511家装频道:本地家居服务平台,数万业主共同选择
只看该作者
分享本楼
华飞装饰客服
家装认证商户
来自 江苏省
精华
108
注册 2015-11-2
2017-3-30 15:48
21楼
买房、卖房、租房上镇江房产网!
只看该作者
分享本楼
华飞装饰客服
家装认证商户
来自 江苏省
精华
108
注册 2015-11-2
2017-4-19 16:09
22楼
买房、卖房、租房上镇江房产网!
只看该作者
分享本楼
华飞装饰客服
家装认证商户
来自 江苏省
精华
108
注册 2015-11-2
[
本帖最后由 华飞装饰客服 于 17-5-13 09:10 编辑
]
2017-4-19 16:14
23楼
买房、卖房、租房上镇江房产网!
只看该作者
分享本楼
华飞装饰客服
家装认证商户
来自 江苏省
精华
108
注册 2015-11-2
2017-4-22 15:26
24楼
[联宇电脑] 电脑组装\维修\升级\企业单位电脑维护!
只看该作者
分享本楼
华飞装饰客服
家装认证商户
来自 江苏省
精华
108
注册 2015-11-2
2017-4-22 16:09
25楼
MY0511相亲,一分钟注册,享一辈子幸福!
只看该作者
分享本楼
华飞装饰客服
家装认证商户
来自 江苏省
精华
108
注册 2015-11-2
2017-5-12 10:31
26楼
MY0511相亲,一分钟注册,享一辈子幸福!
只看该作者
分享本楼
华飞装饰客服
家装认证商户
来自 江苏省
精华
108
注册 2015-11-2
2017-5-13 16:20
27楼
0511家装频道:本地家居服务平台,数万业主共同选择
只看该作者
分享本楼
华飞装饰客服
家装认证商户
来自 江苏省
精华
108
注册 2015-11-2
2017-6-9 10:35
28楼
MY0511相亲,一分钟注册,享一辈子幸福!
只看该作者
分享本楼
华飞装饰客服
家装认证商户
来自 江苏省
精华
108
注册 2015-11-2
2017-6-9 11:46
29楼
买房、卖房、租房上镇江房产网!
只看该作者
分享本楼
华飞装饰客服
家装认证商户
来自 江苏省
精华
108
注册 2015-11-2
2017-6-16 15:39
30楼
MY0511相亲,一分钟注册,享一辈子幸福!
只看该作者
分享本楼
华飞装饰客服
家装认证商户
来自 江苏省
精华
108
注册 2015-11-2
2017-6-16 15:47
31楼
买房、卖房、租房上镇江房产网!
只看该作者
分享本楼
华飞装饰客服
家装认证商户
来自 江苏省
精华
108
注册 2015-11-2
2017-6-24 15:24
32楼
找工作,就上MY0511!
只看该作者
分享本楼
华飞装饰客服
家装认证商户
来自 江苏省
精华
108
注册 2015-11-2
2017-6-26 11:35
33楼
[联宇电脑] 电脑组装\维修\升级\企业单位电脑维护!
只看该作者
分享本楼
华飞装饰客服
家装认证商户
来自 江苏省
精华
108
注册 2015-11-2
[
本帖最后由 华飞装饰客服 于 17-6-30 11:24 编辑
]
2017-6-30 11:22
34楼
MY0511相亲,一分钟注册,享一辈子幸福!
只看该作者
分享本楼
华飞装饰张和花
来自 江苏省
精华
3
注册 2017-2-6
客户家开始后期安装了,期待最终的效果哦
---发自iPhone 6S---
2017-7-21 11:36
35楼
买房、卖房、租房上镇江房产网!
只看该作者
分享本楼
华飞装饰客服
家装认证商户
来自 江苏省
精华
108
注册 2015-11-2
2018-1-7 17:19
36楼
MY0511相亲,一分钟注册,享一辈子幸福!
只看该作者
分享本楼
返回华飞精品装饰
快速回复主题
游客
您目前还是游客,请
登录
或
注册
您目前是游客,本帖已被系统设置了自动关闭,不可回复!
文明交流,理性发言
0/5000字
<
>
请在打开的新窗口中支付完成打赏
我已完成支付打赏
支付失败重新支付
其他金额
打赏金额:
元
确定
支付打赏
提 现
打赏人
打赏金额(元)
打赏时间
镇江德铭豪门.
1.00
2016-11-20 12:44
Powered by
Discuz! X 2
0.061201 s
清除 Cookies
-
镇江网友之家
-
手机版
论坛导航
关闭
吃喝玩乐
饮食男女
镇江钓友之家
菜菜鸟户外
镇江单车俱乐部
镜头里的镇江
畅游天下
猫狗总动员
视觉Coffeeshop摄影部落
花鸟鱼虫
婚姻.亲子.家庭
家有学子
谈婚论嫁
女性天地
母婴乐园
婚姻生活
梦溪佳缘
装修
家庭装修
装修招标
镇江室内设计师交流
装修商家直通车
你好,镇江!
百姓话题
我要买房
0511爱心家园
市场监管•12315热线
分类信息
生活服务
闲置转让
镇江二手房/镇江租房
镇江招聘求职
教育培训
镇江二手车
商铺厂房写字楼租售
宠物市场
运动健身
卡券交易
电脑维修升级
杂货铺
其他分类信息区
兴趣爱好
HiFi音响江城沙龙
镇江市美术家协会
我爱模型
车友俱乐部
车迷之家
汽车驾培中心
运动俱乐部
镇江市冬泳、铁人三项协会
聚焦足球
镇江羽毛球
镇江乒乓球协会
镇江网球协会
镇江市自行车运动协会
热爱篮球
动力机车
合作栏目
维权热线
天翼时代
色觉影像摄影工作室
站务区
疑问与建议
网络问政
市政府工作部门
垂直管理部门
党群工作部门
其他重点单位
辖市(区)