项目地址 | 华珊豪庭
项目面积 | 下叠
设计风格 | 现代简约
设计主创 | 周亚军
设计单位 | 华飞精品装饰设计中心
全景效果图 https://vr.justeasy.cn/view/m167s75998849576-1680628534.html
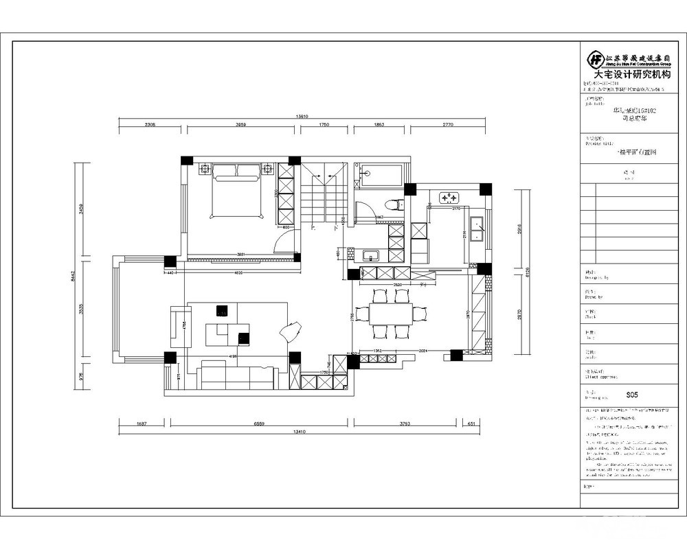
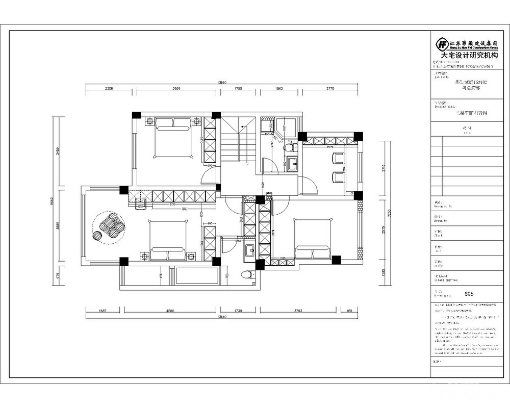
一楼平面图


效果图



华飞装饰——大团队 大设计 装修您的房子就是大事情——咨询电话:13775301117
【公司地址】黄山南路18号54-3(即天和星城南山一号马路对面西北方向【华飞精品装饰】=润州花园南大门东侧20米处),
万一没找到,把车停【天和星城南山一号门口】我一分钟左右就能把您接到
[ 本帖最后由 华飞装饰客服 于 2023-6-7 16:59 编辑 ]







