| 标题
快捷导航

精彩推荐:MY0511客户端下载

    • 中信银行镇江分行

    • 公益体彩 乐善人生

    • 鹏龙鸿蒙

    • 天然石材·人造石

    » 梦溪论坛 » 家庭装修 » 华飞精品装饰 » [作品赏析] ———东方城园5-101——法式——冯俊明
    华飞精品装饰  >  [作品赏析] ———东方城园5-101——法式——冯俊明     
    查看: 3432  回复: 1
    [作品赏析] ———东方城园5-101——法式——冯俊明      查看: 3432  回复: 1
      本主题由 华飞装饰客服 于 2024-12-21 14:23 解除置顶  
    • 来自 江苏省
    • 精华 108
    • 注册 2015-11-2
    •  
    [作品赏析] ———东方城园5-101——法式——冯俊明



    项目地址  |   东方城园


    设计风格    | 法式


    设计主创   |   冯俊明


    设计单位   |  华飞精品装饰设计中心


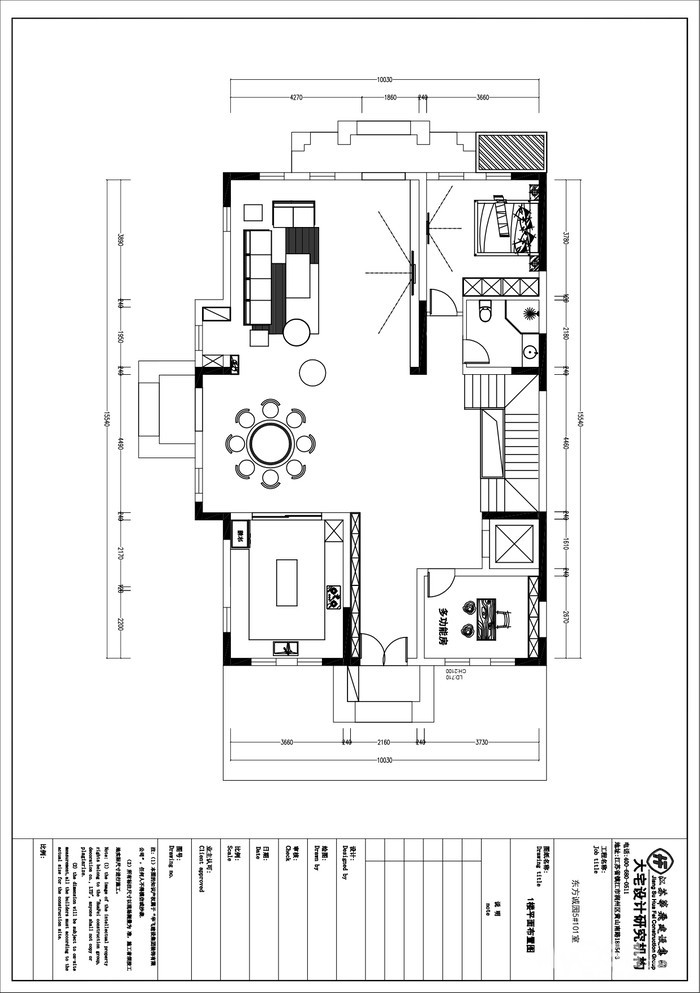
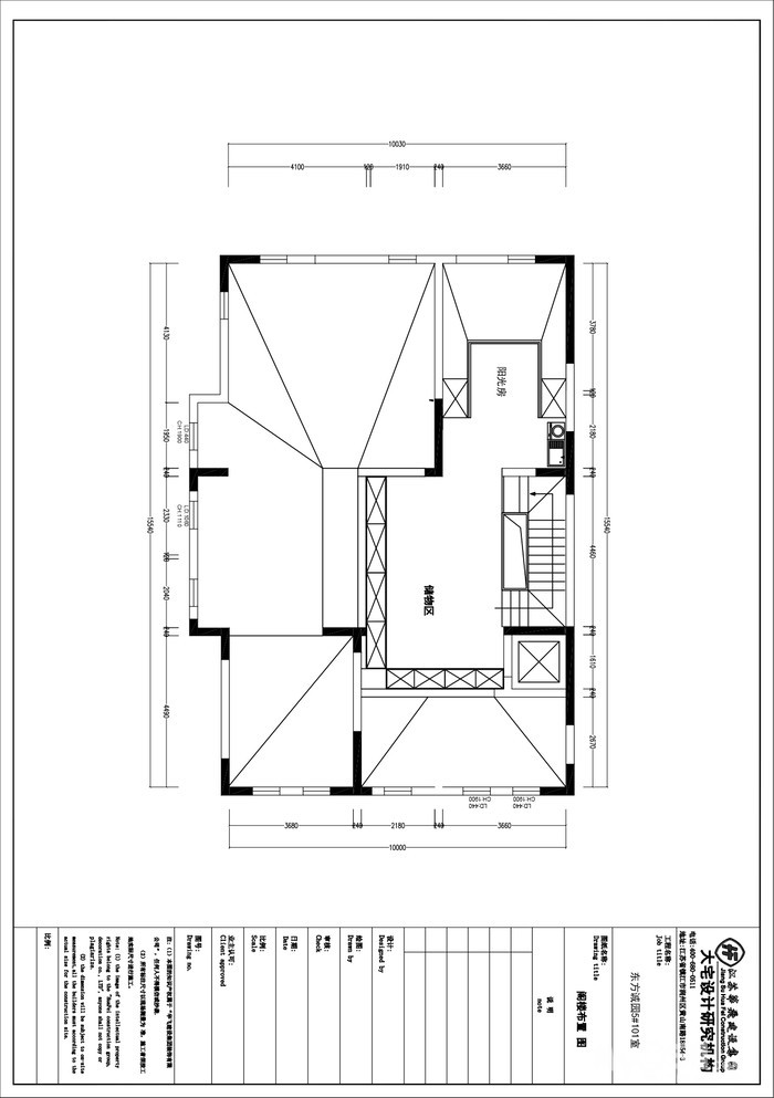
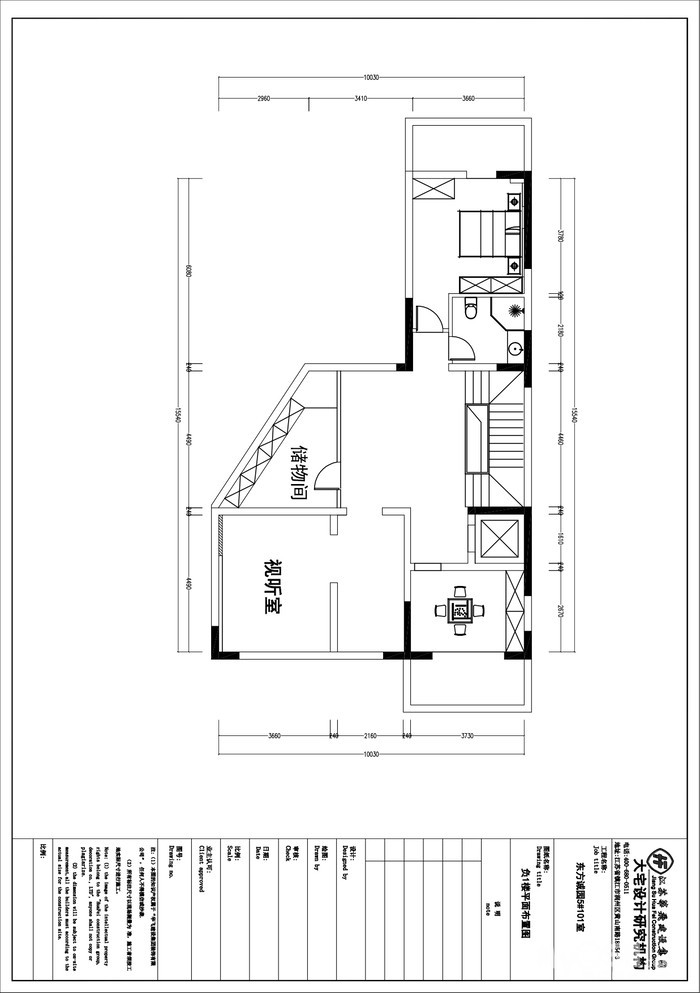
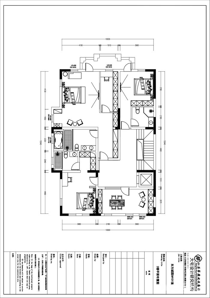
    平面布置图













                               

                










                           效果图














                               








    华飞装饰——大团队 大设计 装修您的房子就是大事情——咨询电话:13775301117

    【公司地址】黄山南路18号54-3(即天和星城南山一号马路对面西北方向【华飞精品装饰】=润州花园南大门东侧20米处),
                    万一没找到,把车停【天和星城南山一号门口】我一分钟左右就能把您接到


    [ 本帖最后由 华飞装饰客服 于 2024-3-20 15:44 编辑 ]





                      
    • 来自 江苏省
    • 精华 36
    • 注册 2015-11-4
    • 行业 其它
    •  
    查看积分策略说明快速回复主题
    您目前还是游客,请 登录注册
    您目前是游客,本帖已被系统设置了自动关闭,不可回复!

    0/5000字

     
    < >
     

    Powered by Discuz! X 2 0.061962 s 清除 Cookies - 镇江网友之家 - 手机版
    论坛导航 关闭