收藏本站
客户端
扫码下载客户端
官方微信
打开微信扫一扫
登录
|
注册
|
标题
标题
用户
全站首页
|
论坛导航
|
网络问政
|
招聘求职
|
买房租房
|
装修频道
|
生活服务
|
教育
|
相亲
|
亲子
|
美食
|
婚嫁
|
手机客户端
家有学子
|
母婴乐园
快捷导航
精彩推荐:
MY0511客户端下载
中信银行镇江分行
公益体彩 乐善人生
鹏龙鸿蒙
天然石材·人造石
»
梦溪论坛
»
家庭装修
»
艺饰界装饰
» 艺饰界——福临广场301(木工)
艺饰界装饰
>
[在建工地]
艺饰界——福临广场301(木工)
查看: 5892 回复: 30
快速回复
返回艺饰界装饰
[在建工地]
艺饰界——福临广场301(木工)
查看: 5892 回复: 30
上一主题
|
下一主题
艺饰界装饰
专版版主
来自 江苏省
精华
41
注册 2016-10-9
行业 房产建筑
艺饰界——福临广场301(木工)
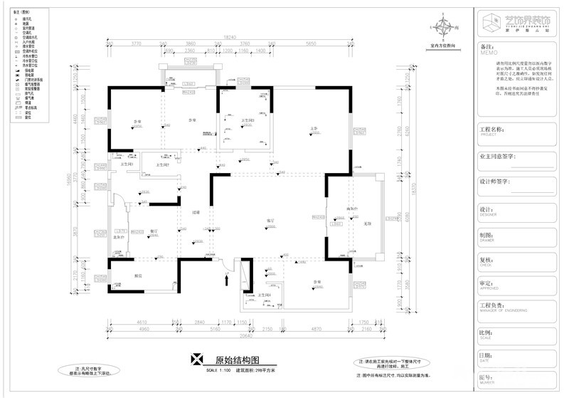
■ 楼盘名称:
福临广场
■ 建筑面积:
300平
■ 施工方式:
半包
■ 设计风格:
美式
■ 开工日期:
2016.12.05
■ 高级设计师:
李栋
■
任职公司: 镇江市艺饰界装饰工程有限公司
■
毕业院校:
浙江理工大学.环境设计
■
设计理念:
一切设计由概念出发,围绕功能进行细节设计
[
本帖最后由 艺饰界装饰 于 17-10-28 10:18 编辑
]
已有
0
人打赏
2016-12-9 23:54
1楼
0511家装频道:本地家居服务平台,数万业主共同选择
只看该作者
分享本楼
艺饰界装饰
专版版主
来自 江苏省
精华
41
注册 2016-10-9
行业 房产建筑
■
我们早期是采用的一对一的服务体系,现在我们是一个团队为一户服务,我们就是这么的齐心
一个团队
(设计部经理、设计师、制图师、工程部经理、工程部助理、质检、工程在线客服)与您进行实时互动,实时了解工地进程,让您了解到您想了解的一切信息!
[
本帖最后由 艺饰界装饰 于 17-10-19 15:02 编辑
]
2016-12-10 00:35
2楼
MY0511相亲,一分钟注册,享一辈子幸福!
只看该作者
分享本楼
艺饰界装饰
专版版主
来自 江苏省
精华
41
注册 2016-10-9
行业 房产建筑
今天已经到拆除部分啦!实时了解工地境况!坐等拆除现场照!!!
[
本帖最后由 艺饰界装饰 于 16-12-10 10:23 编辑
]
2016-12-10 10:23
3楼
MY0511相亲,一分钟注册,享一辈子幸福!
只看该作者
分享本楼
艺饰界装饰
专版版主
来自 江苏省
精华
41
注册 2016-10-9
行业 房产建筑
■
拆除完工
[
本帖最后由 艺饰界装饰 于 17-10-19 15:03 编辑
]
2016-12-11 09:51
4楼
[联宇电脑] 电脑组装\维修\升级\企业单位电脑维护!
只看该作者
分享本楼
艺饰界装饰
专版版主
来自 江苏省
精华
41
注册 2016-10-9
行业 房产建筑
■
拆除完工
[
本帖最后由 艺饰界装饰 于 17-10-19 15:04 编辑
]
2016-12-13 10:07
5楼
0511家装频道:本地家居服务平台,数万业主共同选择
只看该作者
分享本楼
艺饰界装饰
专版版主
来自 江苏省
精华
41
注册 2016-10-9
行业 房产建筑
■
开槽准备
[
本帖最后由 艺饰界装饰 于 17-10-19 15:04 编辑
]
2016-12-14 11:48
6楼
[联宇电脑] 电脑组装\维修\升级\企业单位电脑维护!
只看该作者
分享本楼
艺饰界装饰
专版版主
来自 江苏省
精华
41
注册 2016-10-9
行业 房产建筑
■
砌墙完成
[
本帖最后由 艺饰界装饰 于 17-10-19 15:05 编辑
]
2016-12-16 10:05
7楼
买房、卖房、租房上镇江房产网!
只看该作者
分享本楼
艺饰界装饰
专版版主
来自 江苏省
精华
41
注册 2016-10-9
行业 房产建筑
■
材料验收
[
本帖最后由 艺饰界装饰 于 17-10-19 15:05 编辑
]
2016-12-16 12:03
8楼
0511家装频道:本地家居服务平台,数万业主共同选择
只看该作者
分享本楼
艺饰界装饰
专版版主
来自 江苏省
精华
41
注册 2016-10-9
行业 房产建筑
砌墙阶段~~~
[
本帖最后由 艺饰界装饰 于 16-12-18 09:11 编辑
]
2016-12-18 09:05
9楼
[联宇电脑] 电脑组装\维修\升级\企业单位电脑维护!
只看该作者
分享本楼
艺饰界装饰
专版版主
来自 江苏省
精华
41
注册 2016-10-9
行业 房产建筑
[
本帖最后由 艺饰界装饰 于 17-10-19 15:06 编辑
]
2016-12-21 09:47
10楼
[联宇电脑] 电脑组装\维修\升级\企业单位电脑维护!
只看该作者
分享本楼
xiaotang2009090
来自 江苏省
精华 0
注册 2014-2-14
标准
2016-12-22 21:11
11楼
MY0511相亲,一分钟注册,享一辈子幸福!
只看该作者
分享本楼
艺饰界装饰
专版版主
来自 江苏省
精华
41
注册 2016-10-9
行业 房产建筑
■
砌墙完工
[
本帖最后由 艺饰界装饰 于 17-10-19 15:06 编辑
]
2016-12-25 17:08
12楼
MY0511相亲,一分钟注册,享一辈子幸福!
只看该作者
分享本楼
艺饰界装饰
专版版主
来自 江苏省
精华
41
注册 2016-10-9
行业 房产建筑
■
砌墙完工
[
本帖最后由 艺饰界装饰 于 17-10-19 15:06 编辑
]
2017-1-3 16:45
13楼
MY0511相亲,一分钟注册,享一辈子幸福!
只看该作者
分享本楼
艺饰界装饰
专版版主
来自 江苏省
精华
41
注册 2016-10-9
行业 房产建筑
新年好~~~小编在此给所有的看官拜个晚年,祝大家在新的一年里,健健康康,平平安安,心想事成哦~~~~
节后我们的工地正常开始施工喽~~~~
请大家继续关注我们工地的每一个阶段的施工进度哦~~~~
年前开槽的工程全部结束啦!!!小编给大家看一下,开槽完毕的实景照片~~~~
[
本帖最后由 艺饰界装饰 于 17-2-9 11:05 编辑
]
2017-2-9 10:40
14楼
MY0511相亲,一分钟注册,享一辈子幸福!
只看该作者
分享本楼
艺饰界装饰
专版版主
来自 江苏省
精华
41
注册 2016-10-9
行业 房产建筑
■
水电放样
[
本帖最后由 艺饰界装饰 于 17-10-19 15:07 编辑
]
2017-2-10 10:13
15楼
[联宇电脑] 电脑组装\维修\升级\企业单位电脑维护!
只看该作者
分享本楼
艺饰界装饰
专版版主
来自 江苏省
精华
41
注册 2016-10-9
行业 房产建筑
■
水电完工
标准水电施工12
标准水电施工11
标准水电施工10
标准水电施工9
标准水电施工8
标准水电施工7
标准水电施工6
标准水电施工5
标准水电施工4
标准水电施工3
强电走顶,水管保温绵是不收费的哦~~~
3D全景放样
标准水电施工2
标准水电施工1
标准水电施工8
标准水电施工9
[
本帖最后由 艺饰界装饰 于 17-10-19 15:07 编辑
]
2017-3-10 09:08
16楼
找工作,就上MY0511!
只看该作者
分享本楼
刘建平1971
来自 江苏省
精华 0
注册 2017-4-25
能问一下半包价位吗
[
本帖最后由 艺饰界装饰 于 17-5-6 14:46 编辑
]
2017-5-4 15:10
17楼
MY0511相亲,一分钟注册,享一辈子幸福!
只看该作者
分享本楼
艺饰界装饰
专版版主
来自 0
精华
41
注册 2016-10-9
行业 房产建筑
QUOTE:
原帖由
刘建平1971
于 17-5-4 15:10 发表
能问一下半包价位吗
您好!你是想咨询这户的半包价吗?您可以电话咨询我:13952948183
2017-5-6 14:46
18楼
0511家装频道:本地家居服务平台,数万业主共同选择
只看该作者
分享本楼
刘建平1971
来自 江苏省
精华 0
注册 2017-4-25
在微信里回复我可以吗,13218345000
2017-5-8 11:53
19楼
MY0511相亲,一分钟注册,享一辈子幸福!
只看该作者
分享本楼
艺饰界装饰
专版版主
来自 江苏省
精华
41
注册 2016-10-9
行业 房产建筑
■
地暖找平
[
本帖最后由 艺饰界装饰 于 17-10-19 15:08 编辑
]
2017-5-12 11:39
20楼
MY0511相亲,一分钟注册,享一辈子幸福!
只看该作者
分享本楼
伊派爱马仕瓷砖
来自 江苏省
精华 0
注册 2014-10-9
行业 房产建筑
工地看着就整洁标准,很舒服。
2017-5-12 15:58
21楼
0511家装频道:本地家居服务平台,数万业主共同选择
只看该作者
分享本楼
艺饰界装饰
专版版主
来自 江苏省
精华
41
注册 2016-10-9
行业 房产建筑
QUOTE:
原帖由
伊派爱马仕瓷砖
于 17-5-12 15:58 发表
工地看着就整洁标准,很舒服。
谢谢!我们会再接再厉的!!!
2017-5-13 09:25
22楼
找工作,就上MY0511!
只看该作者
分享本楼
艺饰界装饰
专版版主
来自 江苏省
精华
41
注册 2016-10-9
行业 房产建筑
■
地暖铺完之后,接下来就要做找平的工作
■
师傅着手开始动工
■
做了一半之后的半成品效果图
■
找平结束的效果,看着还是挺满意的
[
本帖最后由 艺饰界装饰 于 17-10-19 15:10 编辑
]
2017-5-13 09:32
23楼
买房、卖房、租房上镇江房产网!
只看该作者
分享本楼
艺饰界装饰
专版版主
来自 江苏省
精华
41
注册 2016-10-9
行业 房产建筑
■
防水完工
■
防水条的安装
■
预防工作完毕
[
本帖最后由 艺饰界装饰 于 17-10-19 15:11 编辑
]
2017-5-13 09:40
24楼
0511家装频道:本地家居服务平台,数万业主共同选择
只看该作者
分享本楼
艺饰界装饰
专版版主
来自 江苏省
精华
41
注册 2016-10-9
行业 房产建筑
■
瓦工完工
墙砖和地砖全部施工结束
贴完就结束了吗?
贴完之后我们的质检会对每个贴砖的地方,做相应的检查工作哦!
质检在检查每一处,确保墙砖和地砖的质量保证!!做到让客户放心,省心!
今天小编就为大家介绍到这里啦
[
本帖最后由 艺饰界装饰 于 17-10-19 15:12 编辑
]
2017-5-13 13:35
25楼
MY0511相亲,一分钟注册,享一辈子幸福!
只看该作者
分享本楼
刘建平1971
来自 0
精华 0
注册 2017-4-25
继续期待中
2017-5-14 00:37
26楼
MY0511相亲,一分钟注册,享一辈子幸福!
只看该作者
分享本楼
艺饰界装饰
专版版主
来自 江苏省
精华
41
注册 2016-10-9
行业 房产建筑
QUOTE:
原帖由
刘建平1971
于 17-5-14 00:37 发表
继续期待中
嗯嗯
2017-5-14 15:24
27楼
[联宇电脑] 电脑组装\维修\升级\企业单位电脑维护!
只看该作者
分享本楼
艺饰界装饰
专版版主
来自 江苏省
精华
41
注册 2016-10-9
行业 房产建筑
■
瓦工验收
[
本帖最后由 艺饰界装饰 于 17-10-19 15:13 编辑
]
2017-5-28 15:35
28楼
0511家装频道:本地家居服务平台,数万业主共同选择
只看该作者
分享本楼
艺饰界装饰
专版版主
来自 江苏省
精华
41
注册 2016-10-9
行业 房产建筑
■
木工施工中
[
本帖最后由 艺饰界装饰 于 17-10-19 15:14 编辑
]
2017-6-30 09:49
29楼
[联宇电脑] 电脑组装\维修\升级\企业单位电脑维护!
只看该作者
分享本楼
艺饰界装饰
专版版主
来自 江苏省
精华
41
注册 2016-10-9
行业 房产建筑
■
木工验收
[
本帖最后由 艺饰界装饰 于 17-10-19 15:14 编辑
]
2017-7-1 16:52
30楼
MY0511相亲,一分钟注册,享一辈子幸福!
只看该作者
分享本楼
艺饰界装饰
专版版主
来自 江苏省
精华
41
注册 2016-10-9
行业 房产建筑
■ 油漆施工中
[
本帖最后由 艺饰界装饰 于 17-10-21 15:45 编辑
]
2017-10-21 15:44
31楼
0511家装频道:本地家居服务平台,数万业主共同选择
只看该作者
分享本楼
返回艺饰界装饰
快速回复主题
游客
您目前还是游客,请
登录
或
注册
您目前是游客,本帖已被系统设置了自动关闭,不可回复!
文明交流,理性发言
0/5000字
<
>
请在打开的新窗口中支付完成打赏
我已完成支付打赏
支付失败重新支付
其他金额
打赏金额:
元
确定
支付打赏
提 现
打赏人
打赏金额(元)
打赏时间
Powered by
Discuz! X 2
0.070451 s
清除 Cookies
-
镇江网友之家
-
手机版
论坛导航
关闭
吃喝玩乐
饮食男女
镇江钓友之家
菜菜鸟户外
镇江单车俱乐部
镜头里的镇江
畅游天下
猫狗总动员
视觉Coffeeshop摄影部落
花鸟鱼虫
婚姻.亲子.家庭
家有学子
谈婚论嫁
女性天地
母婴乐园
婚姻生活
梦溪佳缘
装修
家庭装修
装修招标
镇江室内设计师交流
装修商家直通车
你好,镇江!
百姓话题
我要买房
0511爱心家园
市场监管•12315热线
分类信息
生活服务
闲置转让
镇江二手房/镇江租房
镇江招聘求职
教育培训
镇江二手车
商铺厂房写字楼租售
宠物市场
运动健身
卡券交易
电脑维修升级
杂货铺
其他分类信息区
兴趣爱好
HiFi音响江城沙龙
镇江市美术家协会
我爱模型
车友俱乐部
车迷之家
汽车驾培中心
运动俱乐部
镇江市冬泳、铁人三项协会
聚焦足球
镇江羽毛球
镇江乒乓球协会
镇江网球协会
镇江市自行车运动协会
热爱篮球
动力机车
合作栏目
维权热线
天翼时代
色觉影像摄影工作室
站务区
疑问与建议
网络问政
市政府工作部门
垂直管理部门
党群工作部门
其他重点单位
辖市(区)