房不能“随便选”,但家可以“任意装”,大声说出你的想法
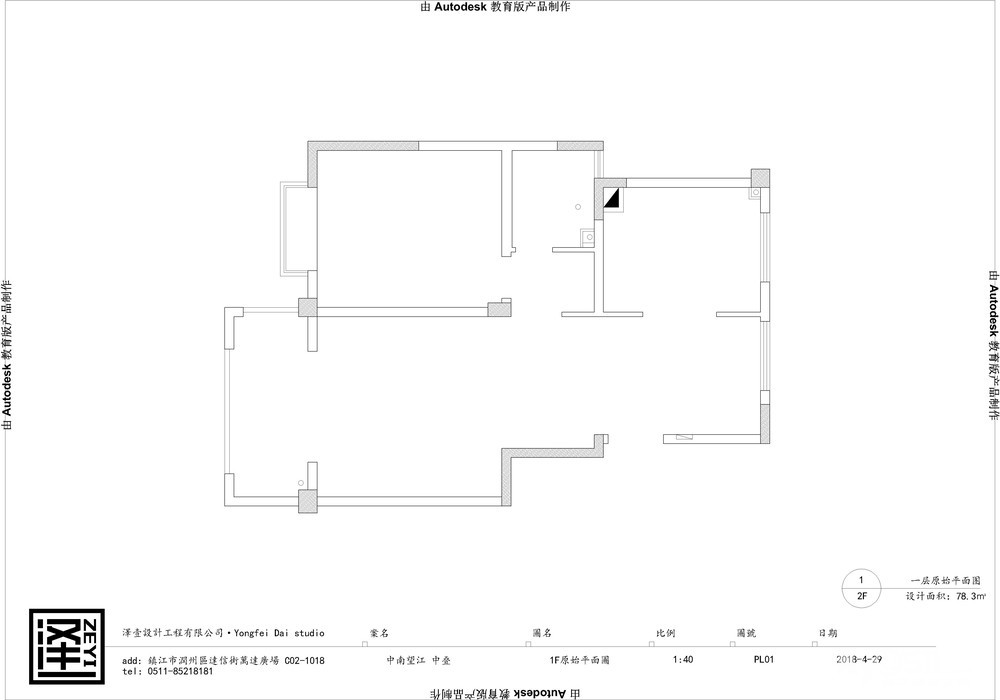
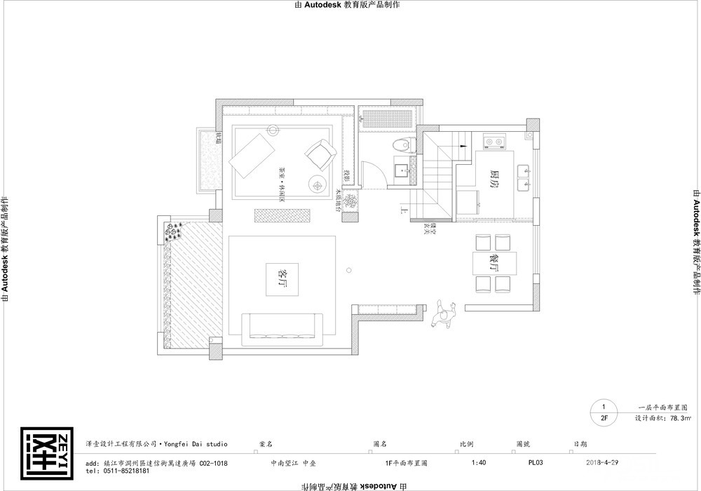
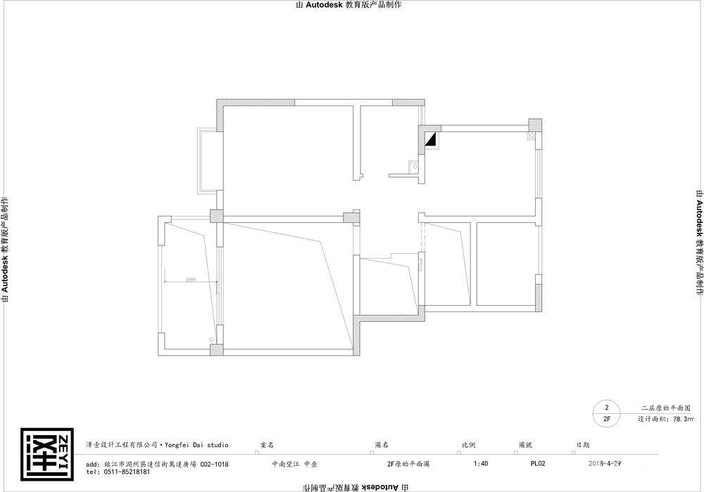
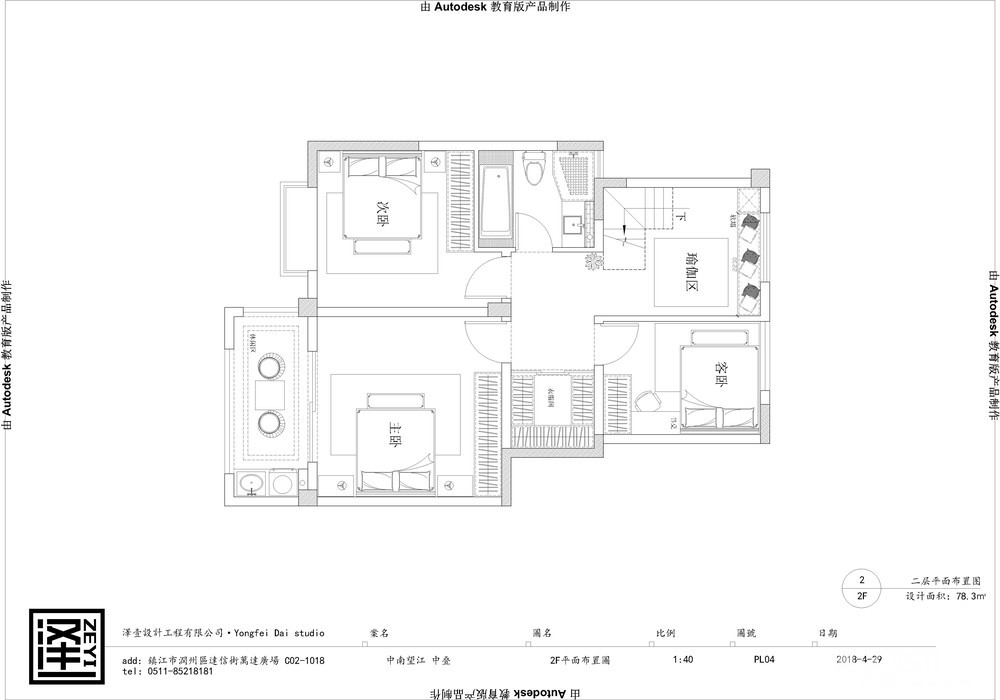
第一套为中南望江的主力户型,复式户型中的中叠
一层平面图



二层平面图



一二层设计面积均为78㎡
优点:1、南北通透,整体的采光和通风十分的好
2、整体的格局比较方正
缺点:1、楼梯的位置比较尴尬
2、厨房的空间太大利用率不算太高
结合优缺点我们对该户型做了以下的调整:
首先,由于原有楼梯洞预留的位置比较尴尬,如果按照现有的楼梯洞进行浇筑楼梯,会严重影响一楼门厅到客厅的通过性,同时对楼上的空间的利用率也有很大的影响,故将现有的干区部分以及占用一部分的厨房空间用来做楼梯,这样既可以解决楼梯通过性的问题,同时也将楼梯隐藏起来,避免了开门见梯的问题。
其次,由于是复式中叠(房间较多),所以对一楼空间进行了重新布局,将一楼定义为活动休闲区,二楼定义为生活区,将一楼的房间打通做成开放式的会客区以及客厅,电视背景采用半墙的设计。二楼则用来满足日常休息,划分了三个房间,同时将原有楼梯洞的位置作为衣帽间,增加了储物空间。
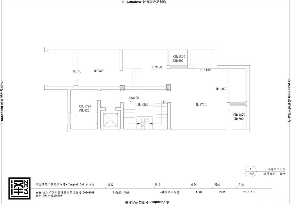
第二套的户型是联排(边户)


负一楼作为半地下,有两个采光井,在这两个位置放置了需要采光与通风的设施(麻将桌以及健身器材)
将通向车库的楼梯往车库内移动,使得生活区更为完整,并设置水吧台方便会客以及娱乐。


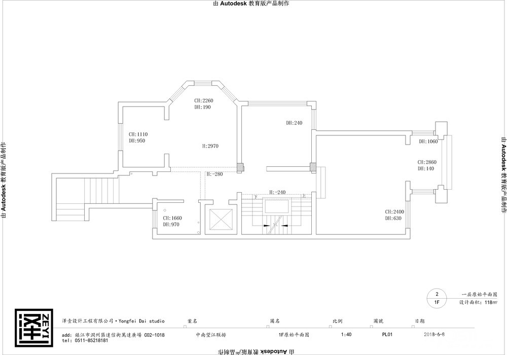
一楼的改动将原餐厅通往客厅处改为镂空玄关,使得开门见景
而踏步则移到了原露台(后为现浇部分归为室内使用)与客厅相接部分
使空间划分更为完整,这样的布局更为合理。


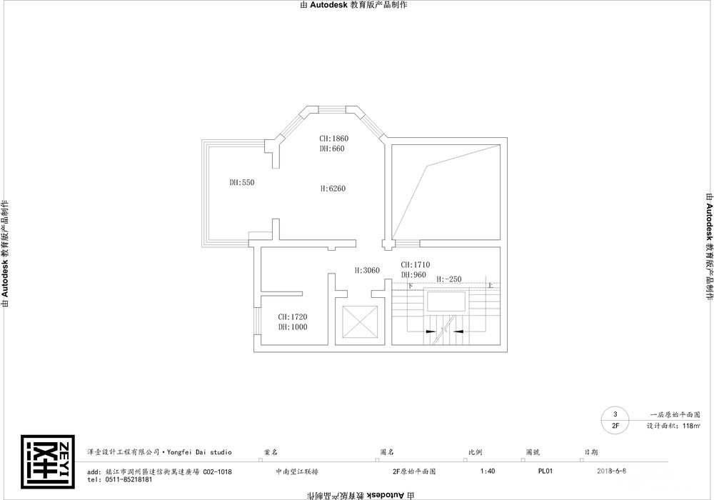
二楼将原公用卫生间归到主卧,形成一个大套间作主卧,整体的衣柜集储藏、装饰、分隔空间为一体
而原客厅挑空部分现浇出一个房间,隔出一个小空间作为卫生间,内增一排一体柜,满足女孩子衣饰的储藏需求。


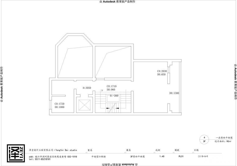
三楼将北面卧室与外部打通,使得室内使用面积更大,在居住活动时更为舒适
西面的卧室也做了一个套间,但没有独立卫生间
三楼做公共卫生间的目的在于兼顾顶楼没有卫生间的不便


顶楼通往生活阳台的空间改造做了一个衣帽间,可储存过季的一些物品
南边作为室外活动区可供业主自主选择活动项目
中间部分可布置榻榻米作为室内活动区,也可做其他使用,灵活多变
更多户型还在更新哦。。。
[ 本帖最后由 泽一设计 于 2018-9-21 16:54 编辑 ]







