房子不单是身体的收容所,更是心灵的归宿,栖息的港湾。
家之所以为家,就要无时无刻不体现出居住的惬意。

中南·公园物语户型解析
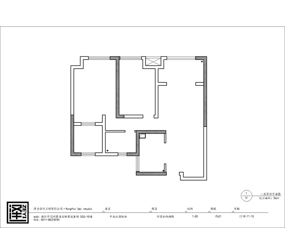
HOME 97㎡
平面图解析

该户型为中南公园物语97㎡。入户视野开阔,光线充足,客餐厅空间充足。
97㎡的大小,对于新婚、老年居住恰到好处。细处分析原户型结构的问题主要在于空间功能利用率跟完整性上。


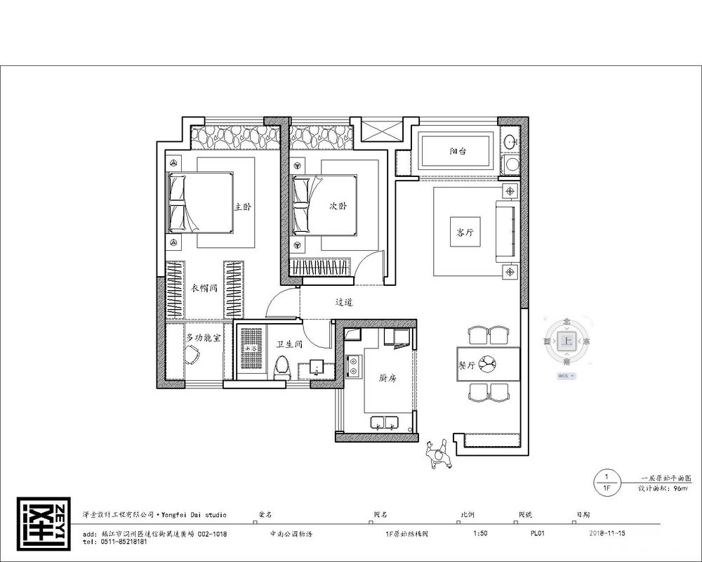
设计思路:客厅电视背景墙的不完整限制了沙发购买的尺寸,
故将过宽的阳台缩减了一定的尺寸留给室内客厅,确保客厅电视背景墙及沙发背景墙的完整性。
其次是过道通向各功能空间,首先对次卧开门位置进行了调整,保证墙面完整性。
主卧的空间过大,使得空间浪费较多。
在这个问题的基础上,将赠送空间与主卧室进行整合,功能上也是增加了衣帽间及一个多功能室的使用。
在规整的格局基础上为后期使用上做了更多的考虑,调整后使空间利用率更高。
HOME 112㎡
平面图解析

该户型为中南·公园物语洋房的中间户型,三室一厅一厨两卫,适用于3-5口人居住。
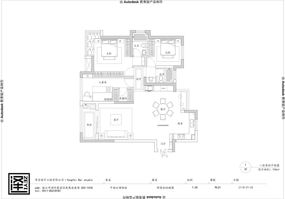
该套方案的出发点是以3代人共同居住为前提。
优点:1、该户型整体南北通透采光良好
2、两房以及客厅朝南
缺点:1、主卧卫生间门位置比较尴尬
2、餐厅的位置比较尴尬
3、进户门的位置


设计思路:1、将进户门的位置向左移动,既解决了进户门与卫生间门相对应的问题,
同时也将餐厅的位置让出来使餐厅的位置更加完整。
2、将卫生间与主卧门的位置格局进行改动,避开干区的镜子直对主卧门,
同时将一个卫生间划分到主卧形成套房。
3、利用双阳台的优势将生活阳台放入次卧,首先使客厅的位置变大采光通风变得更好。
其次将生活阳台放置于次卧里面可以避免晾晒小件衣物时有客人来访的尴尬。
HOME 125㎡
平面图解析

该套户型方正,两室朝南,光线充足,适合作为改善型住房和有二胎的家庭。
但该户型的厨房和餐厅空间比较局促,这也是后期户型改造中,改动较多的地方。


设计思路:1、牺牲朝北小房间的空间,将该空间改造成餐厅和西厨,增加餐厅和厨房的空间;
2、将主卧、次卧和阳台的空间重新划分,弱化阳台空间。
阳台划分到次卧,增加储物空间;
3、改变主卧开门的位置,避免主卧门正对主卫门;
4、门厅区域重新划分,形成一个完整的门厅区域,进门见景。
HOME 142㎡
平面图解析

该户型为公园物语多层洋房的经典边户。
优点:区域相对方正,客餐厅采光及通风效果良好
缺点:双通阳台利用率不高,进门正对承重墙角,没有门厅


设计思路:首先,将入户门侧移,避免进门正对阳角,保证餐厅的完整性。
其次利用原卧室空间大的优势,分化出门厅及活动区,
并将生活阳台和活动区相邻,避免生活阳台放在客厅的尴尬。

[ 本帖最后由 泽一设计 于 2019-9-11 10:27 编辑 ]






想看看139户型的解析
这个要求满足不了,热心业主也可以把我拉进去


