
温暖治愈的日式原木风
像融化的太妃糖
在冬日暖洋洋的
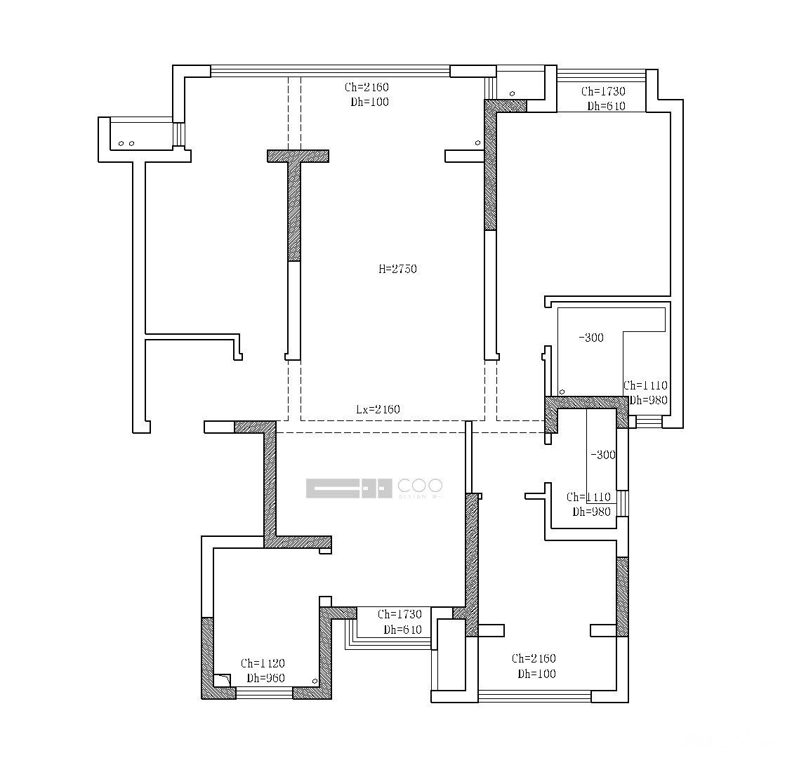
原始户型
原户型
三房两厅两卫一厨
开间较小
进深较大
好在南北通透
没有暗间

平面布局
空间改造部分
根据业主需求
敲掉了主卧室飘窗
扩大室内空间
并将主卧卫生间改为衣帽间
客卫区域将洗手台移出
做了干湿分离

拆除阶段

(2021年6月22日)
砌墙阶段

(2021年6月28日)
水电阶段

(2021年7月10日)
木工阶段

(2021年7月28日)
瓦工阶段


厨下杂砖也尽量统一
贴砖完成后及时做好成品保护

(2021年8月13日)
油漆阶段


(2021年9月9日)
安装阶段



(2021年10月22日)
写到这里
小泽对毕业照充满了期待
因受疫情影响
部分完工成品照暂时无法拍摄
后续会尽快和大家见面
敬请期待
[ 本帖最后由 泽一设计 于 2022-3-31 17:30 编辑 ]









