
自然舒适的现代风
融入温柔的奶茶色
优雅而浪漫
温暖而治愈
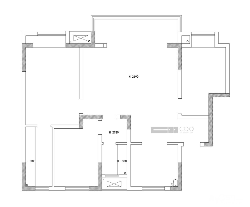
原始户型
原户型较为方正
三房两厅两卫一厨
客餐厅一体
采光很棒
也存在以下问题
主卫长度较长
主卧室储物空间少
卫生间门正对床

平面布局
空间改造部分
根据业主需求保留了两个卧室
主卧室作为主要生活区域
需增加更多储物空间
于是将主卧室改造为一个完整的大套房
客卫干湿区分离
在干区对面巧用承重墙
增设一个储物间
给日常生活杂物一个独立空间

效果图


拆除阶段

(2021年8月5日)
砌墙阶段

(2021年8月16日)
水电阶段

(2021年8月21日)
木工阶段

(2021年9月9日)
瓦工阶段

(2021年10月11日)
油漆阶段

(2021年11月29日)
安装阶段



(2021年12月19日)
我们身处快节奏的都市
回到家只为享受休闲的生活
远离喧嚣
感受生活的慢
是你
也是我所向往的








