(南山浅水湾花苑内部环境)
南山浅水湾花苑位于镇江市丹徒区长香路与湖滨路交汇处,小区东南水面环绕,浅丘地形起伏婉延,负阴抱阳,生生不息;利用真山真水,理水整地,勾画蓝图。
楼盘调研
小区周边配套了丹徒实验学校,丹徒区人民医院,宝龙广场,茅以升实验学校…楼盘动态我们近几月也在关注,同时对其内部进行了调研,现场实地测量,研讨设计方案,目前也有签约项目。


(南山浅水湾花苑楼宇分布)
目前在售16#叠拼别墅,建筑面积约150-180㎡,均价约13000元/㎡,小高层21#、31#、33#、35#,建筑面积约110-140㎡,均价8400元/㎡,即将加推7#、8#叠加别墅,建筑面积约150-180㎡。
17#18#23#24#29#共65套,面积约150-180㎡;
28#共15套,主力型面积为151-179㎡;32#共64套,主力型面积为118㎡;
25#26#27#30#共45套,面积约151-179㎡;
33#34#共124套,面积约112-118㎡;
31#35#共156套,面积约113-140㎡,以上户型预计今年8月份交付;
15#,16#,21#共89套,面积约118-180㎡,预计明年6月份交付。

(南山浅水湾花苑室外环境)

(南山浅水湾花苑室内环境)

(设计师实地测量户型)

(南山浅水湾花苑设计方案)
(南山浅水湾花苑签约项目)
户型解析
本期户型解析为南山浅水湾花苑的户型优缺点分析,希望各位业主在等待交付的日子里能够提前深入地了解并满足自己对新家的幻想~

户型特点
House Feactures
户型方正,动静分离
一层为会客公区
承重墙少,改造空间较大
主卧配备双阳台,视野开阔景观好
主要功能房间朝向及采光较好
客餐厅开间进深小,视觉效果欠佳
二楼楼梯前过道与次卧室开门流线交叉
部分功能区域略小,但可改性大

户型特点
House Feactures
拥有独立门厅,一梯一户
开间较大,居住的舒适度提升
空间十分宽敞,采光也很棒
功能区空间利用率较高
玄关处缺少储物区域
卫生间距离客餐厅较远
厨房略小且公区过道明显

户型特点
House Feactures
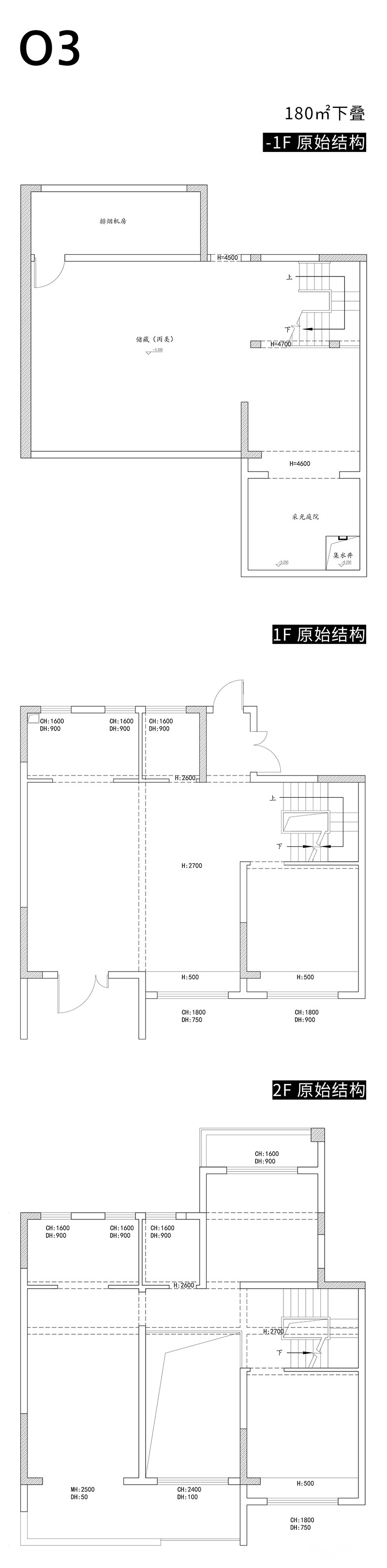
下叠与上叠户型一样
会比上叠多一层地下室
一楼直通室外花园
客餐厅观景视野较好
地下室通风采光条件较差且层高较高
部分区域面积配比不太合理
卧室数量无法满足多人口家庭的生活需求
我们已为打造您的新家做好充分的准备,出于对整体方案的保护,暂不便公布于线上,感兴趣的业主可以添加下方客服微信,在线预约线下一对一沟通哦~
[ 本帖最后由 泽一设计 于 2022-10-15 15:29 编辑 ]








