泽一 落地设计
Choose Only One

项目面积 / Area:117㎡(实际设计面积)
项目地址 / Project Address:中南 · 聆江阁
项目风格 / Style:法式风格
服务模式 / Service Pattern:设计+基装施工

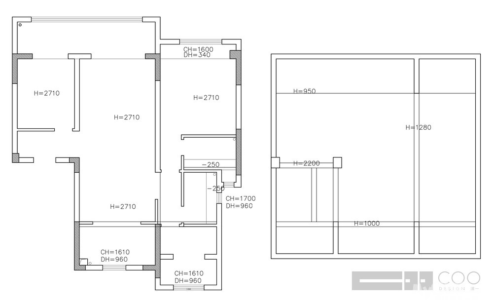
原始户型痛点分析
原户型为顶层附加阁楼户型,阁楼没有天窗,采光通风情况较差;
没有设计楼梯通往阁楼,需要在原有格局中空出楼梯位置;
两个卫生间均比较小,且没有干湿分区;
主卧室储物空间较少,对两口之家来说全屋卧室数量偏多。

平面布局优化改造
阁楼留出部分空间做为客厅挑空,墙面以开窗洞、设计玻璃半隔断形式增加通风与采光,也增强了与客厅的互动性;
将一层重新布局,楼梯设计半圆弧形造型,除了实用,也作为装饰位于客餐厅之间;
一楼两个小卫生间合并为一个更大的卫生间,并增加了浴缸;
主卧借用一小块客厅面积扩大出足够日常使用的衣柜,将客厅、阳台与东面卧室打通,使得整个客厅空间更通透宽敞,阳台的采光无遮挡地进入室内。
效果图
全景效果图







施工阶段


拆除阶段

现浇阶段


砌墙阶段

水电阶段

木工阶段

瓦工阶段


油漆阶段
本案作品已处于最后安装阶段,成品实拍即将呈现在大家面前,小小期待一下吧

设计的灵魂在于创意
The soul of design lies in creativity
创意的源泉来自生活
The source of creativity comes from life
泽一设计
-COO Design-

[ 本帖最后由 泽一设计 于 2024-3-31 11:19 编辑 ]







