泽一 落地设计
Choose Only One

HOME ·「 Spirited 飒 」
项目面积 / Area:258㎡(实际设计面积)
项目地址 / Project Address:江山府
项目风格 / Style:自然风格
服务模式 / Service Pattern:设计+基装施工

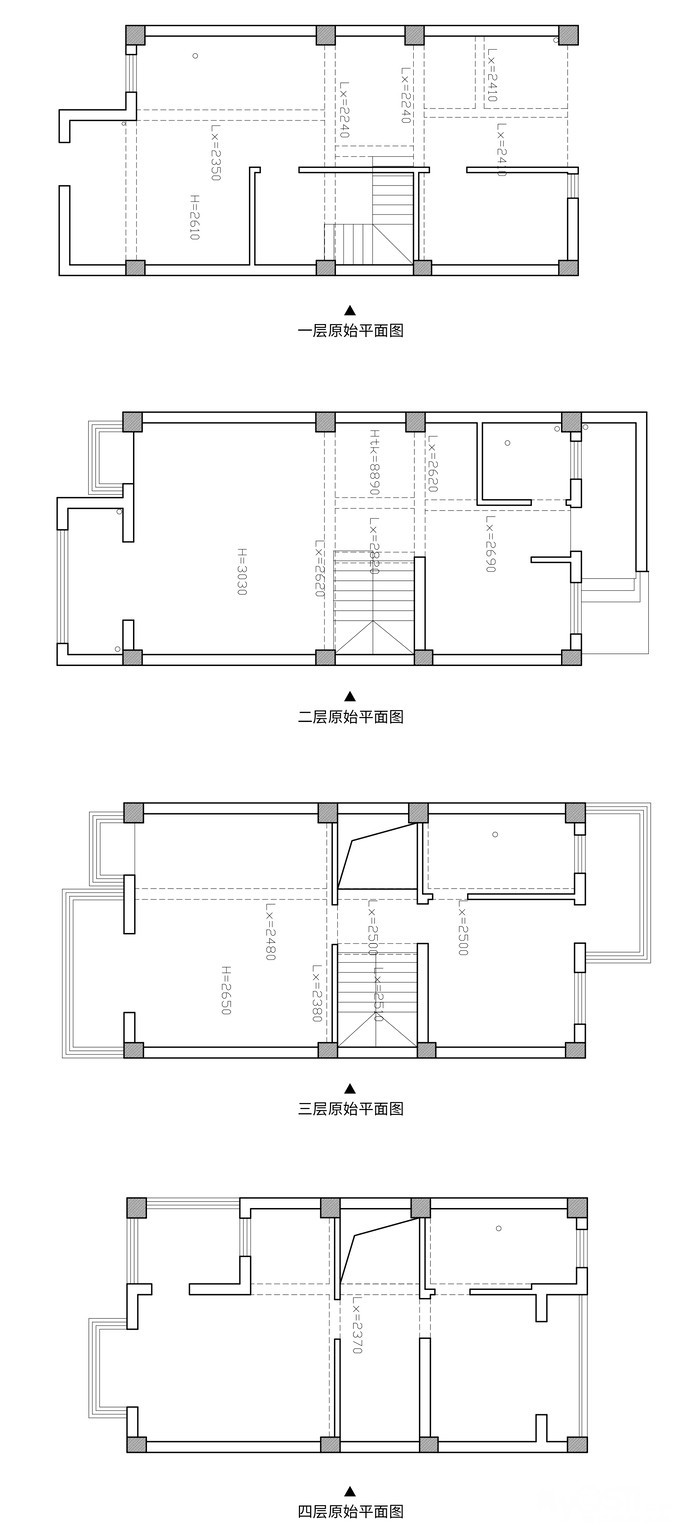
原始户型痛点分析
楼梯处于中心位置,将户型切分为两半,中间区域空置,利用率低;
公区面积不够大,不适应别墅户型结构;
光线对北侧区域照射不够,加上楼梯现有位置,对光线和通风影响较大;
现有楼梯尺寸不够,过窄,过陡,斜角踏步太多。

平面布局优化改造
将楼梯调整到光线最差的西北位置,腾出更多空间给实际使用区域;
空间打开后,对于公区的布置就非常方便了,将空间整体化后,更像一个别墅空间了;
对各层的光线和通风有着非常大的优化,同时增加了中间区域的利用率;
改造后的楼梯上下行动起来更加舒适。
效果图
全景效果图







施工阶段

拆除阶段

现浇阶段

砌墙阶段


水电阶段

木工阶段


瓦工阶段



油漆阶段


安装阶段
近期预告作品均处于软配最后调整阶段,成品实拍即将呈现在大家面前,小小期待一下吧

在繁忙的生活中
In a busy life
总有一些小设计让我们的日子变得美好
There are always some small designs that
泽一设计
-COO Design-

[ 本帖最后由 泽一设计 于 2024-4-14 16:37 编辑 ]







