| 标题
快捷导航

精彩推荐:MY0511客户端下载

    • 中信银行镇江分行

    • 公益体彩 乐善人生

    • 鹏龙鸿蒙

    • 天然石材·人造石

    » 梦溪论坛 » 家庭装修 » 上海雅寰空间设计 » 实景案例——中南世纪城复式(242平)——轻奢后现代——设计师袁欣——上海雅寰设计
    上海雅寰空间设计  >  [作品欣赏] 实景案例——中南世纪城复式(242平)——轻奢后现代——设计师袁欣——上海雅寰设计     
    查看: 24082  回复: 10
    [作品欣赏] 实景案例——中南世纪城复式(242平)——轻奢后现代——设计师袁欣——上海雅寰设计      查看: 24082  回复: 10
    • 来自 江苏省
    • 精华 94
    • 注册 2018-7-2
    •  
    实景案例——中南世纪城复式(242平)——轻奢后现代——设计师袁欣——上海雅寰设计


    项目地址:中南世纪城

    项目面积:242平方

    硬装设计师:袁欣

    软装设计师:袁欣

    深化设计:雅寰设计部

    承包方式:半包+部分主材托管





    本案业主是看了他的朋友家(我们设计作品),自己找到我们设计师的




    本案业主是刚完婚的小夫妻俩(女业主小姑娘的样子,很漂亮、很洋气、很文雅的样子),还没生宝宝,她家是通过我们的老客户介绍推荐而来,主业妈妈在南京工作,某单位高管(时尚、漂亮、有气质),当时找到我们时,一见如故的感觉      
            刚开始她们家不明确喜欢什么风格,我们带她们一家去看了我们竣工的实景现场(后现代风格),我们觉得适合她们家。看后一家人特别喜欢,基本就定位这种感觉的,她们尤其喜欢这家的主卧室的墙面装饰的色彩和地板纹案,她们要求要一模一样的,具体出来什么效果,请看下图,可以对比一下两家用同样的墙面装饰和同样的地板纹案做出来之后有什么差别。下面发图给大家欣赏一下(现场实景效果超级棒,每次看到都发出“好漂亮!”的声音,可惜拍摄作品当天下了场大暴雨,天气黑沉沉的,接近于天黑的样子,一点自然光都没有......)

    本案设计师:袁 欣(设计总监)







    贵宾专线:15006107628



    [ 本帖最后由 上海雅寰设计 于 2022-3-30 21:36 编辑 ]





                      
    • 来自 江苏省
    • 精华 94
    • 注册 2018-7-2
    •  

      业主爸妈为了让女儿跟自己住在一个小区,所以在同一小区买了这个二手房(老小区),房屋结构为复式楼,户型老式样、层高低等等问题,我们设计师首先罗列出原房屋结构的缺点,打破原来结构重新规划、重新设计,把有用的空间充分的释放出来,没用的空间用来收纳储藏,且让空间变得开阔通透、对流采光、有层次,功能也强大了许多,生活方式也随之改变。坐在餐厅一角,喝着咖啡、通过落地窗,观赏着户外花园的美景,多么暇意......




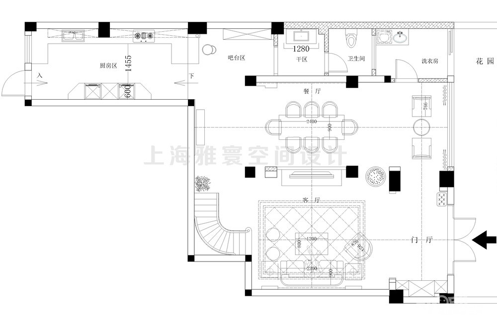
    下面是原来户型图和我们设计后的平面布置图原结构图(因为太忙,实在没时间把二楼弄出来,有兴趣的朋友可以来我们公司探讨):





    一楼原结构图




    原结构功能间:1.客厅 2.厨房餐厅公用(特小) 3.客房 4.卫生间










    一楼平面布置图:




    改造设计后的功能间:1.门厅(带换鞋区) 2.客厅 3.餐厅 4.过道 5.休闲区 6.吧台区 7.干区 8.大厨房 9.卫生间 10.洗衣房(直接通花园晾晒很方便)








    预约设计:15006107628




    [ 本帖最后由 上海雅寰设计 于 2019-5-18 20:24 编辑 ]




    • 来自 江苏省
    • 精华 94
    • 注册 2018-7-2
    •  



    根据业主的喜好和气质,客厅沙发是我们用三个不同套系的家具混搭方式出来的,这样显得时尚、简洁(不会显得呆板、传统),适合年轻人。靠近楼梯处的沙发没有选择传统的单人沙发,而是选择了2个南瓜凳,不占空间,节省空间让楼梯口开阔点。客厅右手墙面上是新风系统的出风口,顶面的中央空调吹风口设计的很合理,既避开了大梁,又让房屋的最高点完全的保留下来,这样房子会显得比较高。(此处友情提醒一下,有些人缺乏设计经验,遇到中央空间和大梁就就直接整个房子吊个大平顶完事,这样既让费了资金,反而不出效果,房子矮显得的没有层次,也就是说花了钱不值,且降低了让房屋本身的价值)










    预约设计:15006107628




    [ 本帖最后由 上海雅寰设计 于 2019-5-18 20:26 编辑 ]




    • 来自 江苏省
    • 精华 94
    • 注册 2018-7-2
    •  

          


    电视墙原有的柱子不对称,设计师通过设计手法处理后,现场效果特别棒,360度观赏都好看,现场生动的感觉照片拍不出来,为了增加房屋的层次感和通透感,电视背景墙我们设计为半高的双面装饰隔墙,通透、通风,有层次









    贵宾热线:15006107628




    [ 本帖最后由 上海雅寰设计 于 2019-5-18 20:25 编辑 ]




    • 来自 江苏省
    • 精华 94
    • 注册 2018-7-2
    •  

          餐厅的左手墙面的马赛克背景没有拍到全面,这是我们定制的全世界独一无二的背景墙(实物定制出来特别好看,我跟商家说了,这个图案不可以给任何人再使用),手工剪花,有质感、艺术气息浓浓的,我们当初挑选了几百张图案,最终才找出这个图案。餐厅这个灯很喜欢,水晶吊坠是纯天然的,实物特别漂亮,百看不厌的感觉,质感好,颜色纯正。年初我们自己想用同款的,厂家说没货,暂时也没有生产计划








    贵宾热线:15006107628




    [ 本帖最后由 上海雅寰设计 于 2019-5-18 20:47 编辑 ]




    • 来自 江苏省
    • 精华 94
    • 注册 2018-7-2
    •  

    楼梯下的装饰画是我们原创定制的,猜猜看创意原型是什么







    贵宾热线:15006107628



    [ 本帖最后由 上海雅寰设计 于 2019-5-18 20:49 编辑 ]




    • 来自 江苏省
    • 精华 94
    • 注册 2018-7-2
    •  

        业主要求主卧室要的跟我们设计的另一家一模一样的墙面装饰和一模一样的地板纹案,起初我们设计师不同意,设计师表明:“那是我们为那家原创的颜色,是独一无二的,也不希望每家都一样的”,业主诚恳地说:“我们不介意用一样 的,你辛苦调的颜色用一家太可惜了,我家就这一样的)”,我们设计师勉强同意了,为了每家有自己特色,虽然墙面装饰和地板是一摸一样 的,但是通过我们的设计和搭配手法,呈现出不一样的效果。下面我把他们当初看的喜欢的那家链接在下方,对比一下




    我们的原创定制(我们对商家的要求是:未经我们同意,不可以将我们原创的设计元素给任何人使用)







    点开查看:


    https://bbs.my0511.com/f1228b-t6888251z-1






    更多高清作品图片,请至公司门店了解



    扫一扫关注(请注明0511)


    设计咨询:1500 610 7628












    [ 本帖最后由 上海雅寰设计 于 2021-1-13 15:26 编辑 ]




    • 来自 江苏省
    • 精华 0
    • 注册 2019-3-7
    •  

    典雅端庄,满满的气质




    • 来自 江苏省
    • 精华 0
    • 注册 2019-3-7
    •  

    [quote]原帖由 青青河上 于 2019-5-18 10:29 发表
    典雅端庄,时尚高贵,满满的气质




    • 来自 江苏省
    • 精华 94
    • 注册 2018-7-2
    •  


    QUOTE:
    原帖由 青青河上 于 2019-5-18 10:29 发表
    典雅端庄,满满的气质
    感谢您的关注留言,作品中的每一个物件都是经过我们设计总监袁老师亲手摸过、她亲手布置的,看上去简单,但是透出高雅、协调、有细节可看

    [ 本帖最后由 上海雅寰设计 于 2019-5-18 22:56 编辑 ]




    • 来自 江苏省
    • 精华 94
    • 注册 2018-7-2
    •  






    查看积分策略说明快速回复主题
    您目前还是游客,请 登录注册
    您目前是游客,本帖已被系统设置了自动关闭,不可回复!

    0/5000字

     
    < >
     

    Powered by Discuz! X 2 0.081953 s 清除 Cookies - 镇江网友之家 - 手机版
    论坛导航 关闭