| 标题
快捷导航

精彩推荐:MY0511客户端下载

    • 中信银行镇江分行

    • 公益体彩 乐善人生

    • 鹏龙鸿蒙

    • 天然石材·人造石

    » 梦溪论坛 » 家庭装修 » 瑞阳装饰1 » 施工中案例---路劲诺丁山❥美式轻奢❥
    瑞阳装饰1  >  [作品欣赏] 施工中案例---路劲诺丁山❥美式轻奢❥     
    查看: 20670  回复: 12
    [作品欣赏] 施工中案例---路劲诺丁山❥美式轻奢❥      查看: 20670  回复: 12
    • 来自 江苏省
    • 精华 115
    • 注册 2011-1-5
    • 行业 房产建筑
    •  
    施工中案例---路劲诺丁山❥美式轻奢❥

    【案例地址】:路劲.诺丁山22-102

    【案例风格】:美式轻奢

    【设计师】 :何松荣

    【质检经理】: 吴成志


    热烈恭贺陈总豪宅开工大吉!感谢您对瑞阳装饰|精品设计的信任和支持。

    我们依旧秉承客户至上,质量第一的理念,用心打造优质放心工程

    祝福我们的客户,全家幸福,平安顺遂








    [ 本帖最后由 【瑞阳装饰】 于 2022-1-25 16:54 编辑 ]





                      
    • 来自 江苏省
    • 精华 115
    • 注册 2011-1-5
    • 行业 房产建筑
    •  


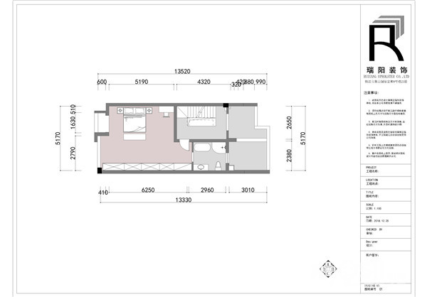
    一楼方案








    [ 本帖最后由 【瑞阳装饰】 于 2020-2-20 23:36 编辑 ]




    • 来自 江苏省
    • 精华 115
    • 注册 2011-1-5
    • 行业 房产建筑
    •  

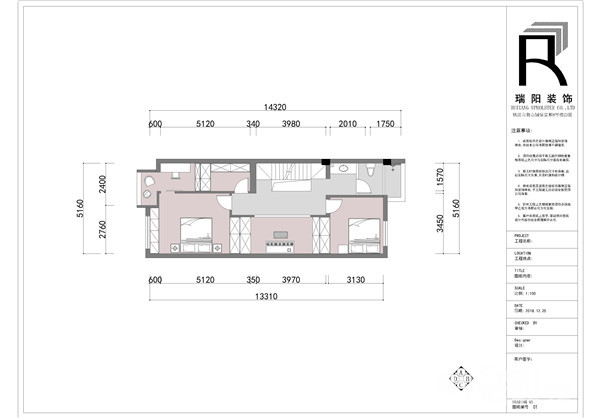
    【二楼方案】




    [ 本帖最后由 【瑞阳装饰】 于 2020-2-6 19:52 编辑 ]




    • 来自 江苏省
    • 精华 115
    • 注册 2011-1-5
    • 行业 房产建筑
    •  

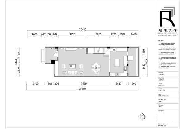
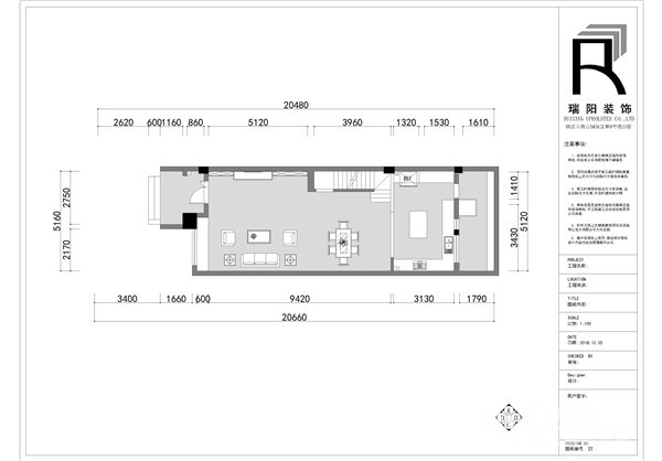
    【三楼方案】




    [ 本帖最后由 【瑞阳装饰】 于 2020-2-6 19:52 编辑 ]




    • 来自 江苏省
    • 精华 115
    • 注册 2011-1-5
    • 行业 房产建筑
    •  

    【四楼方案】




    [ 本帖最后由 【瑞阳装饰】 于 2020-2-6 19:54 编辑 ]




    • 来自 江苏省
    • 精华 115
    • 注册 2011-1-5
    • 行业 房产建筑
    •  

    【顶楼方案】




    [ 本帖最后由 【瑞阳装饰】 于 2020-2-6 19:55 编辑 ]




    • 来自 江苏省
    • 精华 115
    • 注册 2011-1-5
    • 行业 房产建筑
    •  


    【效果图展示】







    [ 本帖最后由 【瑞阳装饰】 于 2020-2-20 23:36 编辑 ]




    • 来自 江苏省
    • 精华 115
    • 注册 2011-1-5
    • 行业 房产建筑
    •  

    【效果图展示】







    [ 本帖最后由 【瑞阳装饰】 于 2020-2-20 23:36 编辑 ]




    • 来自 江苏省
    • 精华 115
    • 注册 2011-1-5
    • 行业 房产建筑
    •  

    【效果图展示】







    [ 本帖最后由 【瑞阳装饰】 于 2020-2-20 23:37 编辑 ]




    • 来自 江苏省
    • 精华 115
    • 注册 2011-1-5
    • 行业 房产建筑
    •  

    【效果图展示】




    [ 本帖最后由 【瑞阳装饰】 于 2020-2-6 20:00 编辑 ]




    • 来自 江苏省
    • 精华 115
    • 注册 2011-1-5
    • 行业 房产建筑
    •  

    【效果图展示】




    [ 本帖最后由 【瑞阳装饰】 于 2020-2-11 16:33 编辑 ]




    • 来自 江苏省
    • 精华 115
    • 注册 2011-1-5
    • 行业 房产建筑
    •  

    扫一扫,看720°全景




    [ 本帖最后由 【瑞阳装饰】 于 2020-2-11 16:35 编辑 ]




    • 来自 江苏省
    • 精华 3
    • 注册 2005-10-24
    •  



    [ 本帖最后由 凯守望静 于 2020-3-5 16:40 编辑 ]




    查看积分策略说明快速回复主题
    您目前还是游客,请 登录注册
    您目前是游客,本帖已被系统设置了自动关闭,不可回复!

    0/5000字

     
    < >
     

    Powered by Discuz! X 2 0.066556 s 清除 Cookies - 镇江网友之家 - 手机版
    论坛导航 关闭