| 标题
快捷导航

精彩推荐:MY0511客户端下载

    • 中信银行镇江分行

    • 公益体彩 乐善人生

    • 鹏龙鸿蒙

    • 天然石材·人造石

    » 梦溪论坛 » 家庭装修 » 吾舍设计 » 芳| 华----------------镇江上河御府(190平现代美式)
    吾舍设计  >  [作品欣赏] 芳| 华----------------镇江上河御府(190平现代美式)     
    查看: 18680  回复: 8
    [作品欣赏] 芳| 华----------------镇江上河御府(190平现代美式)      查看: 18680  回复: 8
    • 来自 江苏省
    • 精华 85
    • 注册 2019-7-16
    • 行业 房产建筑
    •  
    芳| 华----------------镇江上河御府(190平现代美式)


    【项目名称】:上河御府


    【项目面积】:190平


    【设计风格】:现代美式


    【主案设计】:朱奕潼


    【软装设计】:朱奕潼


    【摄影团队】:ingallery

    >>>


      
      莎士比亚说过:“我们所要做的事,应该一想到就做;因为人的想法是会变化的,有多少舌头,多少手,就会有多少犹豫,多少迟延。”

    在这几年,我们接触了太多的用石材、线条堆砌的奢华,还有那来自古典欧美风的浓重色彩,可能会审美疲劳。本案业主男主人是医院主刀医生,女主人是银行职员,对家居生活品质有着较高的追求与想法,所以,我希望在本案中做出一些改变,着重地表现出低调轻奢、舒适温馨的概念。

    在本案设计中,我首先摈弃了传统欧美风格浓重的色彩,将现代与美式融合,将现代美学的雅奢精髓及时尚态度与“家”合为一体。

    在流金岁月里,我们力求用多元的细节雕琢极富格调的生活场景,满足一家人的不同需求,让居者能够更好地构建个性专属的空间故事



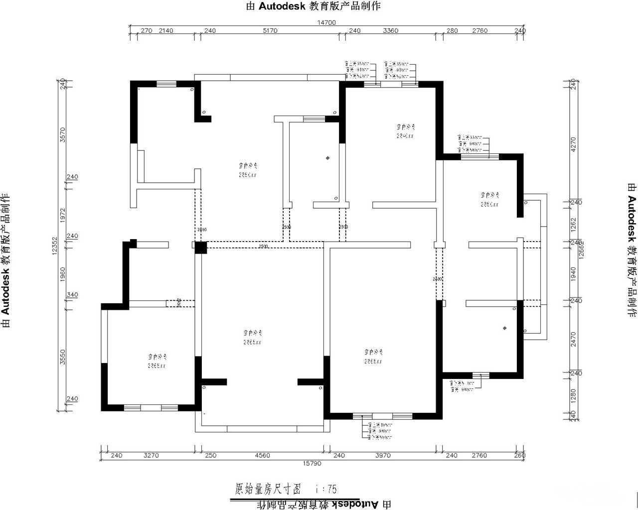
    原始户型图


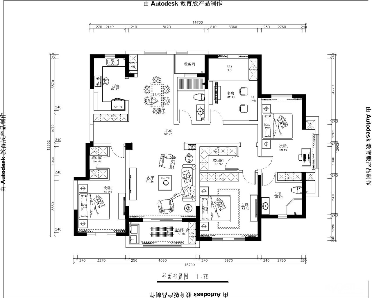
    平面图










    [ 本帖最后由 吾舍设计工作室 于 2019-11-8 14:06 编辑 ]





                      
    • 来自 江苏省
    • 精华 85
    • 注册 2019-7-16
    • 行业 房产建筑
    •  
    01//客厅

    色彩运用上,客厅精选橡木棕、高贵黄为主色调,形成淡雅与尊贵的视觉冲击。家具与挂画的选择上,消弭了传统法式的视觉繁累,更多雅致奢华美态。

    现代美式风格,更像是一种多元化的思考方式,将怀古的浪漫情怀与现代人对生活的需求相结合,兼容华贵典雅与时尚现代


         整体设计让客厅更加开阔有度的视野,运用了同色系护墙板,搭配墙布,空间层次丰富有趣,现代美式新贵般奢雅惬意的生活就此启幕。





    客厅色彩华丽且用暖色调加以协调,它在形式上以浪漫主义为基础,加上低调沉稳的美式家具,让室内显示高贵奢雅的特点。

    一方面保留了经典美式的材质、色彩的大致风格,又让人感受到传统的历史痕迹与浑厚的文化底蕴,同时又摒弃了过于复杂的肌理和装饰,简化了线条。






    [ 本帖最后由 吾舍设计工作室 于 2019-11-8 13:40 编辑 ]




    • 来自 江苏省
    • 精华 85
    • 注册 2019-7-16
    • 行业 房产建筑
    •  
    02//餐厅、厨房

        餐厅延续客厅的装修感觉,客餐厅功能布局分明,但又完美交融。餐桌选用木制长方形桌台,深棕色餐桌搭配布艺软包餐椅,结合桌上精致的餐具和鲜花,打造出恬美怡人的就餐氛围。

          
       厨房选用L型橱柜,收纳有序,布局合理,满足洗切煮的动线。香槟金为主色调的厨房,墙面以淡雅的砖过渡营造层次感,破开了烤漆面橱柜的沉稳感,达到视觉的平衡。在这样精致的厨房里,为一家人烹饪四季三餐,何尝不是一件幸福的事!



    [ 本帖最后由 吾舍设计工作室 于 2019-11-8 14:08 编辑 ]




    • 来自 江苏省
    • 精华 85
    • 注册 2019-7-16
    • 行业 房产建筑
    •  
    03// 卧室






        相比与活动空间的奢华典雅,我们在卧室设计上要朴素许多,简单的木制家具,配上简单的金属灯具,让木作在整个家庭空间中穿插、连贯,共同构成经典的颜色搭配,整体优雅而和谐。


       软包床头质感高级而又舒适,也不会在视觉上显得过于松散,契合现代美式风格的优雅。床头背景墙以墙布为主,与整个房间色调一致,让劳累一天的主人能有一个舒适的休息环境!




    [ 本帖最后由 吾舍设计工作室 于 2019-11-8 13:55 编辑 ]




    • 来自 江苏省
    • 精华 85
    • 注册 2019-7-16
    • 行业 房产建筑
    •  
    04// 卫生间

       
       卫生间干湿分离,整体贴砖和橱柜搭配显得实用大方,也很精致。米色调的轻暖,灰色条纹的气质,因设计师巧妙的搭配组合,有一种默契和互动关系在其间酝酿,置身其中能感受到满满的轻松舒适。




        芳华无数,仅拈一缕醉意,弱水三千,只取一瓢饮。


         我们在这里用宁静的现代美式,把生活过成充满花香与远方的样子。




    [ 本帖最后由 吾舍设计工作室 于 2019-11-8 13:56 编辑 ]




    • 来自 江苏省
    • 精华 85
    • 注册 2019-7-16
    • 行业 房产建筑
    •  
    联系我们



    [ 本帖最后由 吾舍设计工作室 于 2019-11-8 15:11 编辑 ]




    • 来自 江苏省
    • 精华 85
    • 注册 2019-7-16
    • 行业 房产建筑
    •  






    • 来自 江苏省
    • 精华 0
    • 注册 2022-11-24
    •  

    *** 作者因违反论坛规定,禁言处理,内容自动屏蔽 ***

    详情参阅论坛注册条款:
    http://bbs.my0511.com/f11b-t2789156z


    • 来自 江苏省
    • 精华 85
    • 注册 2019-7-16
    • 行业 房产建筑
    •  






    查看积分策略说明快速回复主题
    您目前还是游客,请 登录注册
    您目前是游客,本帖已被系统设置了自动关闭,不可回复!

    0/5000字

     
    < >
     

    Powered by Discuz! X 2 0.036939 s 清除 Cookies - 镇江网友之家 - 手机版
    论坛导航 关闭