| 标题
快捷导航

精彩推荐:MY0511客户端下载

    • 中信银行镇江分行

    • 公益体彩 乐善人生

    • 鹏龙鸿蒙

    • 天然石材·人造石

    » 梦溪论坛 » 家庭装修 » 吾舍设计 » 雅| 韵----------------------百家湖西苑(500平欧式)
    吾舍设计  >  [作品欣赏] 雅| 韵----------------------百家湖西苑(500平欧式)     
    查看: 13650  回复: 3
    [作品欣赏] 雅| 韵----------------------百家湖西苑(500平欧式)      查看: 13650  回复: 3
    • 来自 江苏省
    • 精华 85
    • 注册 2019-7-16
    • 行业 房产建筑
    •  
    雅| 韵----------------------百家湖西苑(500平欧式)

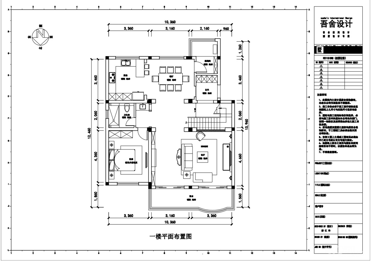
    【项目名称】:百家湖西苑

    【项目面积】:500平

    【设计风格】:欧式

    【主案设计】:•DESIGN•

    以棕色和金色为主的欧式风客厅里,硬朗是气质,简约是厚度。两者结合,成就一个简单而不平凡的优雅空间。



    [ 本帖最后由 吾舍设计工作室 于 2019-11-27 14:20 编辑 ]





                      
    • 来自 江苏省
    • 精华 85
    • 注册 2019-7-16
    • 行业 房产建筑
    •  

    《华严经》上讲:“唯心所现,唯识所变。”

    世间万物,由心起,却又因识而有所差。

    和不一样的人在一起,就会有不一样的人生。

    爱情如此,婚姻也如此;家庭如此,事业也如此。

    本案业主为一家五口幸福组合,男主人工作经常在国外,长期居住在家的是女主人及父母和孩子。所以,设计师将整个空间打造的更开阔,更加注重空间内人与人的交流与沟通。








    [ 本帖最后由 吾舍设计工作室 于 2019-11-6 14:43 编辑 ]




    • 来自 江苏省
    • 精华 85
    • 注册 2019-7-16
    • 行业 房产建筑
    •  

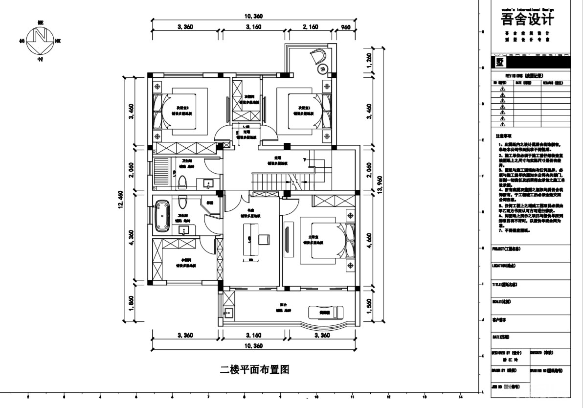
    卧室的设计温馨淡雅,这里是主人们休息的空间,不需要太多零乱的装饰,一面精致的床头背景墙足以。大面积的落地窗,让主卧拥有着绝佳的视野。










    [ 本帖最后由 吾舍设计工作室 于 2019-11-6 15:08 编辑 ]




    • 来自 江苏省
    • 精华 0
    • 注册 2022-11-24
    •  

    *** 作者因违反论坛规定,禁言处理,内容自动屏蔽 ***

    详情参阅论坛注册条款:
    http://bbs.my0511.com/f11b-t2789156z


    查看积分策略说明快速回复主题
    您目前还是游客,请 登录注册
    您目前是游客,本帖已被系统设置了自动关闭,不可回复!

    0/5000字

     
    < >
     

    Powered by Discuz! X 2 0.054753 s 清除 Cookies - 镇江网友之家 - 手机版
    论坛导航 关闭