收藏本站
客户端
扫码下载客户端
官方微信
打开微信扫一扫
登录
|
注册
|
标题
标题
用户
全站首页
|
论坛导航
|
网络问政
|
招聘求职
|
买房租房
|
装修频道
|
生活服务
|
教育
|
相亲
|
亲子
|
美食
|
婚嫁
|
手机客户端
家有学子
|
母婴乐园
快捷导航
精彩推荐:
MY0511客户端下载
中信银行镇江分行
公益体彩 乐善人生
鹏龙鸿蒙
天然石材·人造石
»
梦溪论坛
»
家庭装修
» [2015拉迷衣柜杯]----清包挑战15万小美(柜门装好-硬装快完工了)
家庭装修
>
[装修日记]
[2015拉迷衣柜杯]----清包挑战15万小美(柜门装好-硬装快完工了)
查看: 229952 回复: 612
快速回复
返回家庭装修
613
2/13
<
1
2
3
4
5
6
7
8
9
10
>
>
|
[装修日记]
[2015拉迷衣柜杯]----清包挑战15万小美(柜门装好-硬装快完工了)
查看: 229952 回复: 612
上一主题
|
下一主题
1步之遥
来自 江苏省
精华
3
注册 2010-7-7
行业 房产建筑
QUOTE:
原帖由
爵士信徒
于 15-10-17 14:21 发表
有些大牌销售就是狗眼看人低,BS!不妨网购瓷砖,如果不嫌麻烦的话。
其实我本来就打算网购的
我只是想多去实体比比价,再拍几个样板间看看
2015-10-17 16:38
51楼
[联宇电脑] 电脑组装\维修\升级\企业单位电脑维护!
只看该作者
分享本楼
1步之遥
来自 江苏省
精华
3
注册 2010-7-7
行业 房产建筑
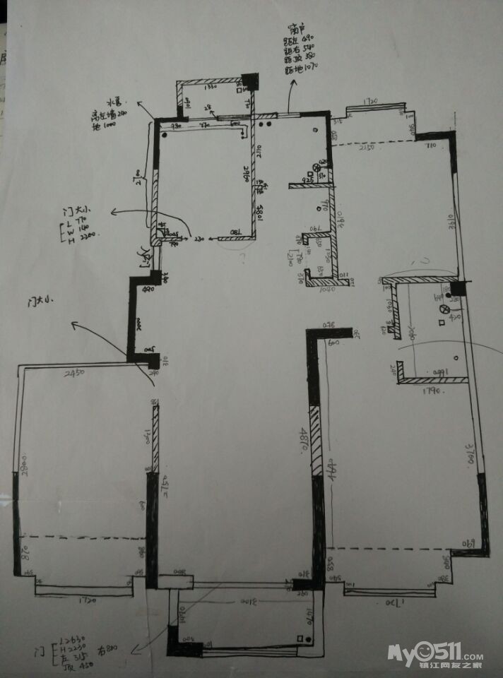
---【手绘版量房图,量房真心不容易】2015.10.17
既然要清包,首先做好准备工作后,抽了个时间去量房。本来觉得拿个卷尺把长度标出来嘛,so easy~!结果···我能说量房我量了三次吗!
第一次去量,真的只标出了长宽
设计师说不行~量细致点去~
第二次去量,量出了长宽高和各种水管地漏坑距
设计说不行~各种小垛子呢去哪了?都没量···
第三次去量,只要看到是个东西!我都量!量了将近两个小时
!给设计师的时候我都想好了,再不行我就找几百块量房的人了,设计师终于告诉我,可以了···
当时的心情~喜极而泣~
上图,清包的同学们,量房起码得量成这样,我这还不算太细致,设计师就睁只眼闭着眼了
2015-10-17 16:48
52楼
买房、卖房、租房上镇江房产网!
只看该作者
分享本楼
darkgzd
来自 江苏省
精华 0
注册 2014-11-7
QUOTE:
原帖由
1步之遥
于 15-10-17 10:01 发表
---【去月星看看瓷砖,遇到不开心~大家会遇到么?】2015.10.17
[/b ...
有些店确实狗眼看人低,同时进店,那些店长或导购对衣着鲜亮的热情有加,对衣着普通的就视而不见。
2015-10-17 17:00
53楼
买房、卖房、租房上镇江房产网!
只看该作者
分享本楼
爵士信徒
来自 江苏省
精华 0
注册 2005-4-2
行业 其它
QUOTE:
原帖由
1步之遥
于 15-10-17 16:48 发表
---【手绘版量房图,量房真心不容易】2015.10.17
既然要清包,首先做好准备工作后,抽了个时间去量房。本来觉得拿个 ...
这个
手绘版量房图赞了,绝对人才,时刻保持关注
清包真不容易啊,连量房都需要亲自上阵啊,不是也请了设计师嘛。
2015-10-17 17:08
54楼
[联宇电脑] 电脑组装\维修\升级\企业单位电脑维护!
只看该作者
分享本楼
darkgzd
来自 江苏省
精华 0
注册 2014-11-7
QUOTE:
原帖由
1步之遥
于 15-10-17 16:48 发表
---【手绘版量房图,量房真心不容易】2015.10.17
既然要清包,首先做好准备工作后,抽了个时间去量房。本来觉得拿个 ...
哇,装个房把自己逼成各领域、方面的砖家了!
2015-10-17 18:51
55楼
0511家装频道:本地家居服务平台,数万业主共同选择
只看该作者
分享本楼
镇江德国都芳漆
来自 江苏省
精华 0
注册 2014-5-17
行业 商业贸易
德国都芳漆 生态家园腻子粉 家装辅料一站式服务!电话:13861398557
2015-10-18 09:14
56楼
买房、卖房、租房上镇江房产网!
只看该作者
分享本楼
1步之遥
来自 江苏省
精华
3
注册 2010-7-7
行业 房产建筑
QUOTE:
原帖由
darkgzd
于 15-10-17 18:51 发表
哇,装个房把自己逼成各领域、方面的砖家了!
你现在装了没?装了你肯定比我哈懂
2015-10-18 09:39
57楼
找工作,就上MY0511!
只看该作者
分享本楼
1步之遥
来自 江苏省
精华
3
注册 2010-7-7
行业 房产建筑
QUOTE:
原帖由
爵士信徒
于 15-10-17 17:08 发表
这个
手绘版量房图赞了,绝对人才,时刻保持关注
清包真不容易啊,连量房都需要亲自 ...
设计师是男朋友的哥们儿,在西安·······所以啥都自己上
2015-10-18 09:40
58楼
MY0511相亲,一分钟注册,享一辈子幸福!
只看该作者
分享本楼
水蕉芭芭
来自 江苏省
精华
1
注册 2014-12-15
手绘图画的细致呢,画了时间和心思了
---发自iPhone---
2015-10-18 15:36
59楼
0511家装频道:本地家居服务平台,数万业主共同选择
只看该作者
分享本楼
txwz
来自 江苏省
精华 0
注册 2005-3-30
期待成果
2015-10-18 16:29
60楼
0511家装频道:本地家居服务平台,数万业主共同选择
只看该作者
分享本楼
流氓小脚
来自 江苏省
精华 0
注册 2010-5-9
行业 工业制造
QUOTE:
原帖由
1步之遥
于 15-10-17 16:48 发表
---【手绘版量房图,量房真心不容易】2015.10.17
既然要清包,首先做好准备工作后,抽了个时间去量房。本来觉得拿个 ...
厉害。
---发自酷派---
2015-10-18 16:51
61楼
[联宇电脑] 电脑组装\维修\升级\企业单位电脑维护!
只看该作者
分享本楼
流氓小脚
来自 江苏省
精华 0
注册 2010-5-9
行业 工业制造
QUOTE:
原帖由
1步之遥
于 15-10-17 10:01 发表
---【去月星看看瓷砖,遇到不开心~大家会遇到么?】2015.10.17
[/b ...
曾经去了一家,连人都没有。所以看瓷砖,关键还是看它质量和服务。建议瓷砖买多点,面积放大点。事先也要问清楚是不是送上楼,是不是有货,要等多久,是不是可以多退少补。
---发自酷派---
2015-10-18 16:55
62楼
[联宇电脑] 电脑组装\维修\升级\企业单位电脑维护!
只看该作者
分享本楼
流氓小脚
来自 江苏省
精华 0
注册 2010-5-9
行业 工业制造
帮你翻页了
---发自酷派---
2015-10-18 16:55
63楼
MY0511相亲,一分钟注册,享一辈子幸福!
只看该作者
分享本楼
流氓小脚
来自 江苏省
精华 0
注册 2010-5-9
行业 工业制造
QUOTE:
原帖由
1步之遥
于 15-10-14 17:49 发表
---【关于橱柜,有话说】----2015.10.14
[font=驴 ...
学习了
---发自酷派---
2015-10-18 17:00
64楼
[联宇电脑] 电脑组装\维修\升级\企业单位电脑维护!
只看该作者
分享本楼
~摩卡生活~
来自 江苏省
精华 0
注册 2015-9-21
行业 其它
2015-10-18 20:12
65楼
MY0511相亲,一分钟注册,享一辈子幸福!
只看该作者
分享本楼
darkgzd
来自 江苏省
精华 0
注册 2014-11-7
QUOTE:
原帖由
1步之遥
于 15-10-18 09:39 发表
你现在装了没?装了你肯定比我哈懂
我家没能力清包,现在瓦工贴砖完工了,等木工进来了。
2015-10-18 20:22
66楼
0511家装频道:本地家居服务平台,数万业主共同选择
只看该作者
分享本楼
淡蓝的倾
来自 江苏省
精华 0
注册 2011-8-18
行业 工业制造
支持楼主 打算清包 来学习哈
2015-10-18 22:58
67楼
0511家装频道:本地家居服务平台,数万业主共同选择
只看该作者
分享本楼
嫣然家居
专版版主
来自 江苏省
精华
15
注册 2014-3-17
又一个达人,我感觉汗颜
---发自iPhone---
2015-10-18 23:11
68楼
[联宇电脑] 电脑组装\维修\升级\企业单位电脑维护!
只看该作者
分享本楼
13861352508
来自 江苏省
精华 0
注册 2013-7-4
行业 工业制造
先赞一下达人啊!我也准备小美,不晓得你仿古砖看的如何了,有没有什么推荐
2015-10-19 00:50
69楼
找工作,就上MY0511!
只看该作者
分享本楼
littletime
来自 江苏省
精华
1
注册 2015-8-12
QUOTE:
原帖由
1步之遥
于 15-10-17 10:01 发表
---【去月星看看瓷砖,遇到不开心~大家会遇到么?】2015.10.17
[/b ...
你讲的这家我前些天去过,然后导购说,你这个嘛,也没多少钱,就四万块多,也不多,我直接掉汗啊
2015-10-19 09:46
70楼
[联宇电脑] 电脑组装\维修\升级\企业单位电脑维护!
只看该作者
分享本楼
爵士信徒
来自 江苏省
精华 0
注册 2005-4-2
行业 其它
QUOTE:
原帖由
littletime
于 15-10-19 09:46 发表
你讲的这家我前些天去过,然后导购说,你这个嘛,也没多少钱,就四万块多,也不多,我直接掉汗啊
抓到一个潜力壕,瓷砖一项4万多
导购说的真是轻巧啊,看来你穿着打扮比较有品位
2015-10-19 10:06
71楼
买房、卖房、租房上镇江房产网!
只看该作者
分享本楼
Sep安之若素
来自 江苏省
精华 0
注册 2012-9-5
行业 其它
可以一起交流不~~我是一期的,只不过还没装修~现在开始准备动手啦!~
啥也不会,啥也不懂
2015-10-19 10:48
72楼
买房、卖房、租房上镇江房产网!
只看该作者
分享本楼
1步之遥
来自 广东省
精华
3
注册 2010-7-7
行业 房产建筑
QUOTE:
原帖由
流氓小脚
于 15-10-18 16:55 发表
曾经去了一家,连人都没有。所以看瓷砖,关键还是看它质量和服务。建议瓷砖买多点,面积放大点。事先也要问清楚是不是送上楼,是不是有货,要等多久,是不是可以多退少补。
谢谢啦~!你提的这几个问题十分以及非常的关键,恩~默默记下了😁
2015-10-19 16:49
73楼
找工作,就上MY0511!
只看该作者
分享本楼
1步之遥
来自 广东省
精华
3
注册 2010-7-7
行业 房产建筑
QUOTE:
原帖由
淡蓝的倾
于 15-10-18 22:58 发表
支持楼主 打算清包 来学习哈
非常感谢!一起交流哦!!!
2015-10-19 16:50
74楼
买房、卖房、租房上镇江房产网!
只看该作者
分享本楼
1步之遥
来自 广东省
精华
3
注册 2010-7-7
行业 房产建筑
QUOTE:
原帖由
嫣然家居
于 15-10-18 23:11 发表
又一个达人,我感觉汗颜
终于看到嫣然姐姐来了,撒花
2015-10-19 16:51
75楼
MY0511相亲,一分钟注册,享一辈子幸福!
只看该作者
分享本楼
1步之遥
来自 广东省
精华
3
注册 2010-7-7
行业 房产建筑
QUOTE:
原帖由
13861352508
于 15-10-19 00:50 发表
先赞一下达人啊!我也准备小美,不晓得你仿古砖看的如何了,有没有什么推荐
我目前打算网购了,实体店也还在看呢,这几天估计就会定了,到时候定了告诉你哦!
2015-10-19 16:53
76楼
[联宇电脑] 电脑组装\维修\升级\企业单位电脑维护!
只看该作者
分享本楼
1步之遥
来自 广东省
精华
3
注册 2010-7-7
行业 房产建筑
QUOTE:
原帖由
littletime
于 15-10-19 09:46 发表
你讲的这家我前些天去过,然后导购说,你这个嘛,也没多少钱,就四万块多,也不多,我直接掉汗啊
心塞塞的,钱都不当钱
2015-10-19 16:55
77楼
找工作,就上MY0511!
只看该作者
分享本楼
1步之遥
来自 广东省
精华
3
注册 2010-7-7
行业 房产建筑
QUOTE:
原帖由
Sep安之若素
于 15-10-19 10:48 发表
可以一起交流不~~我是一期的,只不过还没装修~现在开始准备动手啦!~
啥也不会,啥也不懂
嗯嗯一起交流~回头动工了欢迎来我家看看呦
2015-10-19 16:59
78楼
MY0511相亲,一分钟注册,享一辈子幸福!
只看该作者
分享本楼
冰激凌い
来自 江苏省
精华
4
注册 2009-11-14
行业 娱乐餐饮
加油~来学习的
2015-10-19 17:00
79楼
[联宇电脑] 电脑组装\维修\升级\企业单位电脑维护!
只看该作者
分享本楼
米饭丸子
来自 江苏省
精华
2
注册 2008-3-8
行业 信息咨询
手绘量房图太流逼了,就看这图我都不敢说我也想清包了。
[
本帖最后由 米饭丸子 于 15-10-22 09:07 编辑
]
2015-10-22 09:07
80楼
0511家装频道:本地家居服务平台,数万业主共同选择
只看该作者
分享本楼
wj104559
来自 江苏省
精华 0
注册 2004-10-21
清包达人
2015-10-22 18:39
81楼
找工作,就上MY0511!
只看该作者
分享本楼
辣手丸子
来自 江苏省
精华
1
注册 2006-4-20
行业 商业贸易
楼主'你家清包人工费多少啊?
2015-10-23 23:23
82楼
买房、卖房、租房上镇江房产网!
只看该作者
分享本楼
1步之遥
来自 广东省
精华
3
注册 2010-7-7
行业 房产建筑
---【开工啦!墙差点被炸了】-----2015.10.23
看黄历选了选,选在了23号这天早上8点08分放炮~
昨天下午我让男票去买个鞭炮回来,他乐滋滋的去了,回来的时候我惊呆了,这么大一个····
问他多少钱啊?···100块!!!放个鞭炮100块···醉了醉了我醉了···
于是就出现了下图情况:
放完鞭炮,房子里的硝烟味呛得不行,我们全跑出来了,我留个照片给大家感受下,到仙境了嘛这是···
然后男票到每个房间敲第一锤子,他是个虎背熊腰的胖纸。
上图就是敲墙的王师傅,人很好很实诚呢,谈好价格之后我们临时又要多敲一个部分,都没给我们加钱。推荐!
[
本帖最后由 1步之遥 于 15-10-24 10:56 编辑
]
2015-10-24 09:03
83楼
MY0511相亲,一分钟注册,享一辈子幸福!
只看该作者
分享本楼
爱丽舍仓储家具
来自 江苏省
精华 0
注册 2015-9-8
行业 商业贸易
按楼主的预算要么淘宝,要么爱室丽
2015-10-25 14:35
84楼
买房、卖房、租房上镇江房产网!
只看该作者
分享本楼
wyh1012
来自 江苏省
精华 0
注册 2010-9-14
行业 其它
2015-10-26 19:42
85楼
[联宇电脑] 电脑组装\维修\升级\企业单位电脑维护!
只看该作者
分享本楼
爵士信徒
来自 江苏省
精华 0
注册 2005-4-2
行业 其它
恭喜开工,常来更新哦。
2015-10-26 19:58
86楼
MY0511相亲,一分钟注册,享一辈子幸福!
只看该作者
分享本楼
轻罗小扇
来自 江苏省
精华
21
注册 2004-1-8
行业 其它
支持清包的小美同学。
2015-10-26 21:37
87楼
0511家装频道:本地家居服务平台,数万业主共同选择
只看该作者
分享本楼
镇江时新门窗
来自 江苏省
精华 0
注册 2011-12-21
行业 其它
您好,刚刚看到了您给我们的留言。
首先,让你感到不舒服了,先向您道歉了。
当时本人在开车,您来了几个电话,因为您用的是固定电话,我电话上显示的一直是骚扰电话,所以一开始并没有接电话。后来看您打了几个电话,我就让同事先接了您的电话,同事告诉我,您是想要封闭阳台的来咨询价格的,于是就接过了电话。你问我伟昌普通铝合金的做不做,我很干脆的回到是,伟昌普通铝合金的不做。
接着您问我,凤铝普通铝合金 1.4的怎么做,我就回答您,凤铝普通的有几种,最便宜的就是凤铝789 系列 1.4mm 中空的 290元每平方,紧接着,你就说我们的价格不适合您,便挂断了电话。
前后,我一共说了四句话,可能是由于开车的原因,讲话的时候回答的比较直接,让您感觉我们很不屑于客户,同时让您感到不适了。再次向您道歉。
关于凤铝的产品,普通铝合金这方面,我们的确做了好几个型号,用的比较多的,就是凤铝789 1.4mm 凤铝799 1.4mm 和凤铝889 1.4mm ,最便宜的就是789 1.4mm 的,正常市场报价在:270-320元每平方。
同时感谢您对我们的支持,有时间也可以来店,我专门给您介绍一下。
祝您生活愉快
[
本帖最后由 镇江时新门窗 于 15-10-28 15:59 编辑
]
2015-10-28 15:58
88楼
0511家装频道:本地家居服务平台,数万业主共同选择
只看该作者
分享本楼
烦烦妈
来自 江苏省
精华
1
注册 2013-10-24
根据楼主的预算 瓷砖估计进不起月星 也考虑网购吧 但是网购瓷砖也有弊端的哦
比如 1、瓷砖重量比较重 运费嗨了
2、网购瓷砖到镇江后自己无法提货 除非数量少 上楼也是体力活 给钱都没人干的
3、有些规格的瓷砖是切割砖 可能会出现1-2mm的规格差距
4、瓷砖的面积要提前测算好 不要到时候出现少几块砖的情况 还有一种情况就是瓷砖买多了 退货要贴运费 往往运费比瓷砖值钱
5、看不到现货 无法掌控瓷砖的质量
6、所有贴瓷砖的辅料也要自购 比如填缝剂 淘宝卖家不送是正常的
7、网购瓷砖卖家都是不见钱不发货 也就是不见兔子不撒鹰
但是网购瓷砖的好处就是价格只要本地实体店的三分之一
网购有风险 这个要考虑和衡量好利弊
发这段话不是想打消你网购的积极性 因为我家瓷砖就是网购的 遇到了上面我说的的问题
[
本帖最后由 烦烦妈 于 15-10-28 16:32 编辑
]
2015-10-28 16:10
89楼
0511家装频道:本地家居服务平台,数万业主共同选择
只看该作者
分享本楼
水蕉芭芭
来自 江苏省
精华
1
注册 2014-12-15
才敲墙,电视墙完全有救,在网上搜搜,多和工人沟通想法,我曾经想过客厅和书房拉通,不然你就和我一样包含进去,这房子有很多地方很绝的,书房、次卧进门的墙不是平整的,还有你要做圆形门拱,主次卧之间就做不了
---发自iPhone---
2015-10-28 17:49
90楼
MY0511相亲,一分钟注册,享一辈子幸福!
只看该作者
分享本楼
1步之遥
来自 江苏省
精华
3
注册 2010-7-7
行业 房产建筑
QUOTE:
原帖由
镇江时新门窗
于 15-10-28 15:58 发表
您好,刚刚看到了您给我们的留言。
首先,让你感到不舒服了,先向您道歉了。
当时本人在开车,您来了几个电话,因为您用的是固定电话,我电话上显示的一直是骚扰电话,所以一开始并没有接电话。后来看您打了几 ...
道歉倒也不需要了,可能是我咨询的时机不对吧,而且价格的确比胖子家和时尚家贵点,所以我就说价格不合适,感觉您那边也忙,所以也就不打扰您了。
2015-10-29 10:21
91楼
找工作,就上MY0511!
只看该作者
分享本楼
1步之遥
来自 江苏省
精华
3
注册 2010-7-7
行业 房产建筑
QUOTE:
原帖由
烦烦妈
于 15-10-28 16:10 发表
根据楼主的预算 瓷砖估计进不起月星 也考虑网购吧 但是网购瓷砖也有弊端的哦
比如 1、瓷砖重量比较重 运费嗨了
2、网购瓷砖到镇江后自己无法提货 除非数量少 上楼也是体力活 给钱都没人干的
3、有些 ...
谢谢烦妈的宝贵经验和建议!这也是我担心的问题!月星是买不起了,最近在看要么亿都要么网购,再多对比对比的!再次感谢你~
2015-10-29 10:28
92楼
[联宇电脑] 电脑组装\维修\升级\企业单位电脑维护!
只看该作者
分享本楼
1步之遥
来自 江苏省
精华
3
注册 2010-7-7
行业 房产建筑
QUOTE:
原帖由
水蕉芭芭
于 15-10-28 17:49 发表
才敲墙,电视墙完全有救,在网上搜搜,多和工人沟通想法,我曾经想过客厅和书房拉通,不然你就和我一样包含进去,这房子有很多地方很绝的,书房、次卧进门的墙不是平整的,还有你要做圆形门拱,主次卧之间就做不了
只有同样户型的人才懂!墙竟然不是平的,所以我家敲掉了,起一个平的再做拱门……恩,我被拱门洗脑了
2015-10-29 10:31
93楼
买房、卖房、租房上镇江房产网!
只看该作者
分享本楼
冰激凌い
来自 江苏省
精华
4
注册 2009-11-14
行业 娱乐餐饮
楼主家进展的怎样了?好久不发帖了
---发自梦溪论坛手机客户端---
2015-10-29 13:38
94楼
找工作,就上MY0511!
只看该作者
分享本楼
1步之遥
来自 江苏省
精华
3
注册 2010-7-7
行业 房产建筑
QUOTE:
原帖由
冰激凌い
于 15-10-29 13:38 发表
楼主家进展的怎样了?好久不发帖了
因为最近在等工人的工期,所以没什么好发的~打算等到瓦工贴起来的时候再接着更~毕竟有图才实在嘛
2015-10-29 16:16
95楼
MY0511相亲,一分钟注册,享一辈子幸福!
只看该作者
分享本楼
1步之遥
来自 江苏省
精华
3
注册 2010-7-7
行业 房产建筑
---【初步探店~考察仿古砖】-----2015.10.27
来更新了~墙已经敲好了,现在在等水电进场,师傅正在另一家做着呢预计要月底,水电铺完也没几天,然后想着十一月中旬以前瓦工肯定要来了,到时候太仓促定砖也不好,所以这几天我就在看砖了~!
小美吗,肯定是要仿古砖的啦,可我目前的预算嘛,月星价位肯定不在考虑范围内,铭基离我太远(原谅我基本没去过新区),所以主要考察亿都和某宝。
话不多说~上图~!
—————————— --------实体店----------————————————————
1.波诺尼亚、五月玫瑰
被他家门面的装修吸引了,很复古,一看就是卖仿古砖的。导购徐小哥很专业很热情。角花的工费太贵了,主要看了自带角花砖。这款价位三十几,尺寸略大,60*60。
这款简约点,没角花,比刚才那个贵点,50*50的,50块钱,等于一平方要200。这个是有点凹凸的,仔细看是带点黑点的,复古味更浓,不过男票总觉得看着有点嫌脏···
地爬墙可选性还好,价格有点高,7.5往上。不过小徐人蛮好的,冲这态度,后期可以考虑。
2.格莱斯
60*60的自带角花是28元,实诚价。地爬墙都是8块钱,不过不太推荐,比较薄比较轻。没拍。
3.乐家居
冷门店,不太显眼,50*50自带角花砖28一片,地爬墙没看上好看的。
4.梵香
老板娘人蛮好的,笑盈盈的。他家没有自带角花,我就看了圆角砖,35块钱。砖是还好,不过还是这个话,工费贵啊···
地爬墙种类挺多的,什么米拉公寓啊,美陶啊,马可金帝啊一堆牌子,价格5-8块钱,还是蛮好看的。有意向,可以下次去谈谈。
5.怡美佳仿古砖
冷门店,比较偏。自带角花35,圆角砖50。福建砖。没看上。
6.马拉兹
很偏的地方(我主要就是想去冷门店)门牌子字都掉了,不过门头一看就是仿古风格的,于是进去看看,进去一圈没人,也没灯,我就等了一会儿,导购就过来了。砖还可以。主要看中了这个地爬墙,10块钱,贵!老板是浙江小伙儿,带我去了他的另一家刚开的店,又看了一款地砖,价格忘了···
—————————— --------某宝篇----------————————————————
淘宝主要考虑厨卫和阳台,目前打算厨卫用一个色系地爬墙,价格五块到六块吧。阳台四块左右。
打算先选两家给我寄样,然后带着样品去实体店对比下,再决定去哪边买。
1.希樱复古砖(四钻店,广东)
4.9一片,厚度10毫米,单片1.73公斤,卡罗比亚釉面,吸水5%。实拍图,边角打磨不错。
2.惠意陶瓷。(三钻店,广东)
5.2一片,厚度9毫米,单片1.73公斤,细*质砖底,进口釉料,吸水低,可以不泡水贴。可以寄样。
3.田园瓷砖(一冠店,上海)
5.8一片,厚度10毫米,单片1.73公斤,实拍图很清楚,大量买家秀图。
4.砖业建材商城(三钻店,广东)
4.8一片,厚度9毫米,单片2.3公斤,吸水率小于3%,可以15块钱看3个样。物流到家要加五六百。
[
本帖最后由 1步之遥 于 15-10-29 17:43 编辑
]
2015-10-29 16:57
96楼
[联宇电脑] 电脑组装\维修\升级\企业单位电脑维护!
只看该作者
分享本楼
烦烦妈
来自 江苏省
精华
1
注册 2013-10-24
仿古砖看看长谷这个品牌,不过镇江没有,得网购。
[
本帖最后由 烦烦妈 于 15-10-30 00:01 编辑
]
2015-10-30 00:00
97楼
买房、卖房、租房上镇江房产网!
只看该作者
分享本楼
魔女巫巫
来自 江苏省
精华 0
注册 2015-5-28
最近亿都萨米特在搞活动,可以去看看,我家也准备小美,不过不准备仿古砖
---发自Galaxy Note3---
2015-11-2 08:04
98楼
MY0511相亲,一分钟注册,享一辈子幸福!
只看该作者
分享本楼
冰激凌い
来自 江苏省
精华
4
注册 2009-11-14
行业 娱乐餐饮
你淘宝搜搜:罗浮威尔旗舰店 看看呢!
是一朋友推荐给我的,一直收藏着,她说质量挺好的,还赠送花片
2015-11-2 14:59
99楼
MY0511相亲,一分钟注册,享一辈子幸福!
只看该作者
分享本楼
1步之遥
来自 广东省
精华
3
注册 2010-7-7
行业 房产建筑
——【瓷砖已定+攻略】——2015.11.2
昨天买了水电材料,亮光买的,一共3500,我还问了笑妈贵不贵,她说不贵我就放心了~谢谢笑妈~我们家自备了点六平方线,不过师傅说估计用不上,有点可惜,本来还想省点钱的~
今天大收获,瓷砖定了~!
所有的砖在一家,店家是亿都的
玛拉兹仿古砖
~!我家建筑109平,客餐厅圆角砖带角花,厨房阳台卫生间都是地爬墙同一系列,卫生间走大小腰线,
总价一万不到
。
我帖子里上次写过,上次考察了亿都的瓷砖,这次主要二次考察,重点三家,分别是:
梵香,乐家居,玛拉兹
。
第一家
梵香
,圆角砖没啥说的了,主要他家地爬墙很多,有好的有次的,我想去好好挑一下的。老板娘还是笑盈盈的,不过这次接待的是另一个阿姨,这次告诉我全部八块钱。我问她上次不是说有便宜有贵的吗?我记得很清楚,说卢浮宫系列是七块钱,她说没有,就是全部八块钱。我说不是说差点的六块,卢浮宫七块,美陶的八块?她还是坚持说没有,都是八块。好吧,那也没办法了……那和我的预算不符,就走了。
第二家
乐家居
,地爬墙就两个牌子,可选性不大,我看质量还好,八块钱。老板娘年轻漂酿哦~主要是说话很实诚,价格和上次一样,还是说圆角砖28送角花,我觉得还不错。如果没有其他选择就她家。
最后是
玛拉兹
。报价是最贵的,圆角砖35,角花10块一个,地爬墙十块,质量也不错。是我看的最喜欢的。主要老板是帅哥~~~谈到最后价格也挺满意,从两点多谈到五点多,最后交了1000定金。上图。
这款“四色咖啡格子墙面+咖色地面”是厨房配色。
白光看颜色不貌美,不过店里黄光打上去就好看了。因为我们家以后也是黄色的光~配上
白色橱柜,贴出来差不多的参考图如下:
这款“浅米黄墙面+咖色地面”是卫生间配色,走大腰线,小腰线花洒走个边。效果如图:
————————————————————————————————————————————————————————
挑选瓷砖攻略:
1.找地段偏的店
这次我看砖,主要都是找犄角旮旯的店。地方偏点,人流少点,房租便宜点,价格……你懂的。
2.找品种全的店
地段可以偏,砖式样不能少。这样可选择性大,选购客餐厅,卫生间,厨房,阳台等,最后可以全在一家定,那谈的折扣也能大点。
3.服务,服务,还是服务!
重要的事情说三遍!买一次购买东西,我最看中就是服务,如果服务跟不上,后期会出现很多意料之外的问题,这是防不胜防的。那到时候怎么办?扯皮?吵架?闹事?那个烦心呀,想都不敢想~今天我在人家店里坐了三小时,砍价+看砖,看完再砍,砍完再看,一直循环。陈老板没有一点不耐烦,还给我出手绘图看效果,人帅就算了,态度还好,不定就说不过去了啊。
4.细节问全
送货送到家里吗。多退少补吗。钱分几次付。出设计图和铺贴图吗。送橱柜杂砖吗。用砖的时候有现货吗。等
等。根据个人情况,其他问题自行添加。
[
本帖最后由 1步之遥 于 15-11-3 12:33 编辑
]
2015-11-2 20:24
100楼
找工作,就上MY0511!
只看该作者
分享本楼
返回家庭装修
613
2/13
<
1
2
3
4
5
6
7
8
9
10
>
>
|
快速回复主题
游客
您目前还是游客,请
登录
或
注册
您目前是游客,本帖已被系统设置了自动关闭,不可回复!
文明交流,理性发言
0/5000字
<
>
请在打开的新窗口中支付完成打赏
我已完成支付打赏
支付失败重新支付
其他金额
打赏金额:
元
确定
支付打赏
提 现
打赏人
打赏金额(元)
打赏时间
Powered by
Discuz! X 2
0.096347 s
清除 Cookies
-
镇江网友之家
-
手机版
论坛导航
关闭
吃喝玩乐
饮食男女
镇江钓友之家
菜菜鸟户外
镇江单车俱乐部
镜头里的镇江
畅游天下
猫狗总动员
视觉Coffeeshop摄影部落
花鸟鱼虫
婚姻.亲子.家庭
家有学子
谈婚论嫁
女性天地
母婴乐园
婚姻生活
梦溪佳缘
装修
家庭装修
装修招标
镇江室内设计师交流
装修商家直通车
你好,镇江!
百姓话题
我要买房
0511爱心家园
市场监管•12315热线
分类信息
生活服务
闲置转让
镇江二手房/镇江租房
镇江招聘求职
教育培训
镇江二手车
商铺厂房写字楼租售
宠物市场
运动健身
卡券交易
电脑维修升级
杂货铺
其他分类信息区
兴趣爱好
HiFi音响江城沙龙
镇江市美术家协会
我爱模型
车友俱乐部
车迷之家
汽车驾培中心
运动俱乐部
镇江市冬泳、铁人三项协会
聚焦足球
镇江羽毛球
镇江乒乓球协会
镇江网球协会
镇江市自行车运动协会
热爱篮球
动力机车
合作栏目
维权热线
天翼时代
色觉影像摄影工作室
站务区
疑问与建议
网络问政
市政府工作部门
垂直管理部门
党群工作部门
其他重点单位
辖市(区)