收藏本站
客户端
扫码下载客户端
官方微信
打开微信扫一扫
登录
|
注册
|
标题
标题
用户
全站首页
|
论坛导航
|
网络问政
|
招聘求职
|
买房租房
|
装修频道
|
生活服务
|
教育
|
相亲
|
亲子
|
美食
|
婚嫁
|
手机客户端
家有学子
|
母婴乐园
快捷导航
精彩推荐:
MY0511客户端下载
中信银行镇江分行
公益体彩 乐善人生
鹏龙鸿蒙
天然石材·人造石
»
梦溪论坛
»
家庭装修
» 北欧混搭风--务实主义者的装修之路
家庭装修
>
[装修日记]
北欧混搭风--务实主义者的装修之路
查看: 59398 回复: 187
快速回复
返回家庭装修
188
4/4
<
1
2
3
4
[装修日记]
北欧混搭风--务实主义者的装修之路
查看: 59398 回复: 187
上一主题
|
下一主题
清香的树袋熊
来自 江苏省
精华
17
注册 2008-6-25
行业 房产建筑
书房小阳台
2017-5-7 12:08
151楼
找工作,就上MY0511!
只看该作者
分享本楼
清香的树袋熊
来自 江苏省
精华
17
注册 2008-6-25
行业 房产建筑
厨房灯。
2017-5-7 12:11
152楼
找工作,就上MY0511!
只看该作者
分享本楼
清香的树袋熊
来自 江苏省
精华
17
注册 2008-6-25
行业 房产建筑
仿佛又过了一个世纪。
一起开工的朋友都在收尾了。
2017-7-11 12:14
153楼
0511家装频道:本地家居服务平台,数万业主共同选择
只看该作者
分享本楼
清香的树袋熊
来自 江苏省
精华
17
注册 2008-6-25
行业 房产建筑
朋友按他的思路帮我做的设计图。
NO,NO。NO.我喜欢大空间。
一望无际才好
2017-7-11 12:15
154楼
买房、卖房、租房上镇江房产网!
只看该作者
分享本楼
清香的树袋熊
来自 江苏省
精华
17
注册 2008-6-25
行业 房产建筑
终于开工了。嗳,我都忘记它了。
[
本帖最后由 清香的树袋熊 于 18-1-24 14:00 编辑
]
2017-7-11 12:39
155楼
[联宇电脑] 电脑组装\维修\升级\企业单位电脑维护!
只看该作者
分享本楼
清香的树袋熊
来自 江苏省
精华
17
注册 2008-6-25
行业 房产建筑
跟设计师重新沟通了,大部分都要推倒重新来。
2018-1-24 14:01
156楼
0511家装频道:本地家居服务平台,数万业主共同选择
只看该作者
分享本楼
清香的树袋熊
来自 江苏省
精华
17
注册 2008-6-25
行业 房产建筑
房间太多、隔断太多。许多空间化整为零了。我喜欢大的。
2018-1-24 14:02
157楼
MY0511相亲,一分钟注册,享一辈子幸福!
只看该作者
分享本楼
my0511小妖
版主
来自 江苏省
精华
9
注册 2005-10-29
QUOTE:
原帖由
清香的树袋熊
于 18-1-24 14:02 发表
房间太多、隔断太多。许多空间化整为零了。我喜欢大的。
大空间舒服~
2018-1-24 15:01
158楼
找工作,就上MY0511!
只看该作者
分享本楼
清香的树袋熊
来自 江苏省
精华
17
注册 2008-6-25
行业 房产建筑
QUOTE:
原帖由
my0511小妖
于 18-1-24 15:01 发表
大空间舒服~
流行总是在轮回~~
2018-1-25 08:57
159楼
0511家装频道:本地家居服务平台,数万业主共同选择
只看该作者
分享本楼
一颗小白菜
来自 江苏省
精华 0
注册 2017-8-24
2018-2-7 10:34
160楼
0511家装频道:本地家居服务平台,数万业主共同选择
只看该作者
分享本楼
清香的树袋熊
来自 江苏省
精华
17
注册 2008-6-25
行业 房产建筑
改了又改
何时是头……
---发自华为---
2018-3-30 09:17
161楼
买房、卖房、租房上镇江房产网!
只看该作者
分享本楼
清香的树袋熊
来自 0
精华
17
注册 2008-6-25
行业 房产建筑
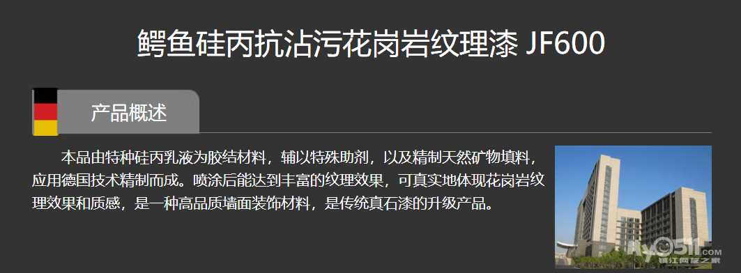
外墙方案定了二稿,一种是徽派,黑瓦白墙,内装中式风或新中式风另一种是用鳄鱼漆的外墙漆
一楼还是欧式风~
2018-4-5 21:22
162楼
0511家装频道:本地家居服务平台,数万业主共同选择
只看该作者
分享本楼
清香的树袋熊
来自 0
精华
17
注册 2008-6-25
行业 房产建筑
2018-4-5 21:28
163楼
买房、卖房、租房上镇江房产网!
只看该作者
分享本楼
清香的树袋熊
来自 江苏省
精华
17
注册 2008-6-25
行业 房产建筑
还在等水电工的时间,决定外墙先动工了~南北外墙+东面墙,十年的房子,内墙都漏水,墙砖要全部扒掉~
2018-4-5 21:30
164楼
0511家装频道:本地家居服务平台,数万业主共同选择
只看该作者
分享本楼
清香的树袋熊
来自 0
精华
17
注册 2008-6-25
行业 房产建筑
外墙,仿花岗岩的效果
2018-4-9 23:35
165楼
买房、卖房、租房上镇江房产网!
只看该作者
分享本楼
清香的树袋熊
来自 江苏省
精华
17
注册 2008-6-25
行业 房产建筑
大门和后门的样式,还是喜欢偏古典的样式,没有定制罗马柱和门帽~锁也准备定制的时候换上密码锁~
2018-4-9 23:43
166楼
找工作,就上MY0511!
只看该作者
分享本楼
清香的树袋熊
来自 0
精华
17
注册 2008-6-25
行业 房产建筑
换了一种大门的式样,虽然是自己订制的,也嫌铺张了,哈哈。
前门的宽度是1550,从双开门换成子母门,2570的高度也超高了,加了气窗,因此不做门帽了。
后门1130,略宽了些,做子母又浪费了,想想还是定制成单门。
换了二个指纹密码锁~
今天前后门是下单了。
[
本帖最后由 清香的树袋熊 于 18-4-11 23:09 编辑
]
2018-4-11 23:08
167楼
[联宇电脑] 电脑组装\维修\升级\企业单位电脑维护!
只看该作者
分享本楼
清香的树袋熊
来自 0
精华
17
注册 2008-6-25
行业 房产建筑
这周的任务:
1。订制院子的计划。找了个砌半墙的师傅,不过他是住平昌,过来干活要求我把工具运送过去,哈哈。
2。“拆除外墙瓷砖,和铲除内墙旧的墙漆”,预算和找人报价~
3。院子的杂草清除~
4。准备租赁脚手架·
2018-4-11 23:13
168楼
0511家装频道:本地家居服务平台,数万业主共同选择
只看该作者
分享本楼
清香的树袋熊
来自 0
精华
17
注册 2008-6-25
行业 房产建筑
外墙整个重新刷,还需要找专业做外墙的一批人~
2018-4-11 23:16
169楼
买房、卖房、租房上镇江房产网!
只看该作者
分享本楼
清香的树袋熊
来自 江苏省
精华
17
注册 2008-6-25
行业 房产建筑
这是去年6月份刚买的一个防盗门~配件锈成这样。
门架不住重量,已经关不上了。
打了无数个电话,一直说过来维修。。。。真无语了,
想想让他换个角链先用个30天,等新门来了就换了,
找朋友买的不知名的一个品牌,刚开始看着外表是好的,是好的。是好的~
自己装修遇到的第一个坑,也不让他陪了,只有自己认亏了
2018-4-12 13:18
170楼
找工作,就上MY0511!
只看该作者
分享本楼
清香的树袋熊
来自 江苏省
精华
17
注册 2008-6-25
行业 房产建筑
牌子改天得暴光一下。
所以防盗门一定还是要买配件好的,品牌门。
2018-4-12 13:19
171楼
[联宇电脑] 电脑组装\维修\升级\企业单位电脑维护!
只看该作者
分享本楼
清香的树袋熊
来自 江苏省
精华
17
注册 2008-6-25
行业 房产建筑
新门的式样,自己随便定制了
门头门帽没有,改成气窗了。
中式欧式都可用。
2018-4-12 13:21
172楼
MY0511相亲,一分钟注册,享一辈子幸福!
只看该作者
分享本楼
清香的树袋熊
来自 江苏省
精华
17
注册 2008-6-25
行业 房产建筑
罗马柱也没要。锁换了个指纹密码锁。
2018-4-12 13:21
173楼
0511家装频道:本地家居服务平台,数万业主共同选择
只看该作者
分享本楼
法诗顿移门
来自 江苏省
精华 0
注册 2017-7-1
2018-4-12 14:07
174楼
[联宇电脑] 电脑组装\维修\升级\企业单位电脑维护!
只看该作者
分享本楼
清香的树袋熊
来自 江苏省
精华
17
注册 2008-6-25
行业 房产建筑
QUOTE:
原帖由
法诗顿移门
于 18-4-12 14:07 发表
工程浩大~
2018-4-19 10:26
175楼
[联宇电脑] 电脑组装\维修\升级\企业单位电脑维护!
只看该作者
分享本楼
清香的树袋熊
来自 江苏省
精华
17
注册 2008-6-25
行业 房产建筑
大门:要更换,准备敲掉玻璃,现浇门柱和门头~
2018-4-19 10:28
176楼
MY0511相亲,一分钟注册,享一辈子幸福!
只看该作者
分享本楼
清香的树袋熊
来自 江苏省
精华
17
注册 2008-6-25
行业 房产建筑
工人施工的时候,全弄碎了,唉
2018-4-19 10:29
177楼
找工作,就上MY0511!
只看该作者
分享本楼
清香的树袋熊
来自 江苏省
精华
17
注册 2008-6-25
行业 房产建筑
院子里这棵老树,估计长了15年了~
2018-4-19 10:30
178楼
MY0511相亲,一分钟注册,享一辈子幸福!
只看该作者
分享本楼
清香的树袋熊
来自 江苏省
精华
17
注册 2008-6-25
行业 房产建筑
头疼~
2018-4-19 10:31
179楼
MY0511相亲,一分钟注册,享一辈子幸福!
只看该作者
分享本楼
清香的树袋熊
来自 江苏省
精华
17
注册 2008-6-25
行业 房产建筑
东边墙,敲掉砖,准备一起涂上鳄鱼漆的鼎彩石漆~
2018-4-19 10:32
180楼
0511家装频道:本地家居服务平台,数万业主共同选择
只看该作者
分享本楼
清香的树袋熊
来自 江苏省
精华
17
注册 2008-6-25
行业 房产建筑
北墙可以看出,这房子多旧多破多老了
2018-4-19 10:32
181楼
MY0511相亲,一分钟注册,享一辈子幸福!
只看该作者
分享本楼
清香的树袋熊
来自 江苏省
精华
17
注册 2008-6-25
行业 房产建筑
后门,换了个防盗门,准备浇个门头。连起来~一起涂彩石漆~
2018-4-19 10:33
182楼
找工作,就上MY0511!
只看该作者
分享本楼
清香的树袋熊
来自 江苏省
精华
17
注册 2008-6-25
行业 房产建筑
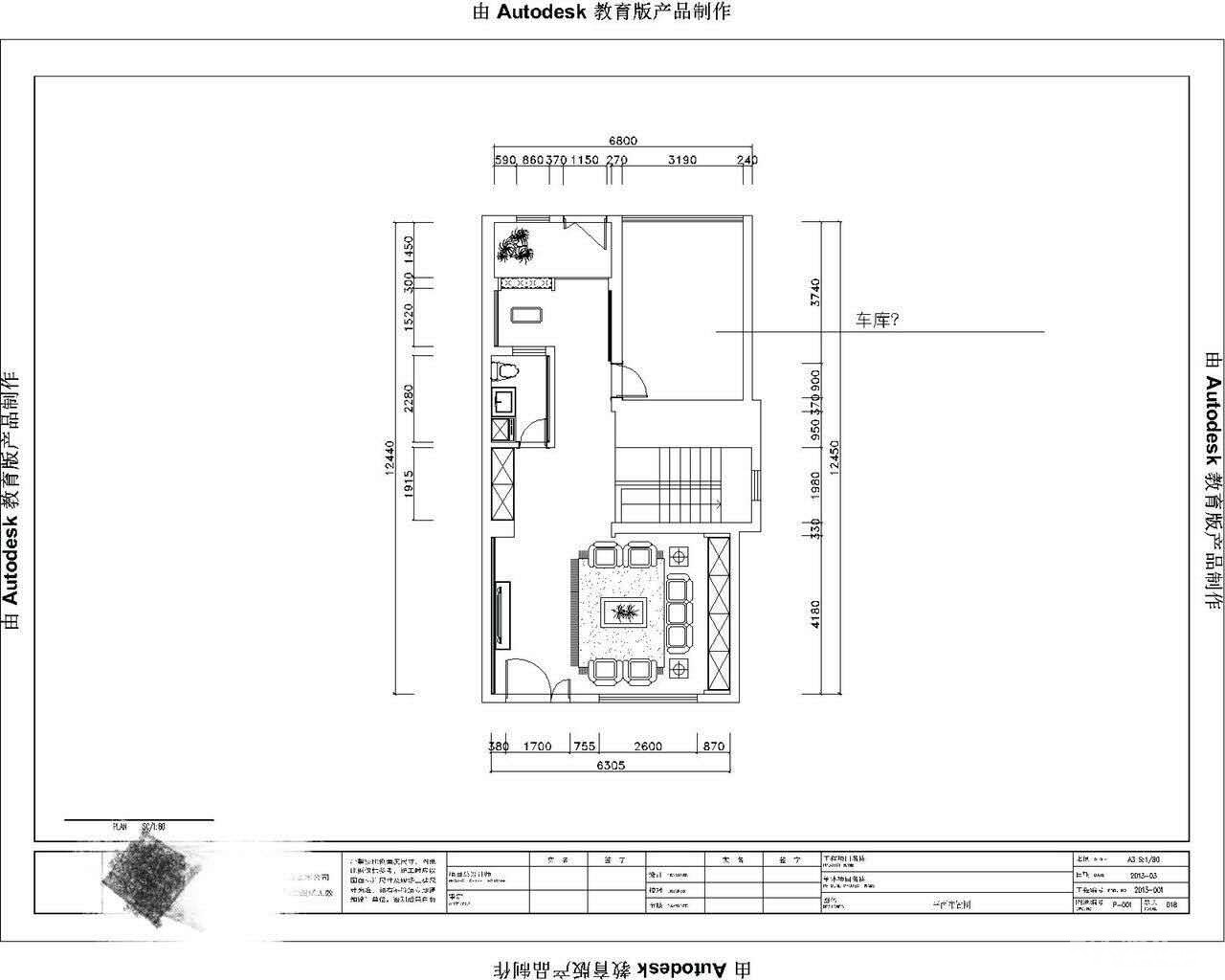
车库,改成房间了~
2018-4-19 10:35
183楼
[联宇电脑] 电脑组装\维修\升级\企业单位电脑维护!
只看该作者
分享本楼
诗尼曼
家装认证商户
来自 江苏省
精华 0
注册 2009-10-7
行业 基础设施
看了你家效果图挺漂亮的
2018-4-19 14:23
184楼
MY0511相亲,一分钟注册,享一辈子幸福!
只看该作者
分享本楼
亿都宏宇陶瓷
来自 江苏省
精华 0
注册 2013-11-20
2018-4-19 15:42
185楼
找工作,就上MY0511!
只看该作者
分享本楼
小周伯通
VIP
来自 江苏省
精华
2
注册 2008-1-12
行业 其它
一年了
---发自梦溪论坛手机客户端---
2018-4-21 18:49
186楼
0511家装频道:本地家居服务平台,数万业主共同选择
只看该作者
分享本楼
清香的树袋熊
来自 江苏省
精华
17
注册 2008-6-25
行业 房产建筑
QUOTE:
原帖由
小周伯通
于 18-4-21 18:49 发表
一年了
哈哈哈哈哈哈哈哈,
---发自华为---
2018-4-22 22:03
187楼
[联宇电脑] 电脑组装\维修\升级\企业单位电脑维护!
只看该作者
分享本楼
清香的树袋熊
来自 江苏省
精华
17
注册 2008-6-25
行业 房产建筑
QUOTE:
原帖由
小周伯通
于 18-4-21 18:49 发表
一年了
一是忙别的,二是懒,三是难。看到外墙啦,工程浩大~
---发自华为---
2018-4-22 22:13
188楼
0511家装频道:本地家居服务平台,数万业主共同选择
只看该作者
分享本楼
返回家庭装修
188
4/4
<
1
2
3
4
快速回复主题
游客
您目前还是游客,请
登录
或
注册
您目前是游客,本帖已被系统设置了自动关闭,不可回复!
文明交流,理性发言
0/5000字
<
>
请在打开的新窗口中支付完成打赏
我已完成支付打赏
支付失败重新支付
其他金额
打赏金额:
元
确定
支付打赏
提 现
打赏人
打赏金额(元)
打赏时间
老友记装饰客服
1.00
2017-3-13 13:53
红居装饰
1.00
2017-4-19 11:05
伊慕装饰
1.00
2017-4-22 22:45
Powered by
Discuz! X 2
0.083537 s
清除 Cookies
-
镇江网友之家
-
手机版
论坛导航
关闭
吃喝玩乐
饮食男女
镇江钓友之家
菜菜鸟户外
镇江单车俱乐部
镜头里的镇江
畅游天下
猫狗总动员
视觉Coffeeshop摄影部落
花鸟鱼虫
婚姻.亲子.家庭
家有学子
谈婚论嫁
女性天地
母婴乐园
婚姻生活
梦溪佳缘
装修
家庭装修
装修招标
镇江室内设计师交流
装修商家直通车
你好,镇江!
百姓话题
我要买房
0511爱心家园
市场监管•12315热线
分类信息
生活服务
闲置转让
镇江二手房/镇江租房
镇江招聘求职
教育培训
镇江二手车
商铺厂房写字楼租售
宠物市场
运动健身
卡券交易
电脑维修升级
杂货铺
兴趣爱好
HiFi音响江城沙龙
镇江市美术家协会
我爱模型
车友俱乐部
车迷之家
汽车驾培中心
运动俱乐部
镇江市冬泳、铁人三项协会
聚焦足球
镇江羽毛球
镇江乒乓球协会
镇江网球协会
镇江市自行车运动协会
热爱篮球
动力机车
合作栏目
维权热线
天翼时代
色觉影像摄影工作室
站务区
疑问与建议
网络问政
市政府工作部门
垂直管理部门
党群工作部门
其他重点单位
辖市(区)