
【家装毕业照幸福拍拍秀】旨在与网友们共同分享你的毕业完工照,我们的口号是:你的幸福空间,我们帮你拍照留念!还希望大家多多支持哦~~

第九十五集,我们来到网友km_yygl (熊爸) 的家里
《静溢清雅幸福味》
摄影编辑:my0511小Z

【小区名称】:中建大观
【套内面积】:188平
【房 型】:五室两厅
【装修风格】:美式
【包工方式】:半包
 km_yygl (熊爸)家的装修日记直通车:
 km_yygl (熊爸)家的装修日记直通车:中建大观—熊出没的地方,静待一步一步的安装
http://bbs.my0511.com/f95b-t5315545z-1

想要一个家,在整体设计中强调色彩的对比美,尊重自然的设计本质,
也能诠释对健康、舒适、宁静生活的追求。
但是预算没控制的住,下血本了

—————— km_yygl (熊爸)
[ 本帖最后由 my0511菲雪 于 18-3-14 08:55 编辑 ]
 







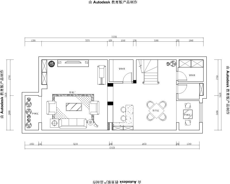
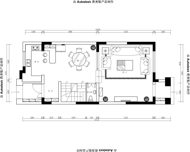
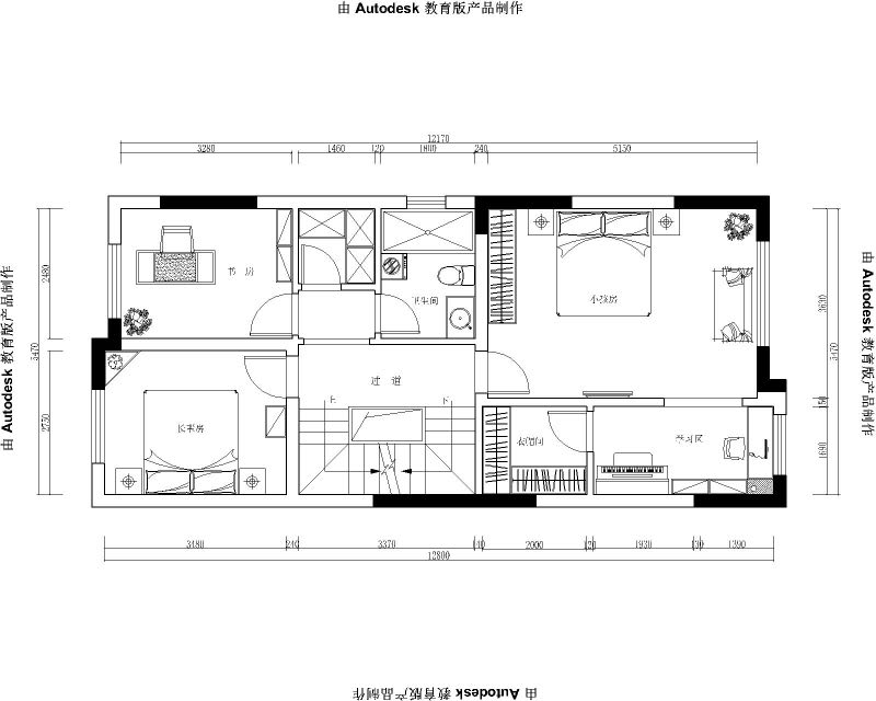
 平面图
平面图



 写在前面的话:
写在前面的话: 客厅
客厅







































 
 










 
 
 
 
 
 
 
 
 

 
 
 
 
 
 
 
 
 
 
 
 
 
 
 
 
 

 
 
 
 
 
 
 
 



