| 标题
快捷导航

精彩推荐:MY0511客户端下载

    • 中信银行镇江分行

    • 公益体彩 乐善人生

    • 鹏龙鸿蒙

    • 天然石材·人造石

    » 梦溪论坛 » 家庭装修 » 起.居室 --- 最终实景照出炉(13楼)
    家庭装修  >  [装修日记] 起.居室 --- 最终实景照出炉(13楼)     
    查看: 92904  回复: 80
     81  1/2  1  2  > 
    [装修日记] 起.居室 --- 最终实景照出炉(13楼)      查看: 92904  回复: 80
    • 来自 江苏省
    • 精华 1
    • 注册 2009-4-11
    • 行业 其它
    •  
    起.居室 --- 最终实景照出炉(13楼)

    【小区名称】:绿地启航社

    【建筑面积】:110

    【装修风格】:北欧

    【包工方式】:半包

    【开工日期】:2015年7月10号  

    【装修预算】:佛系装修,随缘。




               因种种种种的原因,历时三年的烂尾蜗居,终于竣工了!!!它竣工毕业了!!!!






                      

    [ 本帖最后由 my0511小妖 于 18-4-11 10:44 编辑 ]





                      
    • 来自 江苏省
    • 精华 1
    • 注册 2009-4-11
    • 行业 其它
    •  



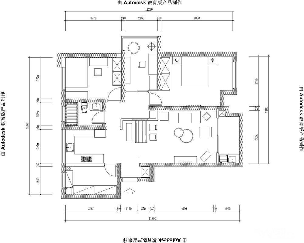
    原始结构图



    平面布置图

    [ 本帖最后由 雅¢雅 于 18-4-11 11:18 编辑 ]




    • 来自 江苏省
    • 精华 0
    • 注册 2014-11-25
    •  
    • 来自 江苏省
    • 精华 1
    • 注册 2009-4-11
    • 行业 其它
    •  

    了解了下,最近这两年比较火热的新中,小美,现代,北欧INS性冷淡,最终还是考虑选择比较惬意的北欧尝试下 ,毕竟还是考虑经济,舒适这两个重要因素~

    本着亲力亲为好好折腾下小窝。  结果,赤裸裸的打脸啊~

    历经“种种磨难”它 ---毕业了!




    以下是15年的时候现场追踪图,  然后开始了我的生娃大业加上乱七八糟的事,最终导致半路弃帖了~


    [ 本帖最后由 雅¢雅 于 18-4-11 10:43 编辑 ]




    • 来自 江苏省
    • 精华 1
    • 注册 2009-4-11
    • 行业 其它
    •  

    开工





































    [ 本帖最后由 雅¢雅 于 18-4-10 17:16 编辑 ]




    • 来自 江苏省
    • 精华 1
    • 注册 2009-4-11
    • 行业 其它
    •  

    水电








    • 来自 江苏省
    • 精华 0
    • 注册 2010-5-8
    • 行业 其它
    •  

    恭喜楼主装修大吉,有空来探店




    • 来自 江苏省
    • 精华 0
    • 注册 2017-7-26
    •  






    • 来自 江苏省
    • 精华 1
    • 注册 2009-4-11
    • 行业 其它
    •  

    补张路经房子拍的瓷砖


    厨房

    阳台

    [ 本帖最后由 雅¢雅 于 18-4-10 18:10 编辑 ]




    • 来自 江苏省
    • 精华 1
    • 注册 2009-4-11
    • 行业 其它
    •  

    窗帘挑选


    主卧

    客厅

    书房

    儿童房

    衣帽间




    • 来自 江苏省
    • 精华 1
    • 注册 2009-4-11
    • 行业 其它
    •  

    移门安装和漆工找补




    客厅



    书房



    [ 本帖最后由 雅¢雅 于 18-4-10 18:16 编辑 ]




    • 来自 江苏省
    • 精华 1
    • 注册 2009-4-11
    • 行业 其它
    •  

    家具  配饰











    • 来自 江苏省
    • 精华 1
    • 注册 2009-4-11
    • 行业 其它
    •  

              关注率不高啊~看来不放大招是不行了!    来来来,直接爆---最终实景照!










































    • 来自 江苏省
    • 精华 9
    • 注册 2005-10-29
    • 晒家
    •  

    好看的




    • 来自 0
    • 精华 0
    • 注册 2014-10-16
    •  


    QUOTE:
    原帖由 雅¢雅 于 18-4-10 16:52 发表

    【小区名称】:绿地启航社

    【建筑面积】:110[ ...

    加油加油






    • 来自 江苏省
    • 精华 0
    • 注册 2004-4-9
    • 行业 教育科研
    •  






    • 来自 江苏省
    • 精华 0
    • 注册 2004-4-9
    • 行业 教育科研
    •  

    半包价格是多少啊?能短一个吗?




    • 来自 江苏省
    • 精华 1
    • 注册 2009-4-11
    • 行业 其它
    •  


    QUOTE:
    原帖由 hellou 于 18-4-11 10:53 发表
    半包价格是多少啊?能短一个吗?
    价格已短~~




    • 来自 江苏省
    • 精华 0
    • 注册 2009-10-31
    • 行业 其它
    •  

    实景图美美哒




    • 来自 江苏省
    • 精华 1
    • 注册 2009-4-11
    • 行业 其它
    •  


    QUOTE:
    原帖由 狗狗熊家的猪猪 于 18-4-11 11:34 发表
    实景图美美哒
    谢谢·




    • 来自 江苏省
    • 精华 1
    • 注册 2008-4-22
    • 行业 其它
    • 梦溪宝贝
    •  

    实景图好看




    • 来自 江苏省
    • 精华 3
    • 注册 2013-8-6
    • 行业 IT 通信
    •  

    真好看~




    • 来自 江苏省
    • 精华 1
    • 注册 2009-4-11
    • 行业 其它
    •  


    QUOTE:
    原帖由 my0511唐老鸭 于 18-4-11 14:41 发表
    真好看~
    谢谢夸奖!
    主要还是设计师的功劳啊~




    • 来自 江苏省
    • 精华 53
    • 注册 2006-9-5
    • 行业 房产建筑
    •  

    赞了




    • 来自 江苏省
    • 精华 1
    • 注册 2009-4-11
    • 行业 其它
    •  

      追加几张~




















    • 来自 江苏省
    • 精华 0
    • 注册 2009-8-26
    • 行业 商业贸易
    •  
    • 来自 江苏省
    • 精华 1
    • 注册 2006-10-25
    • 行业 其它
    •  

    不算家俱和电器,多少文?短个消息,也在刚忙装修,想了解一下,我家104平




    • 来自 江苏省
    • 精华 1
    • 注册 2009-4-11
    • 行业 其它
    •  


    QUOTE:
    原帖由 以诺11 于 18-4-11 17:07 发表
    不算家俱和电器,多少文?短个消息,也在刚忙装修,想了解一下,我家104平
    你好,已短!




    • 来自 江苏省
    • 精华 0
    • 注册 2017-7-1
    •  

    好喜欢,窗帘哪家的




    • 来自 江苏省
    • 精华 1
    • 注册 2009-4-11
    • 行业 其它
    •  


    QUOTE:
    原帖由 一只爱哭的猫 于 18-4-11 17:54 发表
    好喜欢,窗帘哪家的
    你好,已短。




    • 来自 江苏省
    • 精华 0
    • 注册 2017-5-5
    • 行业 房产建筑
    •  

    恭喜,效果非常赞




    • 来自 江苏省
    • 精华 1
    • 注册 2009-4-11
    • 行业 其它
    •  


    QUOTE:
    原帖由 万达壁纸软装 于 18-4-12 19:06 发表
    恭喜,效果非常赞
    谢谢~




    • 来自 江苏省
    • 精华 53
    • 注册 2006-9-5
    • 行业 房产建筑
    •  






    • 来自 江苏省
    • 精华 4
    • 注册 2007-7-16
    • 行业 其它
    • 家装达人
    •  

    瓦工师傅展了!




    • 来自 江苏省
    • 精华 3
    • 注册 2014-3-7
    • 行业 其它
    • 家装达人
    •  

    很清爽,赞




    • 来自 江苏省
    • 精华 1
    • 注册 2009-4-11
    • 行业 其它
    •  


    QUOTE:
    原帖由 安吉拉.T 于 18-4-13 14:11 发表
    很清爽,赞
    谢谢夸奖~




    • 来自 江苏省
    • 精华 0
    • 注册 2009-2-10
    • 行业 学生
    •  

    半包价格多少啊?




    • 来自 江苏省
    • 精华 1
    • 注册 2009-4-11
    • 行业 其它
    •  


    QUOTE:
    原帖由 gx310427512 于 18-4-22 22:42 发表
    半包价格多少啊?
    你好,价格已短




    • 来自 江苏省
    • 精华 0
    • 注册 2017-7-1
    •  

    效果图赞了




    • 来自 江苏省
    • 精华 1
    • 注册 2009-4-11
    • 行业 其它
    •  


    QUOTE:
    原帖由 法诗顿移门 于 18-4-24 10:15 发表
    效果图赞了
    这个是实景照片,不是效果图~  




    • 来自 江苏省
    • 精华 0
    • 注册 2018-2-24
    • 行业 商业贸易
    •  

    恭喜毕业




    • 来自 江苏省
    • 精华 0
    • 注册 2017-7-1
    •  


    QUOTE:
    原帖由 雅¢雅 于 18-4-24 11:42 发表

    这个是实景照片,不是效果图~  
    哦!赞的一踏 好喜欢




    • 来自 江苏省
    • 精华 1
    • 注册 2009-4-11
    • 行业 其它
    •  


    QUOTE:
    原帖由 香港红苹果木门 于 18-4-24 12:09 发表
    恭喜毕业
    谢谢~




    • 来自 江苏省
    • 精华 0
    • 注册 2010-10-12
    • 行业 金融保险
    •  

    移门多少一平啊?型材是多宽的?




    • 来自 江苏省
    • 精华 0
    • 注册 2016-11-14
    •  

    效果图很漂亮




    • 来自 江苏省
    • 精华 0
    • 注册 2012-6-10
    • 行业 房产建筑
    •  

    好看!楼主木门定的哪家?




    • 来自 江苏省
    • 精华 0
    • 注册 2012-3-13
    • 行业 其它
    •  

    窗帘哪家的阿?




    • 来自 江苏省
    • 精华 1
    • 注册 2009-4-11
    • 行业 其它
    •  


    QUOTE:
    原帖由 小火箭 于 18-4-25 15:03 发表
    窗帘哪家的阿?
    你好,已短。




    • 来自 江苏省
    • 精华 1
    • 注册 2009-4-11
    • 行业 其它
    •  


    QUOTE:
    原帖由 大天 于 18-4-25 14:06 发表
    好看!楼主木门定的哪家?
    你好,已短




     81  1/2  1  2  > 
    查看积分策略说明快速回复主题
    您目前还是游客,请 登录注册
    您目前是游客,本帖已被系统设置了自动关闭,不可回复!

    0/5000字

     
    < >
     

    Powered by Discuz! X 2 0.099602 s 清除 Cookies - 镇江网友之家 - 手机版
    论坛导航 关闭