| 标题
快捷导航

精彩推荐:MY0511客户端下载

    • 中信银行镇江分行

    • 公益体彩 乐善人生

    • 鹏龙鸿蒙

    • 天然石材·人造石

    » 梦溪论坛 » 家庭装修 » 家装毕业照幸福拍拍秀第102集:《sweet》
    家庭装修  >  [官方活动] 家装毕业照幸福拍拍秀第102集:《sweet》     
    查看: 114786  回复: 85
     86  1/2  1  2  > 
    [官方活动] 家装毕业照幸福拍拍秀第102集:《sweet》      查看: 114786  回复: 85
    • 来自 江苏省
    • 精华 3
    • 注册 2013-8-6
    • 行业 IT 通信
    •  
    家装毕业照幸福拍拍秀第102集:《sweet》


    【家装毕业照幸福拍拍秀】旨在与网友们共同分享你的毕业完工照,
    我们的口号是:你的幸福空间,我们帮你拍照留念!还希望大家多多支持哦~~

    第一百零二集,我们来到网友大鼻志的家里

                                            《sweet》




                                                     摄影编辑:my0511剪刀手


                                       【小区名称】:中南御景城

                                       【套内面积】:100

                                       【装修风格】:北欧

                                       【包工方式】:半包


    [ 本帖最后由 my0511唐老鸭 于 2019-1-28 16:39 编辑 ]





                      
    • 来自 江苏省
    • 精华 3
    • 注册 2013-8-6
    • 行业 IT 通信
    •  

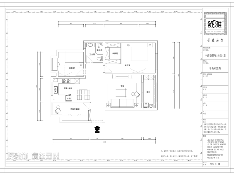
    平面图






    • 来自 江苏省
    • 精华 3
    • 注册 2013-8-6
    • 行业 IT 通信
    •  

    客厅

    纯净的北欧风格深受年轻人的欢迎,选择简单、自然的北欧生活态度,就等于选择了一种返璞归真的精神。
    本案是一个充满生活气息的有爱家庭。看似漫不经心的搭配,实则处处流露主人对舒适生活的向往和追求。

    大胆的撞色墙面,黑色的沙发,浅色的窗帘,突出了整个客厅的空间感。
    既活跃了空间色彩,又呈现出了北欧风特有的随意自然。

    浅色的地板延续了整个简单自然的空间格调,
    深色的电视柜上摆放的日常用品,鲜花和绿植点缀,营造出一种温暖惬意的感觉。


    [ 本帖最后由 my0511唐老鸭 于 2019-1-28 14:31 编辑 ]




    • 来自 江苏省
    • 精华 3
    • 注册 2013-8-6
    • 行业 IT 通信
    •  

    餐厅

    餐厅的布置简单而不失清新。
    原木色的餐椅,简约时尚的吊灯与波点桌布搭配在一起,让就餐环境显得更有情调。

    餐桌上的鲜花为整个空间增添了些许亮点。
    实用性与艺术性的巧妙结合,能让人在用餐时心情愉悦,释放压力。

    厨房

    白色的厨房,很容易营造出干净、整洁的氛围,
    深色的台面方便清理,简单的橱柜样式让主人在烹饪时,有更广阔的活动空间。


    [ 本帖最后由 my0511唐老鸭 于 2019-1-28 14:36 编辑 ]




    • 来自 江苏省
    • 精华 3
    • 注册 2013-8-6
    • 行业 IT 通信
    •  

    主卧

    卧风格清新质朴,营造一种零压力的自然感觉。床边的化妆台给女主人的化妆品提供了收纳空间。
    简单的家具以白色呼应,简约却不简单。床头摆放了可爱的玩偶,处处可见女主人的少女心。


    [ 本帖最后由 my0511唐老鸭 于 2019-1-28 16:41 编辑 ]




    • 来自 江苏省
    • 精华 3
    • 注册 2013-8-6
    • 行业 IT 通信
    •  

    书房

    选用原木的书桌和柜子,保留木纹本身的纹理,富有质感,把大自然的气息带到书房中。
    一人一个工作台,彼此陪伴又不会互相影响,收纳神器洞洞板也是亮点之一。


    [ 本帖最后由 my0511唐老鸭 于 2019-1-28 14:50 编辑 ]




    • 来自 江苏省
    • 精华 3
    • 注册 2013-8-6
    • 行业 IT 通信
    •  

    卫生间

    卫生间做的干湿分离,镜柜和洗手台的收纳空间也很大。
    淋浴间采用了透明玻璃的隔断,给人纯净自然的舒适感。

    阳台

    对于洗晾一体型的阳台,柜体需要存放的东西更多,
    选择线条、元素都简单化的柜体,减少阳台的杂乱感。
    即使是实用型阳台,女主人也放置了两个玩偶做装饰,增加了生活小情趣。

    一只暗中观察的小猫咪


    [ 本帖最后由 my0511唐老鸭 于 2019-1-28 15:21 编辑 ]




    • 来自 江苏省
    • 精华 3
    • 注册 2013-8-6
    • 行业 IT 通信
    •  

    小编的言外话:

    不是每张毕业照小编们拍的都华丽丽
    我们都懂装修里难免有遗憾 别人家的也请不要强求完美
    何况每个人的审美也都不一样的
    没有人说要完全按照别人家的装
    所以请回帖的童鞋们不要挑刺 尊重别人的劳动成果 谢谢

    如果你写了装修日记 想给装修之旅留个纪念
    或者你觉得你家亮点多多 有很多装修经验想跟大家分享
    欢迎你联系小编 提前预约(QQ: 776280275  775967213 敲门暗号:想拍毕业照)
    小编会竭力帮助你的

    现在加小编微信号也可以预约哦
    微信号:13655287775


    [ 本帖最后由 my0511唐老鸭 于 2019-1-28 15:31 编辑 ]




    • 来自 江苏省
    • 精华 3
    • 注册 2013-8-6
    • 行业 IT 通信
    •  

    【About Us】


    舒雅装饰

    公司地址:镇江市学府路中建大厦509室

    公司电话:0511-85038266;13094970877

    公司QQ:892286106


    如果你也想拥有这样一套品位与品质共存的案例

    请联系我们


    更多舒雅设计案例请点击:

    http://bbs.my0511.com/f1176b



    [ 本帖最后由 my0511唐老鸭 于 2019-1-28 16:20 编辑 ]




    • 来自 江苏省
    • 精华 0
    • 注册 2011-4-21
    • 行业 IT 通信
    •  

    怎么想起来把暖气片装在客厅主沙发后面?




    • 来自 江苏省
    • 精华 9
    • 注册 2005-10-29
    • 晒家
    •  


    QUOTE:
    原帖由 marshal75 于 2019-1-30 09:28 发表
    怎么想起来把暖气片装在客厅主沙发后面?
    看户型图就知道了,装暖气片的话没其他更好的方案




    • 来自 江苏省
    • 精华 0
    • 注册 2007-11-7
    • 行业 房产建筑
    •  

    请问两个书桌在哪里买的?




    • 来自 江苏省
    • 精华 3
    • 注册 2010-8-24
    • 行业 房产建筑
    •  


    QUOTE:
    原帖由 基拉日记 于 2019-2-1 10:56 发表
    请问两个书桌在哪里买的?
    淘宝买的 【原始原素全实木书桌带书架现代简约书房家具橡木电脑桌家用写字台】https://m.tb.cn/h.3u4CeWd 点击链接,再选择浏览器咑閞;或復·制这段描述¥xsgLbHTbXsc¥后到淘♂寳♀[来自超级会员的分享]




    • 来自 江苏省
    • 精华 3
    • 注册 2006-3-11
    • 行业 电子制造
    •  

    问一下化妆桌椅哪里买的?谢谢!




    • 来自 江苏省
    • 精华 3
    • 注册 2010-8-24
    • 行业 房产建筑
    •  


    QUOTE:
    原帖由 没方向的云 于 2019-2-1 15:32 发表
    问一下化妆桌椅哪里买的?谢谢!
    淘宝买的 【卧室梳妆台北欧现代简约迷你小书桌金色铁艺白色铁艺台梳妆化妆桌】https://m.tb.cn/h.3uUfMae 点击链接,再选择浏览器咑閞;或復·制这段描述¥WflqbH6mJVK¥后到淘♂寳♀[来自超级会员的分享]




    • 来自 江苏省
    • 精华 3
    • 注册 2007-6-2
    • 行业 商业贸易
    •  

    橱柜好看的。客厅颜色也不错。




    • 来自 江苏省
    • 精华 0
    • 注册 2017-2-4
    •  

    蛮温馨的




    • 来自 江苏省
    • 精华 0
    • 注册 2017-3-13
    •  

    *** 作者因违反论坛规定,禁言处理,内容自动屏蔽 ***

    详情参阅论坛注册条款:
    http://bbs.my0511.com/f11b-t2789156z


    • 来自 江苏省
    • 精华 2
    • 注册 2016-3-17
    •  

    *** 作者因违反论坛规定,禁言处理,内容自动屏蔽 ***

    详情参阅论坛注册条款:
    http://bbs.my0511.com/f11b-t2789156z


    • 来自 江苏省
    • 精华 3
    • 注册 2003-1-9
    • 行业 商业贸易
    •  

    房间和书房的墙面是什么材料。是乳胶漆还是墙布?




    • 来自 江苏省
    • 精华 3
    • 注册 2010-8-24
    • 行业 房产建筑
    •  


    QUOTE:
    原帖由 旁征博引 于 2019-2-2 10:45 发表
    房间和书房的墙面是什么材料。是乳胶漆还是墙布?
    墙布




    • 来自 江苏省
    • 精华 0
    • 注册 2005-2-4
    • 行业 其它
    •  

    有思想有灵魂的装修!




    • 来自 江苏省
    • 精华 2
    • 注册 2009-11-18
    • 行业 娱乐餐饮
    •  

    宜家买的啊?




    • 来自 江苏省
    • 精华 0
    • 注册 2008-5-11
    • 行业 娱乐餐饮
    •  

    请问厨房地面是木纹瓷砖吗




    • 来自 江苏省
    • 精华 0
    • 注册 2011-7-31
    • 行业 医疗卫生
    •  

    餐桌椅在哪里买的?




    • 来自 江苏省
    • 精华 0
    • 注册 2011-11-6
    • 行业 政府行政
    •  

    请问书房的懒人沙发哪买的




    • 来自 江苏省
    • 精华 3
    • 注册 2010-8-24
    • 行业 房产建筑
    •  


    QUOTE:
    原帖由 海边人家 于 2019-2-2 12:39 发表
    请问厨房地面是木纹瓷砖吗
    墙砖是白格雅光砖




    • 来自 江苏省
    • 精华 3
    • 注册 2010-8-24
    • 行业 房产建筑
    •  


    QUOTE:
    原帖由 随波浮萍 于 2019-2-2 15:36 发表
    餐桌椅在哪里买的?
    淘宝买的【北欧实木伸缩餐桌白橡木折叠拉伸餐桌椅组合简约现代家用小户型桌】https://m.tb.cn/h.3u3Ciax 点击链接,再选择浏览器咑閞;或復·制这段描述¥oi5BbHQaPsj¥后到淘♂寳♀[来自超级会员的分享]




    • 来自 江苏省
    • 精华 3
    • 注册 2010-8-24
    • 行业 房产建筑
    •  


    QUOTE:
    原帖由 肥猪小心 于 2019-2-2 16:17 发表
    请问书房的懒人沙发哪买的
    淘宝买的 【INS儿童沙发卡通女孩公主可爱懒人豆袋单人宝宝沙发男孩游戏看书】https://m.tb.cn/h.3uM4Z3S 点击链接,再选择浏览器咑閞;或復·制这段描述¥1Q3sbHQZfeL¥后到淘♂寳♀[来自超级会员的分享]




    • 来自 江苏省
    • 精华 3
    • 注册 2010-8-24
    • 行业 房产建筑
    •  


    QUOTE:
    原帖由 964377 于 2019-2-2 12:21 发表
    宜家买的啊?
    淘宝买的




    • 来自 江苏省
    • 精华 0
    • 注册 2006-6-10
    •  

    请问客厅落地灯哪里买的?




    • 来自 江苏省
    • 精华 3
    • 注册 2010-8-24
    • 行业 房产建筑
    •  


    QUOTE:
    原帖由 cindyjqy 于 2019-2-2 22:35 发表
    请问客厅落地灯哪里买的?
    淘宝买的 【北欧简约现代客厅沙发书房卧室个性创意站立钓鱼灯简易阅读落地灯】https://m.tb.cn/h.3u7My1c?sm=5be531 点击链接,再选择浏览器咑閞;或復·制这段描述¥wcPEbH9PJwM¥后到淘♂寳♀




    • 来自 江苏省
    • 精华 0
    • 注册 2005-5-14
    • 行业 其它
    •  

    请问电视柜是什么牌子的




    • 来自 江苏省
    • 精华 0
    • 注册 2007-2-14
    • 行业 其它
    •  

    家装毕业照看了很多,不乏豪宅和各种风格,唯喜欢这套。




    • 来自 江苏省
    • 精华 0
    • 注册 2016-12-3
    •  


    QUOTE:
    原帖由 marshal75 于 2019-1-30 09:28 发表
    怎么想起来把暖气片装在客厅主沙发后面?
    很多都是这么装的




    • 来自 江苏省
    • 精华 3
    • 注册 2010-8-24
    • 行业 房产建筑
    •  


    QUOTE:
    原帖由 娇蛮小宝贝 于 2019-2-3 00:05 发表
    请问电视柜是什么牌子的
    纳斯卡




    • 来自 江苏省
    • 精华 6
    • 注册 2003-4-2
    •  

    请问卫生间的墙砖是什么品牌的?在哪买的?




    • 来自 江苏省
    • 精华 3
    • 注册 2010-8-24
    • 行业 房产建筑
    •  


    QUOTE:
    原帖由 全无敌 于 2019-2-5 23:14 发表
    请问卫生间的墙砖是什么品牌的?在哪买的?
    金桥装饰城新南悦专买店,但是瓷砖好像不是新南悦品牌的,具体叫啥不记得了,就是看了款式、质地还好。




    • 来自 江苏省
    • 精华 0
    • 注册 2018-12-12
    •  
    • 来自 江苏省
    • 精华 3
    • 注册 2010-8-24
    • 行业 房产建筑
    •  


    QUOTE:
    原帖由 小刘10208 于 2019-2-6 17:42 发表
    大概预算多少?
    己私信您了,感谢您关注我们的作品,有装修需求可以加微信,谢谢。




    • 来自 上海
    • 精华 0
    • 注册 2013-2-18
    • 行业 医疗卫生
    •  
    • 来自 江苏省
    • 精华 0
    • 注册 2013-2-25
    • 行业 金融保险
    •  

    餐厅太小了,那么考究的厨房,3-4个人都没法吃。暖气片装在沙发后面不是很好,以后住进去就会后悔的




    • 来自 江苏省
    • 精华 3
    • 注册 2010-8-24
    • 行业 房产建筑
    •  


    QUOTE:
    原帖由 jiangbeidaxia 于 2019-2-7 09:41 发表
    餐厅太小了,那么考究的厨房,3-4个人都没法吃。暖气片装在沙发后面不是很好,以后住进去就会后悔的
    业主需求是2个卧室十1个书房,喜欢烹饪(要蒸箱、烤箱)总面积100平(含增送面积),把厨房做成开放式已是把厨房、餐厅最大化啦!前面附有平面图,您可以自己看看,暖气片应该是没有找到比放沙发后面更好、更美观的地方放,谢谢您提出宝贵见意。




    • 来自 江苏省
    • 精华 0
    • 注册 2016-7-1
    •  

    开放式厨房,燃气公司能让开通燃气吗?




    • 来自 江苏省
    • 精华 3
    • 注册 2010-8-24
    • 行业 房产建筑
    •  


    QUOTE:
    原帖由 zf780118 于 2019-2-7 20:09 发表
    开放式厨房,燃气公司能让开通燃气吗?
    是在新规出台之前开通的燃气




    • 来自 江苏省
    • 精华 0
    • 注册 2013-9-4
    •  

    您好!挺喜欢您的风格,想问问具体花费?




    • 来自 江苏省
    • 精华 3
    • 注册 2010-8-24
    • 行业 房产建筑
    •  


    QUOTE:
    原帖由 荣华月饼 于 2019-2-8 07:12 发表
    您好!挺喜欢您的风格,想问问具体花费?
    已私信您了。




    • 来自 江苏省
    • 精华 0
    • 注册 2016-6-4
    •  

    大概预算多少?




    • 来自 江苏省
    • 精华 3
    • 注册 2010-8-24
    • 行业 房产建筑
    •  


    QUOTE:
    原帖由 ISCO 于 2019-2-9 20:00 发表
    大概预算多少?
    已私信您了,如果您有装修需求也可以直接加微信。




    • 来自 江苏省
    • 精华 0
    • 注册 2008-8-20
    • 行业 娱乐餐饮
    •  

    预算多少,这个是半包还是全包




     86  1/2  1  2  > 
    查看积分策略说明快速回复主题
    您目前还是游客,请 登录注册
    您目前是游客,本帖已被系统设置了自动关闭,不可回复!

    0/5000字

     
    < >
     

    Powered by Discuz! X 2 0.114464 s 清除 Cookies - 镇江网友之家 - 手机版
    论坛导航 关闭