收藏本站
客户端
扫码下载客户端
官方微信
打开微信扫一扫
登录
|
注册
|
标题
标题
用户
全站首页
|
论坛导航
|
网络问政
|
招聘求职
|
买房租房
|
装修频道
|
生活服务
|
教育
|
相亲
|
亲子
|
美食
|
婚嫁
|
手机客户端
家有学子
|
母婴乐园
快捷导航
精彩推荐:
MY0511客户端下载
中信银行镇江分行
公益体彩 乐善人生
鹏龙鸿蒙
天然石材·人造石
»
梦溪论坛
»
家庭装修
» 中南望江-江边日晚潮烟上
家庭装修
>
[装修日记]
中南望江-江边日晚潮烟上
查看: 103864 回复: 244
快速回复
返回家庭装修
245
3/5
<
1
2
3
4
5
>
[装修日记]
中南望江-江边日晚潮烟上
查看: 103864 回复: 244
上一主题
|
下一主题
hmm930
来自 江苏省
精华 0
注册 2016-11-24
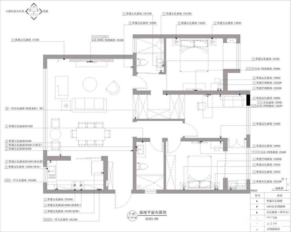
我把设计师给我确认插座的图纸发给朋友,都说考虑的认真细致,蛮喜欢他的图的
---发自华为---
2019-8-3 23:48
101楼
找工作,就上MY0511!
只看该作者
分享本楼
hmm930
来自 江苏省
精华 0
注册 2016-11-24
早上很凉快,瓦工师傅在砌墙。和老墙交接的地方,打孔插钢筋,增加稳固性
---发自华为---
2019-8-4 09:48
102楼
[联宇电脑] 电脑组装\维修\升级\企业单位电脑维护!
只看该作者
分享本楼
hmm930
来自 江苏省
精华 0
注册 2016-11-24
施工到现在总体非常满意,是时候正式介绍下设计师了,装修公司总部在上海,镇江市工作室性质,设计师本人直管工地,认真负责尽心尽责,工人师傅也非常细致,决定把第一楼的帖子修改下喽
2019-8-4 12:52
103楼
[联宇电脑] 电脑组装\维修\升级\企业单位电脑维护!
只看该作者
分享本楼
hmm930
来自 江苏省
精华 0
注册 2016-11-24
今天天不热,等下吃过饭晃过去看看
---发自华为---
2019-8-5 10:32
104楼
找工作,就上MY0511!
只看该作者
分享本楼
hmm930
来自 江苏省
精华 0
注册 2016-11-24
瓷砖马上到
---发自华为---
2019-8-5 10:35
105楼
买房、卖房、租房上镇江房产网!
只看该作者
分享本楼
hmm930
来自 江苏省
精华 0
注册 2016-11-24
今天瓦工师傅在包管道
---发自华为---
2019-8-6 14:07
106楼
MY0511相亲,一分钟注册,享一辈子幸福!
只看该作者
分享本楼
hmm930
来自 江苏省
精华 0
注册 2016-11-24
瓷砖送到了
---发自华为---
2019-8-6 15:25
107楼
买房、卖房、租房上镇江房产网!
只看该作者
分享本楼
hmm930
来自 江苏省
精华 0
注册 2016-11-24
今天在这边看到师傅回填主卧室的卫生间了,师傅先用砖头把管道周边摆好,然后用沙子把管子下面填实,然后用小红砖外面再砌格子
---发自华为---
2019-8-6 15:34
108楼
找工作,就上MY0511!
只看该作者
分享本楼
hmm930
来自 江苏省
精华 0
注册 2016-11-24
然后把陶粒填进去后,表面放钢筋再浇
---发自华为---
2019-8-6 15:36
109楼
买房、卖房、租房上镇江房产网!
只看该作者
分享本楼
hmm930
来自 江苏省
精华 0
注册 2016-11-24
设计师朋友圈发的
---发自华为---
2019-8-6 18:20
110楼
找工作,就上MY0511!
只看该作者
分享本楼
多洛米软装
来自 江苏省
精华 0
注册 2019-4-22
2019-8-6 20:51
111楼
MY0511相亲,一分钟注册,享一辈子幸福!
只看该作者
分享本楼
玛莎名品家具
来自 江苏省
精华
1
注册 2017-8-10
行业 其它
QUOTE:
原帖由
hmm930
于 2019-7-19 15:04 发表
客餐厅 主卧效果图
效果图好棒
---发自OPPO---
2019-8-6 21:10
112楼
[联宇电脑] 电脑组装\维修\升级\企业单位电脑维护!
只看该作者
分享本楼
美缝_小潘
来自 江苏省
精华 0
注册 2018-8-27
---发自梦溪论坛手机客户端---
2019-8-7 07:06
113楼
买房、卖房、租房上镇江房产网!
只看该作者
分享本楼
宋仲基
来自 江苏省
精华 0
注册 2016-3-11
黄沙捂下水管是个什么作用?
2019-8-8 19:26
114楼
0511家装频道:本地家居服务平台,数万业主共同选择
只看该作者
分享本楼
hmm930
来自 江苏省
精华 0
注册 2016-11-24
QUOTE:
原帖由
宋仲基
于 2019-8-8 19:26 发表
黄沙捂下水管是个什么作用?
回填时固定下水管,防止下水管压受伤
---发自华为---
2019-8-9 07:44
115楼
[联宇电脑] 电脑组装\维修\升级\企业单位电脑维护!
只看该作者
分享本楼
hmm930
来自 江苏省
精华 0
注册 2016-11-24
窗台下面太窄了,装好窗户大理石不好装了,瓦工师傅砌墙粉刷
---发自华为---
2019-8-9 07:46
116楼
MY0511相亲,一分钟注册,享一辈子幸福!
只看该作者
分享本楼
好易居平台
来自 江苏省
精华 0
注册 2019-7-9
2019-8-9 10:22
117楼
买房、卖房、租房上镇江房产网!
只看该作者
分享本楼
hmm930
来自 江苏省
精华 0
注册 2016-11-24
你们说的五星的空调送到了
八千
---发自华为---
2019-8-9 10:23
118楼
找工作,就上MY0511!
只看该作者
分享本楼
金佰威装饰集团
来自 江苏省
精华
30
注册 2015-9-29
行业 房产建筑
恭喜恭喜
2019-8-9 10:44
119楼
买房、卖房、租房上镇江房产网!
只看该作者
分享本楼
hmm930
来自 江苏省
精华 0
注册 2016-11-24
窗框装好了,效果蛮好的
---发自华为---
2019-8-12 12:39
120楼
[联宇电脑] 电脑组装\维修\升级\企业单位电脑维护!
只看该作者
分享本楼
镇江德国都芳漆
来自 江苏省
精华 0
注册 2014-5-17
行业 商业贸易
2019-8-12 15:09
121楼
[联宇电脑] 电脑组装\维修\升级\企业单位电脑维护!
只看该作者
分享本楼
hmm930
来自 江苏省
精华 0
注册 2016-11-24
五星不错啊
---发自华为---
2019-8-13 09:48
122楼
MY0511相亲,一分钟注册,享一辈子幸福!
只看该作者
分享本楼
森泓住建
来自 江苏省
精华 0
注册 2019-7-26
阳台够大够舒服
2019-8-13 10:50
123楼
0511家装频道:本地家居服务平台,数万业主共同选择
只看该作者
分享本楼
hmm930
来自 江苏省
精华 0
注册 2016-11-24
跑到厂里看移门
来不来
---发自华为---
2019-8-14 23:41
124楼
买房、卖房、租房上镇江房产网!
只看该作者
分享本楼
hmm930
来自 江苏省
精华 0
注册 2016-11-24
淋浴房也到厂里定
---发自华为---
2019-8-14 23:42
125楼
[联宇电脑] 电脑组装\维修\升级\企业单位电脑维护!
只看该作者
分享本楼
hmm930
来自 江苏省
精华 0
注册 2016-11-24
窗台到地面尺寸蛮尴尬的,从窗台整片砖往下最下面一块砖太小了,现场设计师决定保证最下面一块砖尽量整砖,窗台采用大理石!
---发自华为---
2019-8-21 18:51
126楼
[联宇电脑] 电脑组装\维修\升级\企业单位电脑维护!
只看该作者
分享本楼
hmm930
来自 江苏省
精华 0
注册 2016-11-24
---发自华为---
2019-8-22 18:59
127楼
买房、卖房、租房上镇江房产网!
只看该作者
分享本楼
hmm930
来自 江苏省
精华 0
注册 2016-11-24
客卫300*800梵高的通体砖,效果不错
---发自华为---
2019-8-22 19:00
128楼
找工作,就上MY0511!
只看该作者
分享本楼
hmm930
来自 江苏省
精华 0
注册 2016-11-24
就爱爵士白,你说咋办。
---发自华为---
2019-8-26 15:14
129楼
0511家装频道:本地家居服务平台,数万业主共同选择
只看该作者
分享本楼
hmm930
来自 江苏省
精华 0
注册 2016-11-24
好久没有更新了,不为别的,就记录下装修的过程
---发自华为---
2019-8-31 06:49
130楼
找工作,就上MY0511!
只看该作者
分享本楼
hmm930
来自 江苏省
精华 0
注册 2016-11-24
梵高这款砖确实漂亮
---发自华为---
2019-8-31 06:50
131楼
买房、卖房、租房上镇江房产网!
只看该作者
分享本楼
hmm930
来自 江苏省
精华 0
注册 2016-11-24
开始刷地面防水了,下层式卫生间底层刷过两遍防水做过闭水实验了,回填浇好后,瓦工捂住挡水条装过门石刷防水砂浆在靠近门口做防水围堰(这个很不错),刷防水,包括大理石过门石粘结层都刷好
---发自华为---
2019-8-31 06:56
132楼
[联宇电脑] 电脑组装\维修\升级\企业单位电脑维护!
只看该作者
分享本楼
hmm930
来自 江苏省
精华 0
注册 2016-11-24
装修预算又宽松了,冠昊生物16到24块多了
---发自华为---
2019-8-31 07:05
133楼
0511家装频道:本地家居服务平台,数万业主共同选择
只看该作者
分享本楼
hmm930
来自 江苏省
精华 0
注册 2016-11-24
周五试水到周一下班楼下邻居才来看 试水了72小时喽
---发自华为---
2019-9-2 18:26
134楼
0511家装频道:本地家居服务平台,数万业主共同选择
只看该作者
分享本楼
hmm930
来自 江苏省
精华 0
注册 2016-11-24
今天去看水拍了几张照片 瓷砖真漂亮!! 梵高不错
---发自华为---
2019-9-2 18:28
135楼
买房、卖房、租房上镇江房产网!
只看该作者
分享本楼
hmm930
来自 江苏省
精华 0
注册 2016-11-24
军工板块持续走强,加一点四创电子
---发自华为---
2019-9-2 18:34
136楼
[联宇电脑] 电脑组装\维修\升级\企业单位电脑维护!
只看该作者
分享本楼
hmm930
来自 江苏省
精华 0
注册 2016-11-24
开始吊顶
---发自华为---
2019-9-7 13:17
137楼
[联宇电脑] 电脑组装\维修\升级\企业单位电脑维护!
只看该作者
分享本楼
hmm930
来自 江苏省
精华 0
注册 2016-11-24
一波小牛市
---发自华为---
2019-9-7 13:18
138楼
买房、卖房、租房上镇江房产网!
只看该作者
分享本楼
hmm930
来自 江苏省
精华 0
注册 2016-11-24
---发自华为---
2019-9-8 06:54
139楼
MY0511相亲,一分钟注册,享一辈子幸福!
只看该作者
分享本楼
V维度全屋定制
来自 江苏省
精华 0
注册 2019-8-18
阳台蛮大的。看风景很不错
2019-9-8 13:12
140楼
买房、卖房、租房上镇江房产网!
只看该作者
分享本楼
得辰2000
来自 江苏省
精华 0
注册 2011-4-8
行业 商业贸易
地砖颜色不错
2019-9-8 13:27
141楼
0511家装频道:本地家居服务平台,数万业主共同选择
只看该作者
分享本楼
hmm930
来自 江苏省
精华 0
注册 2016-11-24
QUOTE:
原帖由
得辰2000
于 2019-9-8 13:27 发表
地砖颜色不错
樊高瓷砖的新品 确实不丑
---发自华为---
2019-9-8 14:33
142楼
MY0511相亲,一分钟注册,享一辈子幸福!
只看该作者
分享本楼
可可虎家装监理
来自 江苏省
精华 0
注册 2018-3-31
行业 其它
装修愉快
2019-9-8 17:03
143楼
0511家装频道:本地家居服务平台,数万业主共同选择
只看该作者
分享本楼
hmm930
来自 江苏省
精华 0
注册 2016-11-24
QUOTE:
原帖由
可可虎家装监理
于 2019-9-8 17:03 发表
装修愉快
相当愉快
---发自华为---
2019-9-8 18:47
144楼
买房、卖房、租房上镇江房产网!
只看该作者
分享本楼
关亨木门
来自 江苏省
精华 0
注册 2010-5-8
行业 其它
2019-9-9 10:34
145楼
MY0511相亲,一分钟注册,享一辈子幸福!
只看该作者
分享本楼
hmm930
来自 江苏省
精华 0
注册 2016-11-24
选一块大板来做背景墙
---发自华为---
2019-9-10 23:07
146楼
买房、卖房、租房上镇江房产网!
只看该作者
分享本楼
hmm930
来自 江苏省
精华 0
注册 2016-11-24
吊顶底板全部是龙牌双层石膏板
---发自华为---
2019-9-11 15:06
147楼
[联宇电脑] 电脑组装\维修\升级\企业单位电脑维护!
只看该作者
分享本楼
hmm930
来自 江苏省
精华 0
注册 2016-11-24
不错不错,全部双层石膏板,师傅做好了,把工地清理干净呢
---发自华为---
2019-9-12 15:12
148楼
MY0511相亲,一分钟注册,享一辈子幸福!
只看该作者
分享本楼
hmm930
来自 江苏省
精华 0
注册 2016-11-24
利用假期 去鹏华石材定了 极品雅士白做电视背景,李总价格到位
---发自华为---
2019-9-14 23:12
149楼
[联宇电脑] 电脑组装\维修\升级\企业单位电脑维护!
只看该作者
分享本楼
hmm930
来自 江苏省
精华 0
注册 2016-11-24
门还没定,有没有推荐的
---发自华为---
2019-9-15 08:31
150楼
[联宇电脑] 电脑组装\维修\升级\企业单位电脑维护!
只看该作者
分享本楼
返回家庭装修
245
3/5
<
1
2
3
4
5
>
快速回复主题
游客
您目前还是游客,请
登录
或
注册
您目前是游客,本帖已被系统设置了自动关闭,不可回复!
文明交流,理性发言
0/5000字
<
>
请在打开的新窗口中支付完成打赏
我已完成支付打赏
支付失败重新支付
其他金额
打赏金额:
元
确定
支付打赏
提 现
打赏人
打赏金额(元)
打赏时间
卡洛尼曼
1.00
2019-7-19 22:38
红居装饰
1.00
2019-7-20 09:48
多洛米软装
1.00
2019-7-29 16:22
Powered by
Discuz! X 2
0.099464 s
清除 Cookies
-
镇江网友之家
-
手机版
论坛导航
关闭
吃喝玩乐
饮食男女
镇江钓友之家
菜菜鸟户外
镇江单车俱乐部
镜头里的镇江
畅游天下
猫狗总动员
视觉Coffeeshop摄影部落
花鸟鱼虫
婚姻.亲子.家庭
家有学子
谈婚论嫁
女性天地
母婴乐园
婚姻生活
梦溪佳缘
装修
家庭装修
装修招标
镇江室内设计师交流
装修商家直通车
你好,镇江!
百姓话题
我要买房
0511爱心家园
市场监管•12315热线
分类信息
生活服务
闲置转让
镇江二手房/镇江租房
镇江招聘求职
教育培训
镇江二手车
商铺厂房写字楼租售
宠物市场
运动健身
卡券交易
电脑维修升级
杂货铺
其他分类信息区
兴趣爱好
HiFi音响江城沙龙
镇江市美术家协会
我爱模型
车友俱乐部
车迷之家
汽车驾培中心
运动俱乐部
镇江市冬泳、铁人三项协会
聚焦足球
镇江羽毛球
镇江乒乓球协会
镇江网球协会
镇江市自行车运动协会
热爱篮球
动力机车
合作栏目
维权热线
天翼时代
色觉影像摄影工作室
站务区
疑问与建议
网络问政
市政府工作部门
垂直管理部门
党群工作部门
其他重点单位
辖市(区)