收藏本站
客户端
扫码下载客户端
官方微信
打开微信扫一扫
登录
|
注册
|
标题
标题
用户
全站首页
|
论坛导航
|
网络问政
|
招聘求职
|
买房租房
|
装修频道
|
生活服务
|
教育
|
相亲
|
亲子
|
美食
|
婚嫁
|
手机客户端
家有学子
|
母婴乐园
快捷导航
精彩推荐:
MY0511客户端下载
中信银行镇江分行
公益体彩 乐善人生
鹏龙鸿蒙
天然石材·人造石
»
梦溪论坛
»
家庭装修
» 三茅宫春色江南四房-基本装好了吧……
家庭装修
>
[装修日记]
三茅宫春色江南四房-基本装好了吧……
查看: 443788 回复: 448
快速回复
返回家庭装修
449
5/9
<
1
2
3
4
5
6
7
8
9
>
[装修日记]
三茅宫春色江南四房-基本装好了吧……
查看: 443788 回复: 448
上一主题
|
下一主题
yun84yy
来自 江苏省
精华 0
注册 2012-7-30
行业 教育科研
安装室内房门和门套的前—加强版的地面保护!
[
本帖最后由 yun84yy 于 2020-11-27 11:10 编辑
]
---发自华为---
2020-11-27 09:10
201楼
0511家装频道:本地家居服务平台,数万业主共同选择
只看该作者
分享本楼
yun84yy
来自 江苏省
精华 0
注册 2012-7-30
行业 教育科研
集成吊顶的厨房—射灯安装到位!
[
本帖最后由 yun84yy 于 2020-11-27 11:14 编辑
]
---发自华为---
2020-11-27 11:13
202楼
0511家装频道:本地家居服务平台,数万业主共同选择
只看该作者
分享本楼
yun84yy
来自 江苏省
精华 0
注册 2012-7-30
行业 教育科研
提前一天送货到位的木门及门锁等配件。
门套、木门师傅提前送到房子里了
铰链、地吸和门锁。
安装师傅也提前一天把安装工具摆放在屋子里了。
[
本帖最后由 yun84yy 于 2020-11-30 17:00 编辑
]
---发自华为---
2020-11-28 10:06
203楼
[联宇电脑] 电脑组装\维修\升级\企业单位电脑维护!
只看该作者
分享本楼
yun84yy
来自 江苏省
精华 0
注册 2012-7-30
行业 教育科研
拆封全貌!-侧面带标,背面印标,四个角带保护。
门扇拆开的样子,四个角是定了4片密度板小板子做保护的,照片看着不明显。
门扇厚度4.5cm,门扇的侧面都有这个圆形的金凯德的标志。
安装师傅带过来的发泡剂填充缝隙的。
门套的背面都印有品牌的logo。
门套凸出墙面的厚度在1.8cm的样子。
[
本帖最后由 yun84yy 于 2020-11-30 17:06 编辑
]
---发自华为---
2020-11-28 12:07
204楼
找工作,就上MY0511!
只看该作者
分享本楼
yun84yy
来自 江苏省
精华 0
注册 2012-7-30
行业 教育科研
木门的安装过程多图直播1。
师傅在原始墙侧用小木块打个底做为门套的支撑。
小木块师傅用的是欢乐熊。
门套上、左、右三块板子的连接。
搬动。
嵌入。
水平仪测是够垂直。
根据现场实际情况裁切门套。
[
本帖最后由 yun84yy 于 2020-11-30 17:17 编辑
]
---发自华为---
2020-11-29 08:13
205楼
[联宇电脑] 电脑组装\维修\升级\企业单位电脑维护!
只看该作者
分享本楼
yun84yy
来自 江苏省
精华 0
注册 2012-7-30
行业 教育科研
木门的安装过程多图直播2.
侧面门套,先比对长度。
裁切好安装前打入发泡剂
木门套上也打上发泡剂。
安装到位。
打入细小的蚊钉。
同色木器修补膏盖住钉眼。
[
本帖最后由 yun84yy 于 2020-11-30 17:22 编辑
]
---发自华为---
2020-11-29 08:18
206楼
买房、卖房、租房上镇江房产网!
只看该作者
分享本楼
yun84yy
来自 江苏省
精华 0
注册 2012-7-30
行业 教育科研
木门铰链的定位安装。
木门顶侧都有个二维码。
黑色的铰链,每扇门3个铰链。
用三个长条小纸片标记铰链位置。
钻孔安装门扇上的铰链 。
门扇铰链固定安装在门套上。
门套的气枪加固。
安装好铰链。
[
本帖最后由 yun84yy 于 2020-12-2 09:51 编辑
]
---发自华为---
2020-11-29 08:24
207楼
找工作,就上MY0511!
只看该作者
分享本楼
yun84yy
来自 江苏省
精华 0
注册 2012-7-30
行业 教育科研
磁吸锁具的开孔。
[
本帖最后由 yun84yy 于 2020-12-2 09:53 编辑
]
---发自华为---
2020-11-29 08:32
208楼
MY0511相亲,一分钟注册,享一辈子幸福!
只看该作者
分享本楼
yun84yy
来自 江苏省
精华 0
注册 2012-7-30
行业 教育科研
磁吸锁具、地吸的安装。
安装门锁。
安装在地板上的黑色地吸。
最终成品图。
[
本帖最后由 yun84yy 于 2020-12-2 09:55 编辑
]
---发自华为---
2020-11-29 08:33
209楼
找工作,就上MY0511!
只看该作者
分享本楼
yun84yy
来自 江苏省
精华 0
注册 2012-7-30
行业 教育科研
安装木门用到的小物件—发泡剂、修补膏、玻璃胶。
[
本帖最后由 yun84yy 于 2020-12-2 09:57 编辑
]
---发自华为---
2020-11-29 08:37
210楼
[联宇电脑] 电脑组装\维修\升级\企业单位电脑维护!
只看该作者
分享本楼
yun84yy
来自 江苏省
精华 0
注册 2012-7-30
行业 教育科研
---发自华为---
2020-11-29 08:40
211楼
买房、卖房、租房上镇江房产网!
只看该作者
分享本楼
yun84yy
来自 江苏省
精华 0
注册 2012-7-30
行业 教育科研
门头门侧的石膏腻子太厚了,师傅现场敲薄!
特别厚的腻子,项目经理说是墙面不直为了拉平墙面没办法做了这么厚,还耗费了好多材料。
这么厚合适吗?不会裂吗??
[
本帖最后由 yun84yy 于 2020-12-2 10:01 编辑
]
---发自华为---
2020-11-29 08:42
212楼
0511家装频道:本地家居服务平台,数万业主共同选择
只看该作者
分享本楼
yun84yy
来自 江苏省
精华 0
注册 2012-7-30
行业 教育科研
---发自华为---
2020-11-29 08:45
213楼
找工作,就上MY0511!
只看该作者
分享本楼
yun84yy
来自 江苏省
精华 0
注册 2012-7-30
行业 教育科研
中央空调风口和柜子顶部有交叉重叠的部分—木工风口改小!
木工改前。
木工改后。
[
本帖最后由 yun84yy 于 2020-12-2 10:04 编辑
]
---发自华为---
2020-12-1 10:53
214楼
0511家装频道:本地家居服务平台,数万业主共同选择
只看该作者
分享本楼
yun84yy
来自 江苏省
精华 0
注册 2012-7-30
行业 教育科研
方太专供油烟机防火止逆阀全貌!
---发自华为---
2020-12-2 15:31
215楼
买房、卖房、租房上镇江房产网!
只看该作者
分享本楼
yun84yy
来自 江苏省
精华 0
注册 2012-7-30
行业 教育科研
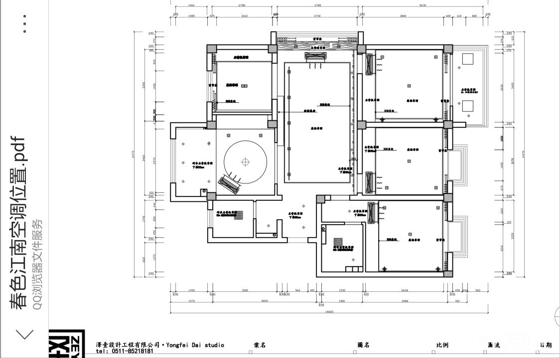
全屋中央空调机位图。
保存保存。
---发自华为---
2020-12-2 15:48
216楼
MY0511相亲,一分钟注册,享一辈子幸福!
只看该作者
分享本楼
yun84yy
来自 江苏省
精华 0
注册 2012-7-30
行业 教育科研
今天终于放晴了,上午带娃打了疫苗。
期待周末客厅木饰面安装顺利。
---发自华为---
2020-12-3 14:16
217楼
[联宇电脑] 电脑组装\维修\升级\企业单位电脑维护!
只看该作者
分享本楼
yun84yy
来自 江苏省
精华 0
注册 2012-7-30
行业 教育科研
清洁工具收纳图例学习
---发自华为---
2020-12-4 09:45
218楼
[联宇电脑] 电脑组装\维修\升级\企业单位电脑维护!
只看该作者
分享本楼
yun84yy
来自 江苏省
精华 0
注册 2012-7-30
行业 教育科研
菲斯曼地暖锅炉冷凝水管设置留存现场图。
[
本帖最后由 yun84yy 于 2020-12-7 11:17 编辑
]
---发自华为---
2020-12-4 16:36
219楼
买房、卖房、租房上镇江房产网!
只看该作者
分享本楼
yun84yy
来自 江苏省
精华 0
注册 2012-7-30
行业 教育科研
壁挂toto马桶水箱的安装难点。
官方可以免费上门指导壁挂水箱的安装(免费指导一次),智能盖则是免费上门安装的。
下图是卫生间的空间图以及实际的照片和尺寸图。
靠墙的位置是个下水管,壁挂马桶旁边紧挨着就是淋浴房。
下图是类似的空间别家的安装时候的图片。
几种连接下水管子的方式,包括蹲坑的移位,如果靠近下排主管可以直接连到主管上。
水箱的安装方式,可以直接砌筑个假墙,也可以敲部分墙体嵌入进去水箱,看家里的现场条件选择。
电源的安置位置,其中有个特此的位置,就是在水箱体的图示位置,可以见缝插针的放置在蓝色方框的图示位置。前提是没有智能盖,如果安装智能盖的话,智能盖的位置刚好覆盖此处的电源。
6631智能盖的尺寸以及插座、水管的长度。不够的话可以接长。下图的公母头水管可以加长智能盖的水管长度。
安装好后的实拍
[
本帖最后由 yun84yy 于 2020-12-14 16:46 编辑
]
---发自华为---
2020-12-4 16:39
220楼
0511家装频道:本地家居服务平台,数万业主共同选择
只看该作者
分享本楼
yun84yy
来自 江苏省
精华 0
注册 2012-7-30
行业 教育科研
科定木饰面到场拆封。
[
本帖最后由 yun84yy 于 2020-12-7 11:31 编辑
]
---发自华为---
2020-12-5 09:22
221楼
找工作,就上MY0511!
只看该作者
分享本楼
yun84yy
来自 江苏省
精华 0
注册 2012-7-30
行业 教育科研
安装前的一些现场准备—边角清理,部分开孔,量尺,摆放比较。
[
本帖最后由 yun84yy 于 2020-12-7 11:33 编辑
]
---发自华为---
2020-12-5 09:56
222楼
找工作,就上MY0511!
只看该作者
分享本楼
yun84yy
来自 江苏省
精华 0
注册 2012-7-30
行业 教育科研
现场打磨边角,打眼固定。
摆放看是否尺寸合适。
打蚊钉。
可以的位置,都从侧面打入钉子,减少正面的钉眼数。
[
本帖最后由 yun84yy 于 2020-12-7 11:37 编辑
]
---发自华为---
2020-12-5 10:08
223楼
0511家装频道:本地家居服务平台,数万业主共同选择
只看该作者
分享本楼
yun84yy
来自 江苏省
精华 0
注册 2012-7-30
行业 教育科研
现场打磨2之打磨工具。
[
本帖最后由 yun84yy 于 2020-12-7 14:35 编辑
]
---发自华为---
2020-12-5 10:09
224楼
MY0511相亲,一分钟注册,享一辈子幸福!
只看该作者
分享本楼
yun84yy
来自 江苏省
精华 0
注册 2012-7-30
行业 教育科研
插座现场开孔视频!
[
本帖最后由 yun84yy 于 2020-12-7 14:36 编辑
]
---发自华为---
2020-12-5 10:18
225楼
MY0511相亲,一分钟注册,享一辈子幸福!
只看该作者
分享本楼
yun84yy
来自 江苏省
精华 0
注册 2012-7-30
行业 教育科研
打胶、蚊钉等—上墙固定
插座位置开孔
侧面、背面打胶
敲打密闭
蚊钉固定
稍微敲打下打好的蚊钉
细小的蚊钉眼
[
本帖最后由 yun84yy 于 2020-12-7 15:12 编辑
]
---发自华为---
2020-12-5 10:34
226楼
MY0511相亲,一分钟注册,享一辈子幸福!
只看该作者
分享本楼
yun84yy
来自 江苏省
精华 0
注册 2012-7-30
行业 教育科研
边角的拼接处理。
最右下方一个小竖条的拼接。
[
本帖最后由 yun84yy 于 2020-12-7 15:39 编辑
]
---发自华为---
2020-12-5 11:16
227楼
0511家装频道:本地家居服务平台,数万业主共同选择
只看该作者
分享本楼
yun84yy
来自 江苏省
精华 0
注册 2012-7-30
行业 教育科研
蚊钉枪固定木饰面视频。
[
本帖最后由 yun84yy 于 2020-12-7 15:41 编辑
]
---发自华为---
2020-12-5 11:35
228楼
找工作,就上MY0511!
只看该作者
分享本楼
yun84yy
来自 江苏省
精华 0
注册 2012-7-30
行业 教育科研
顶面与侧面的木饰面交接处。
[
本帖最后由 yun84yy 于 2020-12-7 15:42 编辑
]
---发自华为---
2020-12-5 11:42
229楼
MY0511相亲,一分钟注册,享一辈子幸福!
只看该作者
分享本楼
yun84yy
来自 江苏省
精华 0
注册 2012-7-30
行业 教育科研
45°切割倒角后磨边
---发自华为---
2020-12-5 12:17
230楼
[联宇电脑] 电脑组装\维修\升级\企业单位电脑维护!
只看该作者
分享本楼
yun84yy
来自 江苏省
精华 0
注册 2012-7-30
行业 教育科研
45°倒角切割,磨边,插座开孔。
[
本帖最后由 yun84yy 于 2020-12-7 15:44 编辑
]
---发自华为---
2020-12-5 12:27
231楼
0511家装频道:本地家居服务平台,数万业主共同选择
只看该作者
分享本楼
yun84yy
来自 江苏省
精华 0
注册 2012-7-30
行业 教育科研
磨边后吹扫,上墙固定。
[
本帖最后由 yun84yy 于 2020-12-7 15:45 编辑
]
---发自华为---
2020-12-5 13:33
232楼
[联宇电脑] 电脑组装\维修\升级\企业单位电脑维护!
只看该作者
分享本楼
yun84yy
来自 江苏省
精华 0
注册 2012-7-30
行业 教育科研
原片科定裁切,薄板45°磨边。
[
本帖最后由 yun84yy 于 2020-12-7 15:47 编辑
]
---发自华为---
2020-12-5 13:52
233楼
[联宇电脑] 电脑组装\维修\升级\企业单位电脑维护!
只看该作者
分享本楼
yun84yy
来自 江苏省
精华 0
注册 2012-7-30
行业 教育科研
顶底刷胶,粘贴,固定。
这个胶现场闻起来没甚味道。
[
本帖最后由 yun84yy 于 2020-12-7 15:49 编辑
]
---发自华为---
2020-12-5 14:08
234楼
[联宇电脑] 电脑组装\维修\升级\企业单位电脑维护!
只看该作者
分享本楼
yun84yy
来自 江苏省
精华 0
注册 2012-7-30
行业 教育科研
磨边,刷胶,固定2。
[
本帖最后由 yun84yy 于 2020-12-7 15:50 编辑
]
---发自华为---
2020-12-5 14:30
235楼
MY0511相亲,一分钟注册,享一辈子幸福!
只看该作者
分享本楼
yun84yy
来自 江苏省
精华 0
注册 2012-7-30
行业 教育科研
45°斜切拼接完成后成品。
窗户下方的木饰面。最右侧有个细窄条,拼接的不错,几乎看不见缝隙。
[
本帖最后由 yun84yy 于 2020-12-7 15:54 编辑
]
---发自华为---
2020-12-5 16:52
236楼
[联宇电脑] 电脑组装\维修\升级\企业单位电脑维护!
只看该作者
分享本楼
yun84yy
来自 江苏省
精华 0
注册 2012-7-30
行业 教育科研
门头小块木饰面补填安装;成品!成品细节
。
完工图
拼接处细节图。
边安装边清洁
[
本帖最后由 yun84yy 于 2020-12-7 15:57 编辑
]
---发自华为---
2020-12-5 18:46
237楼
MY0511相亲,一分钟注册,享一辈子幸福!
只看该作者
分享本楼
yun84yy
来自 江苏省
精华 0
注册 2012-7-30
行业 教育科研
阳台移门做个木方打底,移门尺寸的测量
卫生间门洞尺寸测量。
[
本帖最后由 yun84yy 于 2020-12-7 15:59 编辑
]
---发自华为---
2020-12-5 18:48
238楼
[联宇电脑] 电脑组装\维修\升级\企业单位电脑维护!
只看该作者
分享本楼
1185974935
来自 江苏省
精华 0
注册 2014-4-11
行业 房产建筑
---发自梦溪论坛手机客户端---
2020-12-5 19:54
239楼
0511家装频道:本地家居服务平台,数万业主共同选择
只看该作者
分享本楼
yun84yy
来自 江苏省
精华 0
注册 2012-7-30
行业 教育科研
---发自华为---
2020-12-6 09:43
240楼
买房、卖房、租房上镇江房产网!
只看该作者
分享本楼
yun84yy
来自 江苏省
精华 0
注册 2012-7-30
行业 教育科研
橱柜安装前的再次现场勘查—集成吊顶、厨房下水,角阀,燃气管安装好后
2020-12-7 16:07
241楼
买房、卖房、租房上镇江房产网!
只看该作者
分享本楼
yun84yy
来自 江苏省
精华 0
注册 2012-7-30
行业 教育科研
衣柜侧面露出来的可以看见的部分-见光板
---发自华为---
2020-12-8 12:27
242楼
买房、卖房、租房上镇江房产网!
只看该作者
分享本楼
yun84yy
来自 江苏省
精华 0
注册 2012-7-30
行业 教育科研
厨房待装的三通和角阀
---发自华为---
2020-12-8 19:57
243楼
MY0511相亲,一分钟注册,享一辈子幸福!
只看该作者
分享本楼
yun84yy
来自 江苏省
精华 0
注册 2012-7-30
行业 教育科研
上午接到电话,淋浴房送货师傅打来的,今天把两个淋浴房材料送到家里,周六安装~
---发自华为---
2020-12-9 10:31
244楼
0511家装频道:本地家居服务平台,数万业主共同选择
只看该作者
分享本楼
yun84yy
来自 江苏省
精华 0
注册 2012-7-30
行业 教育科研
提前送达屋里的包装完好的淋浴房安装件。
---发自华为---
2020-12-9 14:15
245楼
0511家装频道:本地家居服务平台,数万业主共同选择
只看该作者
分享本楼
yun84yy
来自 江苏省
精华 0
注册 2012-7-30
行业 教育科研
厨房水路记错了??
图1是10月15日,在厨房现场确认了水路情况后,自己画了图2的厨房的水口图在群里再次确认,得到肯定答复后,水电安装接角阀的时候按照确认好的情况进行了安装,其中三通未到位,反复沟通未果,自己购买请装修公司安装(不装三通全屋没有通水)。
上周六12月5日,在厨房现场再次沟通了三通的安装情况并拍图4发群。今天接好三通后在群里发的图片是图6,解释说以前的接全屋的冷水和锅炉出来热水的位置搞错了...
最初最初的时候软水就不打算进厨房的,热水打算用小厨宝。结果现实情况是,
一,
冷水头总共就2个(装修公司说都是这样,不管厨房水槽周围装多少电器,而且不管电器怎么接水走管,最后现场安装电器的时候安装师傅来处理);
二,
进锅炉的热水(软水)接到了厨房水槽(锅炉的进水是先通过软水机的,所以锅炉出来的热水都是软水);
三,
软水机的进水口和出水口都离软水机很远...(在水电定位的时候橱柜已经出图了,软水机的位置也是确认的);
四,
如果想装小厨宝的话,因为只有两个冷水头,根本不够用,所以两个冷水头都得接1转2或者1转3的角阀,可是那么近的两个冷水头,几乎很难有空间装是其1,其2是角阀和软管离上方的插座也很近...而水槽下的3个插座,橱柜来看后只有2个能用,最右侧的那个实际安装橱柜后是在洗碗机的正后方,无法使用。(已装上了施耐德插座面板白板)
很后悔做水电的时候自己没有仔细研究实际怎么做的,也没有多问怎么做的水路,只认为自己的需求都说出来了就可以了,结果就是这样的...
个人浅显理解:水电应该按每户的需求和实际情况事先出水路,电路图,水电工严格按图施工。而不是家家户户都一个做法。否则现场的施工完全看水电工的临场发挥了,是不是规范合理,完全看水电工的水平以及心情了。
而装修公司一再强调,厨房的三通和角阀怎么接电器,软管怎么走怎么转换接头,那是等后面安装电器的师傅来现场处理,他们从来都是不管的……试问如果不是我们一再要求购买三通(实际自购),要求尽早的接好三通,这种错误的情况什么时候才能被发现?
[
本帖最后由 yun84yy 于 2020-12-14 11:14 编辑
]
---发自华为---
2020-12-9 22:40
246楼
找工作,就上MY0511!
只看该作者
分享本楼
yun84yy
来自 江苏省
精华 0
注册 2012-7-30
行业 教育科研
今天发消息再次提醒本周六安装。
淋浴房这块,总体感觉比较周到。没有操心太多,比较的稳妥,希望本周六双12的安装也妥当。
当初在水电定位后,5月份去交付了订金,之后期间再次去确认了方案,老板明确表示确认订单后厂里就下单生产了,不用付尾款,在送货安装前去交了尾款即可。于是在上周日,即12月5日去店里结清了尾款。
[
本帖最后由 yun84yy 于 2020-12-10 15:26 编辑
]
---发自华为---
2020-12-10 15:23
247楼
找工作,就上MY0511!
只看该作者
分享本楼
zl96517
来自 江苏省
精华 0
注册 2005-9-11
楼主你家菲斯曼的地暖一装了多少钱的,能不能告知参考一下
2020-12-10 16:41
248楼
[联宇电脑] 电脑组装\维修\升级\企业单位电脑维护!
只看该作者
分享本楼
yun84yy
来自 江苏省
精华 0
注册 2012-7-30
行业 教育科研
明天装淋浴房,期待
---发自华为---
2020-12-11 14:30
249楼
[联宇电脑] 电脑组装\维修\升级\企业单位电脑维护!
只看该作者
分享本楼
yun84yy
来自 江苏省
精华 0
注册 2012-7-30
行业 教育科研
两个浴室柜的角阀重新改装后—出墙都在10cm以内
新买的短小角阀,装修公司都换到位了,两个浴室柜,现在冷热水4个角阀的出墙距离都控制在了10CM以内啦~
[
本帖最后由 yun84yy 于 2020-12-14 11:18 编辑
]
---发自华为---
2020-12-12 09:03
250楼
MY0511相亲,一分钟注册,享一辈子幸福!
只看该作者
分享本楼
返回家庭装修
449
5/9
<
1
2
3
4
5
6
7
8
9
>
快速回复主题
游客
您目前还是游客,请
登录
或
注册
您目前是游客,本帖已被系统设置了自动关闭,不可回复!
文明交流,理性发言
0/5000字
<
>
请在打开的新窗口中支付完成打赏
我已完成支付打赏
支付失败重新支付
其他金额
打赏金额:
元
确定
支付打赏
提 现
打赏人
打赏金额(元)
打赏时间
Powered by
Discuz! X 2
0.114750 s
清除 Cookies
-
镇江网友之家
-
手机版
论坛导航
关闭
吃喝玩乐
饮食男女
镇江钓友之家
菜菜鸟户外
镇江单车俱乐部
镜头里的镇江
畅游天下
猫狗总动员
视觉Coffeeshop摄影部落
花鸟鱼虫
婚姻.亲子.家庭
家有学子
谈婚论嫁
女性天地
母婴乐园
婚姻生活
梦溪佳缘
装修
家庭装修
装修招标
镇江室内设计师交流
装修商家直通车
你好,镇江!
百姓话题
我要买房
0511爱心家园
市场监管•12315热线
分类信息
生活服务
闲置转让
镇江二手房/镇江租房
镇江招聘求职
教育培训
镇江二手车
商铺厂房写字楼租售
宠物市场
运动健身
卡券交易
电脑维修升级
杂货铺
其他分类信息区
兴趣爱好
HiFi音响江城沙龙
镇江市美术家协会
我爱模型
车友俱乐部
车迷之家
汽车驾培中心
运动俱乐部
镇江市冬泳、铁人三项协会
聚焦足球
镇江羽毛球
镇江乒乓球协会
镇江网球协会
镇江市自行车运动协会
热爱篮球
动力机车
合作栏目
维权热线
天翼时代
色觉影像摄影工作室
站务区
疑问与建议
网络问政
市政府工作部门
垂直管理部门
党群工作部门
其他重点单位
辖市(区)