
从城市高密度里的焦虑里剥离出来,
家就成为了生活的珠宝盒,
盛放着时光的故事,装载着自己想要的日子。
安放了一家人的生活,人与建筑,私密与开放,始终相连。
客厅


进入室内,挑空的设计营造出的是一种属于真实生活的舒缓明快。真皮、布艺、丝绒,仅沙发和座椅就拥有了三种材质。几何线条缠绕的主灯,黑色大理石茶几一起透过材质与色彩演绎出含蓄的浪漫。


饱和度的灰与褐作为其主要颜色,浅浅铺陈、缓缓过渡,强化客厅的开阔感,延伸整体空间的疏朗视野。


内敛温润的柜体对应着横竖穿插的层板,错落有致地互相咬合,形成艺术的墙面造型。 艺术的本质是一种“有意味的仪式”,设计师用木质茶桌框定出了一隅静谧。


行走或落座,品茗或发呆,在有生命的空间里感受呼吸,宁静的享受此刻的惬意。
餐厅

餐厅汇集家人团聚的欢融体验,作为一天美味私享的空间,呈现最具烟火气的生活景象,设计师将原来的过道废除,扩大了餐桌的尺寸和整个餐厅的维度。
主卧



让材质的温润,色彩的纯粹与织物的柔软,酝酿居家的品质与幸福感。
次卧


真正的奢华是像孩子一样无所畏惧的奔跑,是对时间、空间的自由支配。次卧依旧沿袭极简的设计,把身心的放松留给灵魂的最深处。
次卧

美富有质感,粉色调的真丝枕套,让原本淡雅的空间洋溢着浪漫的气息,感受来自内心深处的喜悦和柔和。
主卫

主卧的独立卫浴间干湿分离,大理石花纹结合简约清爽干练的设计语言,散发出高级质感。壁挂式马桶、纯白浴缸等极简款式的洁具配合精致的五金,让日常居家整洁有度。
书房

书房内中性的色调、简约的线条,从视觉上伸展生长。坐下来阅读,心无旁骛,有一种被包裹的静谧安全感。在这里可独处冥想,可伏案而作。
负一层


负一层的多功能影音室是整座别墅的灵魂,在“归家即度假”的氛围里渐渐唤醒因忙碌而酣眠的心。


空间布局上设计师延续整体空间的开合感,尽量减少功能分隔,让会客畅谈的时光,从容悠然。


茶室恬适放松,蕴含着东方美学的长案和颇具禅意的落地飘窗,将怀古的浪漫优雅情怀与现代人对生活的需求结合更具生命力。

茶盏、棋盘、绿植一一排开于案头,可以焚香、饮茶,对弈,细说生心中悟道。

我们乐见繁华,但心更需要归处。
绚烂的想象与深沉的情感,都是生命的深泉在涌动,
我们对家的情感,亦是这般的丰盈。
从推开这扇门开始,
在每个平常的日子细读生活滋味,建筑和人在时光渐缓中相融、共生。
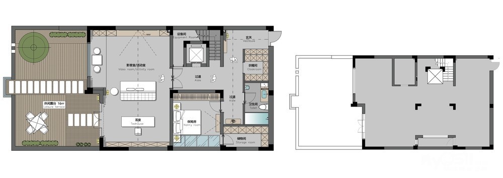
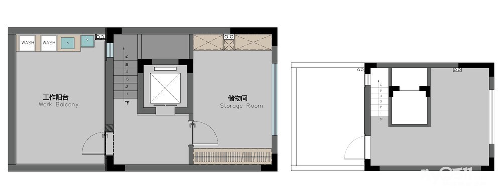
项目户型:
负一层

一层

二层

三层

四层

INFO
设计单位 Designer :企屋设计
项目名称 project name:筑和 · 江南岸
施工单位 Construction unit:企屋装饰
软装陈设 Soft furnishings: 企屋陈设
设计主创 Design chief creator:杨涛 冷倩蕊
设计执行 Design executive:姚思洁 鲁博文
效果表现 Renderer:严飞

更多企屋设计案例请点击:
[ 本帖最后由 my0511菲雪 于 2022-11-29 16:12 编辑 ]









大胆的猜


从设计到材质选择




