
生活,无非就是加法与减法的平衡,家亦是如此。设计围绕生活体验循序渐进,由一个个生活场景故事的展开为主线,以素雅营造明净,用克制与内敛的笔触,描摹生活的本真,增强内与外、人与物的联系,得到身与心、欢与笑的释放。正如米兰·昆德拉所说:要慢下来,因为自在的生活是急不得的。
设计单位 Designer : 企屋设计
项目名称 project name: 扬州 · 瘦西湖榴园
软装陈设 Soft furnishings: 企屋陈设
设计主创 Design chief creator:杨涛 冷倩蕊
设计执行 Design executive: 姚思洁 鲁博文
效果表现 Rendere: 严飞 高崇伟
■客厅


简洁大气的客厅内,缀自然之木,辅以家具、软装的肌理之素,让视觉简约洁净,将功能融会贯通。材质的气调被设计师充分挖掘,米灰色皮革座椅与自然肌理石材结合,阳光透过白色纱幔进来那一瞬间,空间活力被激发出来。


柔和的色调描绘出岁月的肌理,灯光明亮温暖居人的内心,尺度、温度、气度汇聚于此。

独立静谧,坚柔有感的材质、秩序有效的形状 ,以木色和浅灰缓缓铺陈,构筑亲和的慵懒姿态。
■餐厅


餐厅是家人们团聚交流情感的地方,此处放置了圆桌,圆桌不仅符合中国人大家“围坐”的饮食习惯,也蕴含着“团圆”之意。体块与颜色的和谐统一,是创造多元的存在。

开放式的厨房与岛台将空间赋予仪式感和秩序感,方正宽敞的布局既可众客以聚,亦可围合小叙,一抹别具气质的绿植跳跃了视觉,让餐厅和厨房化作一处自在天地。

楼梯下方,定制了色调统一的储物空间,在环境中恪守与自然之间的安定关系,尽可能地回归生活之本质和真谛。拾级而上,便进入了二楼的空间。
■主卧


二楼主卧设计以舒适度作为设计的衡量尺度,辅之以柔软而放松的布艺,给居者营造一种细腻而亲密的舒适感。同色系的地板、床头、墙壁有机组合,柔和的内在氛围浑然天成。


家具和家饰是情绪的标签,是居者的个性彰显。圆形的弧度应和着专属于女性的柔软。当居住空间与喜好相匹配的生活,才是设计师想传递给居者的理想居所。
■主卫

黑与白极端发生和谐的碰撞,空间的一致性反而得到了更完美的实现,以实用性舒适性为前提,形成视觉上的美感,沐浴时,身心也能同时能得到放松。

■老人房



延续整体空间主色调,调和成一幅质朴、惬意的生活画卷。整个空间稳重而理性,摒弃了繁冗复杂的装饰,蕴含了大道至简的美学之道。

■儿童房

如果说极简是一种生活态度,那么富有趣味性的角落则是一种生活情趣。感知阳光和细微的情感变化,把美好情感,童心童趣都融入在这个有爱的空间里。

空间里没有过多装饰,
才会在纯粹与简淡里觅得真正的精神自由,
把空间留给阳光与清风,赠予闲适时光一份仪式感,
以瘦西湖为伴,闲可对月,动则听风,临烟火,酌清欢,
最极致的浪漫便是素与简。
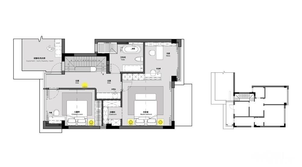
■ 项目户型:
一 层

二层

■ 拍摄花絮:







全案托管服务详情
由企屋设计全程负责整体方案设计、硬装施工
主材采购、家具软装采购、整体预算控制、家政保洁等服务。

更多企屋设计案例请点击:
[ 本帖最后由 my0511菲雪 于 2023-5-18 13:47 编辑 ]










